Страница 2 - Yamarin Cross 53 Center Console; ВВЕДЕНИЕ
Yamarin Cross 53 Center Console 2 (40) ВВЕДЕНИЕ Поздравляем вас с покупкой катера Yamarin Cross 53 Center Console! Данное руководство позволит вам познакомиться с особенностями вашего нового катера и поможет осуществлять его обслуживание. С помощью приведенной в руководстве инфор-мации вы научитесь ...
Страница 3 - Содержание
Yamarin Cross 53 Center Console 3 (40) Содержание 1 Общая информация ................................................................................................................... 7 1.1 Декларация соответствия ........................................................................................
Страница 5 - ПРЕЖДЕ, ЧЕМ ОТПРАВЛЯТЬСЯ В ПЛАВАНИЕ; кое оборудование требуется для вашего судна.
Yamarin Cross 53 Center Console 5 (40) ПРЕЖДЕ, ЧЕМ ОТПРАВЛЯТЬСЯ В ПЛАВАНИЕ Прочтите данное руководство пользователя.Каждый раз перед отплытием обязательно обращайте внимание на следующее. - Погодные условия и прогноз погоды Учитывайте ветер, наличие волнения и видимость. Проверьте, соответствуют ли ...
Страница 7 - Общая информация
Yamarin Cross 53 Center Console 7 (40) Дополнительные инструкции, относящиеся к двигателю, вы найдете в руководстве по эксплуатации двигателя. 1 Общая информация Данное руководство пользователя позволит вам познакомиться с особенностями вашего нового катера и поможет осуществлять его обслуживание. Т...
Страница 8 - Декларация соответствия; Fenix Marin Oy; Используемый модуль:; B, типовые испытания EC; ОРГАНИЗАЦИЯ, ПОДГОТОВИВШАЯ ДАННУЮ ДЕКЛАРАЦИЮ; Адрес: Vanha Porvoontie; УПОЛНОМОЧЕННЫЙ ОРГАН; Идентификационный номер:; ОПИСАНИЕ ПРОГУЛОЧНОГО ПЛАВСРЕДСТВА
Yamarin Cross 53 Center Console 8 (40) 1.1 Декларация соответствия Декларация соответствия Директивы для прогулочных плавсредств 94/25/EC и 2003/44/EC Производитель: Fenix Marin Oy Используемый модуль: B, типовые испытания EC ОРГАНИЗАЦИЯ, ПОДГОТОВИВШАЯ ДАННУЮ ДЕКЛАРАЦИЮ Подготовлено: Konekesko Oy Ma...
Страница 10 - Определения; Регистрация
Yamarin Cross 53 Center Console 10 (40) 2 Определения Предупреждения и предостережения в данном руководстве обозначаются следующим об-разом. ОПАСНО! Указывает на серьезную опасность, которая с высокой вероятностью может привести к смерти или непоправи-мому ущербу, если не будут приняты надлежащие ме...
Страница 11 - Обучение; Характеристики катера и его эксплуатация; Рекомендуемая максимальная нагрузка:; смотрите технические характеристики; Основные габаритные размеры; : смотрите технические характеристики; Табличка производителя
Yamarin Cross 53 Center Console 11 (40) 4.3 Обучение Моряками не рождаются – ими становятся. Существует большой объем литературы, посвя-щенной мореплаванию. Яхт-клубы и национальные ассоциации судовладельцев организуют курсы судовождения, на которых вы можете приобрести основные навыки управления су...
Страница 12 - Технические характеристики
Yamarin Cross 53 Center Console 12 (40) Технические характеристики Модель YAMARIN CROSS 53 CC Класс C Габаритная длина (без трапа для купания) 5,3 м Ширина 2,1 м Масса без двигателя, заправлен-ных жидкостей и оборудования Приблиз. 585 кг Масса на автоприцепе с самым большим из рекомендуемых дви-гате...
Страница 13 - на 90 мм выше острой скулы; Рекомендуемое максимальное число пассажиров; Ватерлиния Yamarin Cross 35 CC
Yamarin Cross 53 Center Console 13 (40) Ватерлиния: - на корме на 90 мм выше острой скулы - на носу на 260 мм ниже острой скулы ПРЕДУПРЕЖДЕНИЕ! Значения высоты ватерлинии отражают уровень, до ко-торого доходит граница необрастающего покрытия, а не фактическую ватерлинию. 5.3 Рекомендуемое максимальн...
Страница 14 - Нагрузка
Yamarin Cross 53 Center Console 14 (40) ПРЕДУПРЕЖДЕНИЕ! Равномерная загрузка катера от кормы до носа обеспе-чит более экономное расходование топлива. 5.4 Нагрузка Максимально допустимая нагрузка для Yamarin Cross 53 BR составляет 510 кг. Это значение включает следующие составляющие: а) полная масса ...
Страница 15 - Двигатель и гребной винт; В других условиях нагружения
Yamarin Cross 53 Center Console 15 (40) ПРЕДУПРЕЖДЕНИЕ! Максимально допустимая нагрузка включает только пере-численные выше массы. ПРЕДОСТЕРЕЖЕНИЕ! При загрузке судна никогда не превышайте рекомен-дуемую максимальную нагрузку. Загружайте судно ак- куратно и правильно распределяйте нагрузку для обесп...
Страница 16 - ПРЕДОСТЕРЕЖЕНИЕ
Yamarin Cross 53 Center Console 16 (40) 1. Ручной трюмный насос2. Запорный клапан системы дренажа дождевой воды Владелец судна несет ответственность за обеспечение наличия на борту как минимум одно-го черпака или ведра и их надежное крепление. ПРЕДОСТЕРЕЖЕНИЕ ! Трюмный насос не рассчитан на устранен...
Страница 17 - В трюме должно быть как можно меньше воды.; Предотвращение опасности возгорания или взрыва
Yamarin Cross 53 Center Console 17 (40) ПРЕДУПРЕЖДЕНИЕ! Убедитесь, что вода беспрепятственно вытекает через дренажную трубу. Мусор, например осенние листья и т.п., может заблокировать поток, что приведет к заполнению судна водой и его затоплению. Трюмный насос не работа-ет при температуре окружающей...
Страница 19 - Соблюдайте следующие меры предосторожности:; Главный выключатель и предохранители; Главный выключатель катера Yamarin Cross 53 СС:
Yamarin Cross 53 Center Console 19 (40) Соблюдайте следующие меры предосторожности: - не загораживайте проходы к выходам и люкам;- не затрудняйте доступ к оборудованию для обеспечения безопасности, например к выключателям электрической системы; - не затрудняйте доступ к огнетушителям, размещенным в ...
Страница 20 - Ни в коем случае не исполь-; Эксплуатация
Yamarin Cross 53 Center Console 20 (40) LIGHTS = предохранитель цепи ходовых огнейOUTLET = предохранитель цепи розетки с напряжением 12 ВEXTRA = дополнительный предохранитель (например, для плоттера) Все предохранители являются автоматическими. В случае превышения тока автоматиче-ский предохранитель...
Страница 21 - Переключение передач и управление дроссельной заслонкой; волны и за счет этого двигалось более плавно.
Yamarin Cross 53 Center Console 21 (40) 5.9.2 Аварийный выключатель Аварийный выключатель представляет собой устройство, один конец которого подсоединен к переключателю под системой дистанционного управления, а другой – например, к вашему спасательному жилету. Аварийный выключатель автоматически отк...
Страница 22 - секунд, пока не зажгутся сигнальные лампы.
Yamarin Cross 53 Center Console 22 (40) ПРЕДОСТЕРЕЖЕНИЕ! Не разгоняйте судно до высоких скоростей, когда дви-гатель приподнят (нос также поднят), так как при этом существует опасность резкого крена, когда гребной винт снова войдет в воду после выхода из нее при движении в условиях сильного волнения....
Страница 23 - минимальная при скоростях менее 5 узлов)
Yamarin Cross 53 Center Console 23 (40) При выборе скорости движения судна всегда учитывайте преобладающие окружающие условия. Принимайте в расчет следующие факторы: - волны (также проконсультируйте пассажиров относительно подходящей скорости);- кильватерную волну вашего судна (максимальная при скор...
Страница 24 - Дверцы между ветровым стеклом и пультом управления рулем; Во время движения дверцы должны быть всегда закрыты и заперты.
Yamarin Cross 53 Center Console 24 (40) При приближении к причалу убедитесь, что все находящиеся на борту люди сидят, кроме тех, кому необходимо стоять для выполнения своих обязанностей. Резкие повороты судна могут вызвать крен и стать причиной травмы. Перед причаливанием приготовьте причальные конц...
Страница 25 - Советы и указания по правильной эксплуатации; Крепление свободно установленного оборудования; Соблюдайте местное природоохранное законодательство.
Yamarin Cross 53 Center Console 25 (40) 5.10 Советы и указания по правильной эксплуатации 5.10.1 Человек за бортом Падение человека за борт всегда представляет собой чрезвычайную ситуацию. Необходимо заранее в хорошую погоду отработать порядок действий по спасению, чтобы в случае паде-ния человека з...
Страница 26 - Убедитесь, что замок или цепь не царапают палубу судна.
Yamarin Cross 53 Center Console 26 (40) 5.10.4 Постановка на якорь и швартовка Выполняйте швартовку осторожно, даже в защищенных местах, поскольку окружающие условия могут быстро измениться. Причальные концы должны быть оснащены поглотите-лями вибрации для смягчения толчков и ударов. Для получения и...
Страница 27 - Крепление буксирного троса к кнехтам:
Yamarin Cross 53 Center Console 27 (40) Если вы буксирует другое судно или если буксируют ваш катер, привяжите трос к кнехтам, как показано на следующем рисунке. Крепление буксирного троса к кнехтам: ПРЕДОСТЕРЕЖЕНИЕ! При буксировке трос сильно натягивается. Если он по-рвется, оборвавшийся конец може...
Страница 28 - Закрепление Yamarin Cross 53 СС на автоприцепе:
Yamarin Cross 53 Center Console 28 (40) Установите судно на прицеп, следя за тем, чтобы оно было расположено на центральной линии прицепа. Перед установкой судна на прицеп приподнимите двигатель, чтобы он не ударялся об днище. Закрепление Yamarin Cross 53 СС на автоприцепе: Перед транспортировкой пр...
Страница 29 - Нельзя поднимать судно за кнехты.
Yamarin Cross 53 Center Console 29 (40) При спуске судна с автоприцепа не забудьте заранее привязать к судну носовой швартов, чтобы можно было отвязать трос от крюка прицепа, как только судно окажется на воде. Будьте осторожны с рукояткой лебедки! 5.10.7 Постановка в док Кильблок должен быть достато...
Страница 30 - Уход и обслуживание; Мойка и вощение катера; Очистка стеклопластиковых поверхностей
Yamarin Cross 53 Center Console 30 (40) ОПАСНОСТЬ! Никогда не становитесь под судно, когда оно подвешено на кране. 6 Уход и обслуживание Содержите ваш катер и установленное на нем оборудование в чистоте и порядке. Это по-зволит сохранить комфорт и безопасность плавания и увеличить его стоимость при ...
Страница 31 - Защита алюминиевого корпуса; Инструкции по уходу за подушками сидений
Yamarin Cross 53 Center Console 31 (40) Защита алюминиевого корпуса Когда корпус будет полностью вымыт и высушен, его можно защитить от окисления. Об-ратитесь к вашему дилеру за рекомендациями относительно подходящих средств защиты. Окисление – это естественная реакция алюминия на воздействие корроз...
Страница 33 - Мелкий ремонт поверхности; (за исключением специально предназначенных; Зимнее хранение
Yamarin Cross 53 Center Console 33 (40) 6.9 Мелкий ремонт поверхности Вы можете самостоятельно устранить незначительные поверхностные повреждения судна. Однако аккуратный ремонт, не оставляющий заметных следов, требует значительных навы-ков. 1. Защитите зону вокруг повреждения липкой лентой.2. Срежь...
Страница 34 - Операции, выполняемые перед постановкой на зимнее хранение
Yamarin Cross 53 Center Console 34 (40) 7.1 Операции, выполняемые перед постановкой на зимнее хранение Вымойте днище судна сразу после его извлечения из воды. Водоросли и грязь легче счи-стить, пока они не высохли. Удалите воду из системы охлаждения двигателя в соответствии с указаниями, приведенным...
Страница 35 - Чертежи и схемы; Общий вид
Yamarin Cross 53 Center Console 35 (40) Выполните необходимое обслуживание двигателя в соответствии с указаниями, приведен-ными в руководстве по его эксплуатации. Проверьте работоспособность электрооборудова-ния и удалите окалину с контактов предохранителей и т.п. Помните, что бензин со временем ста...
Страница 36 - Топливная система; Топливная система Yamarin Cross 53 СС:
Yamarin Cross 53 Center Console 36 (40) 1. Отверстие для заливки топлива2. Ручной трюмный насос3. Отсек для хранения с люком4. Дистанционное управление5. Пульт управления рулем6. Отсек для хранения тента7. Место для якорного ролика ПРЕДОСТЕРЕЖЕНИЕ! Будьте осторожны при отрывании и закрывании люков с...
Страница 37 - Система рулевого управления
Yamarin Cross 53 Center Console 37 (40) 1. Топливный бак2. Датчик топливного бака3. Шланг подачи топлива4. Топливный фильтр 5. Заправочный шланг топливного бака6. Отверстие для заливки топлива7. Вентиляционное отверстие топливного бака8. Вентиляционный шланг топливного бака Заливное отверстие топлив...
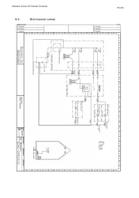
Страница 39 - Монтажная схема
Yamarin Cross 53 Center Console 39 (40) 8.5 Монтажная схема ГЛАВНЫЙ ВЫКЛЮЧА ТЕЛЬ ГЛАВНЫЙ ЩИТ ПИТ АНИЯ Питание 25 мм 2 АК. БА ТАРЕЯ огни доп. розетка ЗАЗЕМ - ЛЕНИЕ Х ОД. ОГНИ УКАЗА ТЕЛЬ УРОВНЯ Т ОПЛИВА РУЛЕВАЯ ПАНЕЛЬ Х од. огни Топливо ПЕРЕДНЯЯ ЗОНА Заземление ход. огней ЗАДНЯЯ ЗОНА ЗАДНЯЯ ЗОНА Зазем...