Страница 2 - ПРИМЕЧАНИЯ
© NEC Viewtechnology, Ltd. 2006 Первое издание, сентябрь 2006 • DLP является торговой маркой “Texas Instruments”. • IBM является торговой маркой или зарегистрированной торговой маркой “International Business Machines Corporation”.• Macintosh, Mac OS X и PowerBook являются торговыми марками “Apple Co...
Страница 3 - Важная информация; обслуживания данного устройства.; Утитилизация использованной продукции; Меры безопасности; Меры предосторожности; ОСТОРОЖНО; ВНИМАНИЕ; ПРИВЕСТИ К ПОЖАРУ ИЛИ УДАРУ ЭЛЕКТРИЧЕСКИМ ТОКОМ.; Уведомление соответствия DOC (только для Канады); Уровень звукового давления ниже 70 дБ (A) согласно EN ISO 7779.; ВНИМАНИЮ ЖИТЕЛЕЙ ШТАТА КАЛИФОРНИЯ:; МОЙТЕ РУКИ
Важная информация Д анный знак предупреждает пользователя, что неизолированное напряжение в устройстве может быть достаточным для удара электрическим током. Поэтому опасно касаться любые детали внутри устройства. Данный знак предупреждает пользователя о наличии важной информации, касающейся эксплуат...
Страница 6 - повреждению проектора.; Замена лампы
ВНИМАНИЕ Не использовать наклонную опору в целях, отличных от первоначально назначенных. Неправильное использование, например, использование наклонной опоры для переноски или подвешивания (со стены или потолка), может привести к повреждению проектора. Не отправляйте проектор в мягкой таре при достав...
Страница 7 - СОДЕРЖАНИЕ
СОДЕРЖАНИЕ Важная информация .......................................................................................................... i 1. Введение ............................................................................................................................ 1 Комплектация .............
Страница 8 - датчика фокусировки; vii
Содержание 4. Удобные возможности ................................................................................................... 28 Выключение изображения .............................................................................................. 28 Остановка картинки ..........................
Страница 9 - Комплектация; частей свяжитесь с продавцом.; Только для Северной Америки; Регистрационная карточка; Только для Европы; Гарантийный сертификат
1. Введение 1. Введение Комплектация Убедитесь в наличии всего перечисленного в списке комплекта поставки. При отсутствии каких-либо частей свяжитесь с продавцом. Пожалуйста, сохраняйте упаковку и упаковочные материалы на случай возможной транспортировки проектора в дальнейшем. Проектор Пульт дистан...
Страница 10 - Введение о проекторе; Поздравляем Вас с покупкой проектора; камеры для документов; Особенности проектора:; Защита при помощи функции “Безопасность”.
1. Введение Введение о проекторе В данном разделе представлен новый проектор и описаны основные особенности и управление. Поздравляем Вас с покупкой проектора Проектор DLP TM - это самый лучший проектор, доступный на сегодняшний день. При помощи проектора можно проецировать изображения размером до 3...
Страница 11 - О данном руководстве пользователя
1. Введение О данном руководстве пользователя Наиболее быстрым способом начать является не спешить и сделать все правильно с первого раза. Потратьте несколько минут на то, чтобы прочитать данное руководство. Это поможет сберечь время в дальнейшем. В начале каждого раздела приведен обзор. Если раздел...
Страница 12 - Название деталей проектора; Вид сзади
1. Введение Название деталей проектора Вид спереди/сверху Управление (→ страница 6) Линзы Рычаг увеличения / изменения (→ страница 22) Крышка объектива Опора регулирования наклона (→ страница 21) Вид сзади Клеммная панель (→ страница 8) Вентиляция (впуск) Подключить сюда трехштырьковый разъем постав...
Страница 14 - страница; Используйте данный порт для подключения ПК или
1. Введение Особенности верхней части 1. Кнопка POWER (ON / STAND BY) (→ страница 16, 27) 2. Индикатор POWER ( ) (→ страница 15, 16, 27, 52) 3. Индикатор STATUS (→ страница 52) 4. Индикатор LAMP (→ страница 48, 52) 5. Кнопка FOCUS (→ страница 24) 6. Кнопка MENU (→ страница 33) 7. Кнопка SELECT / SOU...
Страница 15 - Название частей пульта дистанционного управления
1. Введение Название частей пульта дистанционного управления 1. Инфракрасный передатчик (→ страница 8) 2. Кнопка POWER ON (→ страница 16) 3. Кнопка POWER OFF (→ страница 27) 4. Кнопка FOCUS (+) (-) (→ страница 24) 5. Кнопка PIC-MUTE (→ страница 28) 6. Кнопка PAGE (UP)/(DOWN)* (→ страница 31) 7. Кноп...
Страница 16 - Диапазон работы беспроводного дистанционного управления; Датчик ДУ на корпус проектора; Установка элементов питания
1. Введение 1 Нажмите и снять крышку с отсека элементов питания. 2 Установить новые элементы питания (AАA). Проверить полярность элементов питания (+/-). 3 Диапазон работы беспроводного дистанционного управления Датчик ДУ на корпус проектора 7м/22 футов Пульт ДУ • Инфракрасный сигнал работает в пред...
Страница 17 - Установка и подключения; ПРИМЕЧАНИЕ: Перед переноской проектора; Установка экрана и проектора; Выбор положения; Используйте данные расстояния как полученные эмпирически.; К настенной
2. Установка и подключения В данном разделе описана установка проектора и подключение проектора к ПК, источникам видео- или аудиосигнала. Установка и использование проектора не представляют никаких сложностей. Но перед тем как начать, следует сначала сделать следующее: ПРИМЕЧАНИЕ: Перед переноской п...
Страница 18 - Проекционное расстояние и размер экрана; для определения положения установки.; Схема расстояния; В= Вертикальное расстояние между центром линз и центром экрана; Центр экрана
Проекционное расстояние и размер экрана На следующем рисунке показано действительное взаимоположение проектора и экрана. См. таблицу для определения положения установки. Схема расстояния В= Вертикальное расстояние между центром линз и центром экрана С= Проекционное расстояние D= Вертикальное расстоя...
Страница 19 - Отражение изображения
ВНИМАНИЕ * Установку проектора на потолке должны выполнять квалифицированные специалисты. За более подробной информацией обращайтесь к продавцу NEC. * Не пытайтесь установить проектор самостоятельно. • Устанавливать проектор только на твердой, ровной поверхности. При падении проектора на пол вы може...
Страница 20 - Подключения; Подключение к ПК или компьютеру Macintosh; питание которого уже включено.; Включение внешнего дисплея компьютера; + F8 для переключения посредством выбора на внешнем дисплее.
2. Установка и подключения Подключения Подключение к ПК или компьютеру Macintosh ПРИМЕЧАНИЕ: При использовании персонального ноутбука убедиться, что проектор подключается к ноутбуку, когда проектор находится в режиме ожидания, а питание ноутбука выключено. В большинстве случаев выходной сигнал от но...
Страница 21 - Кабель составного сигнала RCA x 3; DVD плейер; Аудио кабель
2. Установка и подключения Подключение DVD плейера к составному выходу Кабель составного сигнала RCA x 3 (не входит в комплект поставки) Аудиооборудование DVD плейер Аудио кабель (не входит в комплект поставки) ПРИМЕЧАНИЕ: Требования по видеовыходу для DVD плейера см. в руководстве к DVD плейеру. Ка...
Страница 22 - Аудиооборудование; видеомагнитофон или проигрыватель лазерных дисков.; Видео кабель
2. Установка и подключения Подключение видеомагнитофона или проигрывателя лазерных дисков Аудиооборудование Видеомагнитофон / Проигрыватель лазерных дисков (не входит в комплект поставки) Аудио кабель (не входит к комплект поставки) ПРИМЕЧАНИЕ: Требования по видеовыходу для вашего оборудования см. в...
Страница 23 - Подключите поставляемый шнур питания к проектору.; Убедиться, что штыри полностью вставлены; К настенной розетке
S-VI DEO IN VIDE O I N C O M PU T E R IN PC C O N T RO L AC I N ON/STAND BY FOCUS LAMP STATUS POWER 2. Установка и подключения Подключение поставляемого шнура питания Подключите поставляемый шнур питания к проектору. Сначала подключите трехштырьковый разъем поставлемого шнура питания к входу AC IN п...
Страница 24 - Проектор нельзя выключить при мерцающем индикаторе; Включение проектора; Снимите крышку объектива.; проектора или POWER ON на пульте дистанционного
1.• 2. ПРИМЕЧАНИЕ: При отсутствии сигнала отображается синий или черный экран. При отображении синего или черного экрана, проектор автоматически переходит в режим ожидания. Проектор вернется в нормальный режим сразу при подключении сигнала . ПРИМЕЧАНИЕ: Если включить проектор сразу же после того, ка...
Страница 25 - Примечание по экрану запуска (экран выбора языка меню); Используйте кнопку SELECT и для выбора
3. Проецирование изображения (Основные принципы) Примечание по экрану запуска (экран выбора языка меню) При первом включении проектора нужно войти в меню Startup. Данное меню дает возможность выбрать меню на одном из девяти языков.Для выбора языка меню выполните следующие пошаговые операции: 1. Испо...
Страница 26 - Выбор источника сигнала; Выбор компьютера и видеоисточника; ПРИМЕЧАНИЕ: Включить компьютер или оборудование; Настройка с помощью кнопок на корпусе.; без отображения меню.
3. Проецирование изображения (Основные принципы) Выбор источника сигнала Выбор компьютера и видеоисточника ПРИМЕЧАНИЕ: Включить компьютер или оборудование видеоисточника, подключаемое к проектору. Настройка с помощью кнопок на корпусе. 1. 2. Автоматическое определение сигнала Нажмите и удержите, по ...
Страница 27 - Выбор источника по умолчанию; при включении проектора.
3. Проецирование изображения (Основные принципы) Выбор источника по умолчанию Возможно установить источник как источник по умолчанию, который будет отображаться каждый раз при включении проектора. 1. 2. 3. 4. (→ стр. 44) Выбрать [Setup - options] → [Default Source Select] из меню. Тогда будет отобра...
Страница 28 - Регулировка размера и положения изображения; О функции автоматической фокусировки Auto Focus.
Регулировка размера и положения изображения 3. Проецирование изображения (Основные принципы) 0 Установить проектор наплоской ровной поверхности и убедиться, что проектор отображает прямоугольную проекцию. Приподнять переднюю часть проектора для вертикального выравнивания изображения по центру. * Есл...
Страница 29 - Регулировка опоры наклона; Не старайтесь задеть выход вентиляции во время регулировки
3. Проецирование изображения (Основные принципы) Регулировка опоры наклона 1. 2 . 3. 4. ПРИМЕЧАНИЕ: Высоту задних опор можно настроить до 0,16 дюйма/4 мм (1 градус угла). Повернуть заднюю опору на требуемую высоту для выравнивания прямоугольной проекции изображения на проекционной поверхности. Не вы...
Страница 30 - Увеличение/Уменьшение; ПРИМЕЧАНИЕ: При вращении рычага ZOOM фокус; Автофокусировка; • При использовании прозрачности экрана.
S-VID EO I N VID E O IN C O M PU T ER IN PC C O N T R O L AC IN SO UR C E AU T O AD J. SEL EC T O N / STAN D BY LAMP STA TUS PO W ER FO C U S 3. Проецирование изображения (Основные принципы) Увеличение/Уменьшение С помощью рычага ZOOM настроить размер изображения на экране. ПРИМЕЧАНИЕ: При вращении ...
Страница 31 - Автоматическая коррекция трапецеидального искажения; проецирования.
3. Проецирование изображения (Основные принципы) Автоматическая коррекция трапецеидального искажения Функция автоматической коррекции трапецеидального искажения исправляет искажение проецируемого изображения на экране. Для этого не требуется проведение каких- либо действий. Необходимо только размест...
Страница 32 - Нажмите кнопку SELECT или для настройки фокусировки.; Настройка с помощью пульта дистанционного управления.; Настройка фокусировки вручную.; Производить настройку фокусировки вручную в следующих случаях:; Настройка с помощью кнопок корпуса
3. Проецирование изображения (Основные принципы) 1. Быстро нажмите кнопку FOCUS. Отобразится экран настройки фокусировки. 2. Нажмите кнопку SELECT или для настройки фокусировки. 3. Нажмите кнопку EXIT. Экран настройки фокусировки закроется. Настройка с помощью пульта дистанционного управления. 1. На...
Страница 33 - Коррекция трапецеидального искажения вручную; Нажмите кнопку SELECT или без; Настройка с помощью пульта дистанционного; Для выбора использовать кнопку SELECT в
3. Проецирование изображения (Основные принципы) Коррекция трапецеидального искажения вручную Вы также можете корректировать трапецеидальное искажение вручную. ПРИМЕЧАНИЕ: Ручная коррекция искажения недоступна, если на вход не поступает ни один сигнал. Выполнять настройку трапецеидального искажения ...
Страница 34 - Автоматическая оптимизация изображения RGB; Регулировка изображения при помощи автоматической настройки; Данная настройка необходима при первом подключении компьютера.; • Нажмите кнопку SELECT без отображения меню.; Коррекция вертикального искажения.
3. Проецирование изображения (Основные принципы) Автоматическая оптимизация изображения RGB Регулировка изображения при помощи автоматической настройки Данная настройка необходима при первом подключении компьютера. Настройка с помощью кнопок корпуса • Нажмите кнопку SELECT без отображения меню. Изоб...
Страница 35 - это может вызвать потерю настроек или установок.; Выключение проектора; Убрать проектор и его принадлежности в сумку.
О прямом включении питания Проектор имеет функцию, называемую “прямое выключение питания”. Данная функция позволяет выключить проектор во время проецирования изображения. ПРИМЕЧАНИЕ: Не выключать проектор при помощи функции прямого выключения в течение 10 минут после выполнения настроек или изменени...
Страница 36 - Удобные возможности; Выключение изображения; Нажмите кнопку LAMP MODE для отображения экрана [Lamp; Предотвращение неавторизованного использования проектора; На экране отобразится меню.
4. Удобные возможности Выключение изображения Для кратковременного выключения изображения нажмите кнопку PIC-MUTE. Нажмите эту кнопку повторно для восстановления изображения. Остановка картинки Нажмите кнопку FREEZE для остановки картинки. Нажмите эту кнопку еще раз для продолжения просмотра. Измене...
Страница 39 - Использование дополнительного приемника удаленной мыши; на компьютере презентаций.; Подключение приемника удаленной мыши к компьютеру; Компьютер
30˚ 30˚ 4. Удобные возможности Использование дополнительного приемника удаленной мыши Дополнительно поставляемый приемник удаленной мыши позволяет управлять функциями мыши компьютера при помощи дистанционного управления. Это является большим удобством для созданных на компьютере презентаций. Подключ...
Страница 40 - Можно управлять мышью компьютера при помощи пульта ДУ.; О режиме перетаскивания:; кнопки SELECT
4. Удобные возможности Управление мышью компьютера при помощи пульта ДУ Можно управлять мышью компьютера при помощи пульта ДУ. Кнопка PAGE UP/DOWN.........прокручивает область просмотра окна или переходит на предыдущий или следующий слайд в презентации PowerPoint на компьютере. Кнопка SELECT ..........
Страница 41 - Использование экранного меню; Использование меню; динамического изображения.; проектора; для выбора пункта, который необходимо настроить или установить.
5. Использование экранного меню Использование меню ПРИМЕЧАНИЕ: Экранное меню может отображаться неверно при чересстрочном проецировании динамического изображения. 1. Нажать кнопку MENU на пульте дистанционного управления или на корпусе проектора для отображения меню. Выделение указывает выбранное ме...
Страница 42 - Указатель прокрутки; Обозначение кнопки возврата, кнопка-переключатель; кнопки EXIT для выхода из; Бегунок
5. Настроить уровень выбранного пункт или выбираемого пункта Для настройки пунктов (Бегунок) Бегунок.....................................Показывает настройки или направление регулировки. • Использовать кнопки SELECT для настройки пункта. Для выбора пунктов ( Указатель прокрутки ) Указатель прокрутки...
Страница 43 - Элементы меню; Оставшееся время по
5. Использование экранного меню Элементы меню Наименование Бегунок Выделение Источник Кнопка-переключатель Кнопка ОККнопка выхода Оставшееся время по таймеру выключения Обозначение термометра Обозначение кнопки блокировки Указатель прокрутки Окна меню или диалоговые окна обычно состоят из следующих ...
Страница 44 - Перечень пунктов меню; Некоторые пункты меню недоступны в зависимости от источника
5. Использование экранного меню Перечень пунктов меню Некоторые пункты меню недоступны в зависимости от источника * Звездочкой (*) указывается, что настройки по умолчанию изменяются в зависимости от сигнала.
Страница 46 - Подробные настройки; Регулировка абсолютно белого; Описание и функции меню [Picture; Предварительная настройка
При выборе предварительно настраиваемой пользовательские установки, отображается подменю. Можно настроить любую гамму или цвет. Для этого сначала выберите [Preset] и нажмите кнопку EN- TER и выполните следующие шаги. Подробные настройки Выбор ссылочных установок [Reference] Данный параметр позволяет...
Страница 47 - белого в избражении); Выбор характеристического отношения [Aspect Ratio]; изображение при правильном разрешении.
Настройка яркости, контрастности, четкости, цвета и оттенка. Можно настроить яркость, контрастность, четкость, цвет и оттенок. СОВЕТ: Если выделен какой-либо один параметр яркости, контрастности, четкости, цвета или оттенка, то при нажатии на кнопку ENTER откроется окно с бегунком для его настройки....
Страница 48 - Включение шумоподавления [Noise Reduction]; ширины полосы. При включении шумоподавления изображение; Настройка вертикального положения изображения; выбранном отношении Cinema.
5. Использование экранного меню Настройка горизонтального/вертикального положения, такта и фазы [Position/Clock] Позволяет вручную настроить положение и устойчивость изображения. [Horizontal], [Vertical], [Clock] и [Phase]. [Horizontal/Vertical] (доступно только для сигнала RGB) Настройка вертикальн...
Страница 49 - искажение автоматически.; Выбор режима поправки на цвет стены [Wall Color]; • Режим лампы может быть выбран при помощи меню.
5. Использование экранного меню Описание и функции меню [Setup] [Setup - General] Включение функции автокоррекции трапецеидального искажения [Auto Keystone] Данная функция определяет наклон проектора и корректирует вертикальное трапецеидальное искажение автоматически. Для включения функции выберите ...
Страница 50 - управления или функции управления ПК.
5. Использование экранного меню [Setup - Installation] (Установка) Выбор положения проектора [Orientation] Данная команда ориентирует изображение для определенного типа проектора. Возможны следующие варианты: прямое проецирование со стола, обратное проецирование с потолка, обратное проецирование со ...
Страница 51 - Данная функция позволяет включить функцию безопасности.; Выбор меню отображения времени [Menu Display Time]
5. Использование экранного меню Включение безопасности [Security] Данная функция позволяет включить функцию безопасности. До тех пор, пока не будет введен правильный пароль, проектор не будет проецировать изображение. Выбор цвета меню [Menu Color Select] Можно выбрать цвет меню из двух режимов цвета...
Страница 52 - • При включении питания.; Включение функции управления питанием [Power Management]; внутренней температурой.; Выбор источника по умолчанию [Default Source Select]; воспроизводит первый найденный источник.
5. Использование экранного меню [Setup - Options] (Параметры) Установка таймера выключения [Off Timer] Используйте функцию таймера выключения для автоматического выключения проектора в заранее заданное время. Время можно выбрать из восьми возможных вариантов: Выкл., 0:30, 1:00, 2:00, 4:00, 8:00, 12:...
Страница 53 - стандарты видеосигнала
5. Использование экранного меню Выбор формата сигнала [Signal Select] [Выбор системы Video и S-Video] Данная функция позволяет выбрать стандарты видеосигнала автоматически и вручную. В случае, если стандарт видео плохо определяется, выбрать подходящий стандарт видео из меню. Это должо быть сделано д...
Страница 54 - 100 часов в режиме энергосбережения) часов работы.
5. Использование экранного меню Описание и функции меню [Reset] Возвращение к заводским настройкам по умолчанию [Reset] Функция возврата к заводским настройкам позволяет изменять настройки и установки до заводских для (всех) источника(-ов), кроме следующего: Обнуление счетчика времени работы лампы [...
Страница 55 - фокусировки, линз и замены лампы и охлаждающего насоса.; Чистка линз и датчика фокусировки; Чистка линз; чтобы не поцарапать и не повредить поверхность линз.; Чиска датчика фокусировки; Чистка корпуса; Пропылесосить вентиляционное отверстие корпуса.
6. Обслуживание В данном разделе описаны процедуры, которые необходимо выполнять в случае очистки датчика фокусировки, линз и замены лампы и охлаждающего насоса. Чистка линз и датчика фокусировки Чистка линз Используйте носовой платок или бумагу для протирки оптических стекол, соблюдайте осторожност...
Страница 56 - Замена лампы и охлаждающего насоса; чтобы снять крышку лампы.
6. Обслуживание Замена лампы и охлаждающего насоса Если лампа находится в эксплуатации 2000 часов (до 3000 часов в режиме энергосбережения) или дольше, то индикатор ЛАМПЫ на корпусе замерцает красным и появится сообщение о замене лампы [The lamp has reached the end of its usable life. Please, replac...
Страница 57 - Необходимо сделать заказ через продавца NEC.; Затянуть винт крышки лампы.
6. Обслуживание 3. Ослабить два винта, с помощью которых закреплен корпус лампы до состояния, когда крестообразная отвертка начнет свободно вращаться. Два винта являются несъмными. Снять корпус лампы, придерживая его рукой. ПРИМЕЧАНИЕ: На кожухе имеется блокировка предотвращения опасности удара элек...
Страница 58 - Для замены охлаждающего насоса:
6. Обслуживание На этом замена лампы закончена. Перейти к замене охлаждающего насоса. Для замены охлаждающего насоса: 6. Снять охлаждающий насос. (1) Ослабить винт корпуса насоса до состояния, когда отвертка начнет свободно вращаться и снять корпус лампы. - Винт корпуса лампы не является съемным. ПР...
Страница 59 - На этом замена охлаждающего насоса закончена.; Подключить кабель питания и включить проектор.
6. Обслуживание (2) Затянуть винт крышки охлаждающего насоса. - Убедитесь, что винт крышки охлаждающего насоса затянут. На этом замена охлаждающего насоса закончена. Перейти к следующему шагу. 5. Подключить кабель питания и включить проектор. 6. Наконец, выбрать в меню → [Сброс] → [Обнулить время ла...
Страница 60 - оиск и устранение неисправностей; Сообщения индикатора; Индикатор питания
7. Приложение П оиск и устранение неисправностей Данный раздел поможет решить проблемы, с которыми можно столкнуться при установке или использовании проектора. Сообщения индикатора Индикатор питания Состояние индикатора Состояние проектора Примечание Не светится Питание отключено - Мерцающий свет Зе...
Страница 61 - Общие проблемы и их решения; Проблема; Для более подробной информации обращайтесь к продавцу.
7. Приложение Общие проблемы и их решения (- “Питание/Состояние/Индикатор лампы” на стр. 52) Проблема Проверить следующие пункты Не включается • Проверить, подключен ли шнур питания и включена ли кнопка питания на корпусе или пульт дистанционного управления. (→ стр. 15, 16) • Убедиться, что крышка л...
Страница 63 - Технические характеристики; Номер модели
Технические характеристики Данный раздел содержит технические данные о проекторе NP60/NP50/NP40. Номер модели Оптические DMD Разрешение Линзы Лампа Световой выход** Степень контрастности (полностью белый : полностью черный) Размер изображения (Диагональ) Проекционное расстояние Угол проекции Электри...
Страница 64 - Механические; Для Соединенных штатов Америки:
Дополнительную информацию можно получить, посетив: США : http://www.necvisualsystems.com Европа : http://www.neceurope.com/ Все страны: http://www.nec-pj.com/ Дополнительную информацию по вспомогательному оборудованию можно получить, посетив веб- сайт или просмотрев брошюру. Технические характеристи...
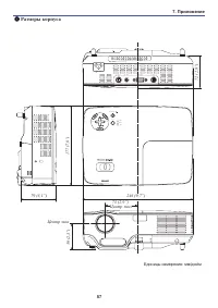
Страница 65 - Размеры корпуса; Центр линз
Размеры корпуса Единицы измерения: мм/дюйм SOU RCE AUT O ADJ . S-V IDE O IN VID EO I N COM PUT ER I N PC C ONT ROL ON/ STA ND B Y FOC US LAM P STA TUS POW ER SE LE CT AC I N Lens cente r 246 ( 9.7") 17 7 (7 .0 ") 73 (2.9") 59 (2 .3 ") 79 (3.1") Lens cente r 72 (2 .8 ") Центр ...
Страница 66 - Конфигурация разъемов входного разъема D-Sub COMPUTER
Конфигурация разъемов входного разъема D-Sub COMPUTER Разъем Mini D-Sub (15 штырьковый) Уровень сигнала Видео сигнал: 0,7 Vp-p (аналоговый) Сигнал синхронизации: Уровень TTL № пина Сигнал RGB (Аналоговый) Сигнал YCbCr 1 Красный Cr 2 Зеленый или синхронизирован на зеленый Y 3 Синий Cb 4 Фон 5 Фон 6 К...
Страница 67 - Перечень совместимого входного сигнала; По вертикали: 50 Гц до 85 Гц; Сигнал Разрешение Частота Г. Частота обновления; “Параметры дисплея” вашего ПК.
Перечень совместимого входного сигнала По горизонтали: 15 кГц до 100 кГц (RGB: 24 кГц или выше) По вертикали: 50 Гц до 85 Гц Сигнал Разрешение Частота Г. Частота обновления ( Точки ) ( кГц ) ( Гц ) #: Сигналы, помеченные “#”, сжаты при помощи технологии масштабирования. ПРИМЕЧАНИЕ: • • Чересстрочная...
Страница 68 - Коды управления ПК и подключение кабелей; Коды управления ПК; Функция Программный код; Подключение кабелей; Протокол обмена
Коды управления ПК и подключение кабелей Коды управления ПК Функция Программный код ПРИМЕЧАНИЕ: Обратиться к продавцу для получения информации по полному перечню Кодов управления ПК, если необходимо. Подключение кабелей Протокол обмена Скорость передачи в бодах.................................38400 ...
Страница 69 - Лист проверок по поиску и устранению неисправностей; * Напечатать данную и следующую страницы для проверки.; Частота появления; Питание
Лист проверок по поиску и устранению неисправностей До обращения к продавцу или обслуживающему персоналу, проверить следующий лист, чтобы убедиться в необходимости ремонта согласно разделу “Поиск и устранение неисправностей” данного руководства. Приведенный ниже лист проверок поможет решить проблему...
Страница 70 - Ниже необходимо подробно описать возникшую проблему.; Проектор; Среда установки
Ниже необходимо подробно описать возникшую проблему. Информация по применению и окружающей среде, где используется проектор Проектор Номер модели: Серийный номер: Дата покупки: Время работы лампы (часов): Режим лампы: Нормальный Энергосбережение Информация по входному сигналу: Горизонтальная синхрон...
Страница 71 - Руководство по переноске
Руководство по переноске TravelCare - услуга для международных путешественников Данный продукт отвечает требованиям “TravelCare”, уникальной гарантии. Пожалуйста, обратите внимание, что область действия Trav- elCare частично отличается от области действия гарантии, предоставляемой вместе с продукцие...
Страница 72 - В Азии и на Среднем Востоке; ПРИМЕЧАНИЕ: В странах, назвния которых отмечены
В Азии и на Среднем Востоке NEC Viewtechnology, Ltd. Адрес: 686-1, Nishioi, Oi-Machi, Ashigarakami-Gun, Kanagawa 258-0017, Japan Телефон: +81 465 85 2369 Факс: +81 465 85 2393 Адрес электронной почты: support_pjweb@nevt.nee.co.jp Адрес веб-сайта: http://www.nec-pj.com (Область обслуживания) Япония*N...
Страница 73 - КОМУ: NEC или авторизованный сервсиный центр NEC:; Лист приложения к программе обслуживания TravelCare
Дата: / / , Р-1/ , КОМУ: NEC или авторизованный сервсиный центр NEC: ОТ: _______________________________________________________________________________ (Компания и фамилия с подписью) Уважаемые господа, Я хотел бы использовать программу обслуживания TravelCare на основании прилагаемого листа регист...
Страница 74 - Условие программы обслуживания TravelCare
Условие программы обслуживания TravelCare Конечный пользователь должен понимать следующее условие программы обслуживания TravelCare и заполнить необходимую информацию в листе приложения. 1. Условия обслуживания: Существует три типа обслуживания. Конечный пользователь должен понимать следующее услови...