Страница 2 - ПРИМЕЧАНИЯ
Ver.1 6/15 • DLP является товарным знаком компании Texas Instruments• Apple, Mac, Mac OS и MacBook являются товарными знаками компании Apple Inc., зарегистрированными в США и других странах. • App Store является знаком обслуживания Apple Inc.• iOS является товарным знаком или зарегистрированным това...
Страница 3 - Важная информация; Предостережения относительно безопасности; Меры предосторожности; ВНИМАНИЕ; Утилизация использованного изделия; Для стран Евросоюза:
i Важная информация Предостережения относительно безопасности Меры предосторожности Перед эксплуатацией проектора NEC внимательно ознакомьтесь с этим руководством и храните его в доступном месте для будущих справок. ВНИМАНИЕ Для отключения от сети электропитания обязательно выньте штепсель из розетк...
Страница 4 - ii; Важные меры безопасности
Важная информация ii Важные меры безопасности Эти инструкции по технике безопасности предназначены для обеспечения длительного срока службы проектора и предотвращения поражения электрическим током. Пожалуйста, внимательно прочитайте их о помните обо всех предостережениях. Установка • Не устанавливай...
Страница 5 - iii; Меры пожарной и электрической безопасности; Соблюдайте осторожность, когда поднимаете проектор.
Важная информация iii Меры пожарной и электрической безопасности • Чтобы предотвратить накопление тепла внутри проектора, убедитесь, что он хорошо вентилируется и что венти- ляционные отверстия не заблокированы. Расстояние между проектором и стеной должно составлять не менее 4 дюймов (10 см). • Не к...
Страница 6 - iv; Замена лампы; [ПЕРИОД ЭКСПЛУАТАЦИИ ЛАМПЫ ПОДОШЕЛ К КОНЦУ.
Важная информация iv • Выключайте проектор и отсоединяйте силовой кабель от электросети перед чисткой корпуса или заменой лампы.• Выключайте проектор и отсоединяйте силовой кабель от электросети в случаях, если вы не планируете использовать проектор длительное время. • При использовании кабеля локал...
Страница 7 - эксплуатации оптических компонентов, например лампы.; ОБ АВТОРСКИХ ПРАВАХ НА ОРИГИНАЛЬНЫЕ ПРОЕЦИРУЕМЫЕ ИЗОБРАЖЕНИЯ.
Важная информация v Информация о режиме работы на большой высоте • Если проектор используется на большой высоте (приблизительно 5500 футов/1600 метров или выше), установите для параметра [РЕЖИМ ВЕНТИЛЯТОРА] значение [БОЛЬШАЯ ВЫСОТА]. Если при использовании проектора на высоте приблизительно 5500 фут...
Страница 8 - отсутствует на всех входах или не выполняются никакие операции.; Номер модели устройства беспроводной локальной сети
Важная информация vi Функция управления питанием Проектор имеет функции управления питанием. Для снижения потребляемой мощности функции управления питани-ем (1 и 2) являются заводскими установками, как показано ниже. Для управления проектором с внешнего устройства через LAN или соединение через посл...
Страница 9 - vii; Оглавление
vii Оглавление Важная информация ................................................................................................. i 1. Введение ...................................................................................................................1 ❶ Комплектация ..........................
Страница 10 - viii
Оглавление viii Применение Эко режима [ЭКО РЕЖИМ] ........................................................................................................................ 31Проверка энергосберегающего эффекта [ИЗМЕРЕНИЕ СО2] ..............................................................................
Страница 11 - ix
Оглавление ix Настройка проектора на подключение к проводной локальной сети [ПРОВОД. ЛОКАЛ. СЕТЬ] ............................... 109Настройка проектора на подключение к беспроводной локальной сети (с установленным дополнительным устройством беспроводной локальной сети USB) [БЕСПРОВОД. ЛОК. СЕТЬ] .....
Страница 12 - Комплектация
1 Проектор [M403W/M363W/M323W/M403X/M363X/M323X/ M283X/M403H/M323H] Шнур питания(US: 7N080236/7N080242)(EU: 7N080022/7N080028) Мягкий футляр (24BS8391) В комплект M353WS/M303WS/M333XS не входит мягкий футляр. [M353WS/M303WS/M333XS] Шнур питания(US: 7N080240/7N080243)(EU: 7N080027/7N080029) Компьютер...
Страница 13 - Ознакомление с проектором; Поздравляем с покупкой проектора!; Не пытайтесь прикрепить проектор к потолку самостоятельно.; Проектор оснащен следующими функциональными возможностями:; • Измерение CO2
2 1. Введение ❷ Ознакомление с проектором В этой главе приводится ознакомительная информация о проекторе, а также содержится описание его функций и элементов управления. Поздравляем с покупкой проектора! Этот проектор — один из самых лучших современных проекторов. Проектор позволяет проецировать чет...
Страница 14 - в сообщении на экране.; Об этом руководстве пользователя
3 1. Введение • Дисплей USB С помощью доступного на рынке кабеля USB (совместимого с техническими условиями USB 2.0) для подключения проектора к компьютеру Вы сможете посылать изображение на мониторе компьютера на проектор без использо-вания обычного компьютерного кабеля (VGA). • Встроенный разъем R...
Страница 15 - Сравнительная таблица основных функций; ПОДСКАЗКА: Имя модели расположено на корпусе проектора.
4 1. Введение Сравнительная таблица основных функций Основные функции различаются в зависимости от модели следующим образом. Стандартные модели с широ- кой панелью Стандартные модели Короткофокусные модели с широкой панелью Корот- кофо- кусные модели Модель Full HD M403W M363W M323W M403X M363X M323...
Страница 16 - Название деталей проектора; Передняя/верхняя часть; Сдвиньте крышку объектива вправо, чтобы открыть объектив.
5 1. Введение ❸ Название деталей проектора Передняя/верхняя часть [M403W/M363W/M323W/M403X/M363X/M323X/M283X/M403H/M323H] Элементы управления( → стр. 8 ) Дистанционный датчик ( → стр. 11 ) Вентиляционное (выходное) отверстиеОтсюда выходит нагретый воздух. Крышка порта для подключения дополнительного...
Страница 17 - Задняя часть
6 1. Введение Вход переменного тока Вставьте трехконтактный штеп- сель силового кабеля, входящего в комплект поставки, в данный разъем. Вставьте в электрическую розетку штепсельную вилку на другом конце кабеля питания ( → стр. 14 ) Встроенный слот безопасности ( )* Разъемы ( → стр. 9 ) Крышка лампы ...
Страница 19 - Важнейшие функции; / Кнопки регулирования громкости
8 1. Введение Важнейшие функции M403W/M363W/M323W/M403X/M363X/M323X/M283X/M403H/M323H M353WS/M303WS/M333XS 1, 2 8 9 11 12 5 6 10 3 4 7 13 8 9 11 12 5 6 10 7 13 1. Кнопка (POWER) ( → стр. 15 , 27 ) 2. Индикатор POWER ( → стр. 14 , 15 , 27 , 136 ) 3. Индикатор STATUS ( → стр. 136 ) 4. Индикатор LAMP (...
Страница 20 - Функции разъемов; COMPUTER IN/ Компонентный входной разъем; приведены типичные коды управления с ПК.
9 1. Введение Функции разъемов 1 2 4 6 14 13 7 9 8 12 11 10 3 5 1. COMPUTER IN/ Компонентный входной разъем (Mini D-Sub 15 Pin) ( → стр. 122 , 124 , 126 ) 2. Мини-гнездо COMPUTER AUDIO IN (стереофоническое мини-гнездо) ( → стр. 122 , 124 , 126 ) 3. Разъем HDMI 1 IN (19-штырьковый HDMI типа A) ( → ст...
Страница 21 - Элементы пульта дистанционного управления; ) Кнопка FOCUS не работает в
10 1. Введение ❹ Элементы пульта дистанционного управления 3 46 7 1 2 10 13 16 12 17 15 11 19 9 5 8 303132 20 21 26 28 29 25 14 18 24 23 22 27 33 * Кнопки MOUSE L-CLICK и MOUSE R-CLICK работают только в том случае, если кабель USB подсоединен к компьюте- ру. 1. Инфракрасный передатчик ( → стр. 11 ) ...
Страница 22 - Правила обращения с пультом дистанционного управления; Установка элемента питания
11 1. Введение Правила обращения с пультом дистанционного управления • Обращайтесь с пультом дистанционного управления бережно.• Если на пульт дистанционного управления попала влага, немедленно вытрите его насухо.• Берегите пульт от чрезмерно высоких температур и влажности.• Не замыкайте, не нагрева...
Страница 23 - Программное обеспечение, включенное на компакт-диске; Служба загрузки и рабочая среда
12 1. Введение ❺ Программное обеспечение, включенное на компакт-диске Названия и функции встроенного программного обеспечения Название программного обеспе-чения Функции Virtual Remote Tool(Только Windows) Это – программное приложение, которое используется для управления вклю-чением и выключением пит...
Страница 24 - Порядок проецирования изображения; - Автоматическая оптимизация сигнала компьютера (
13 2. Проецирование изображения (основные операции) В этом разделе описано, как включить проектор и спроецировать изображение на экран. ❶ Порядок проецирования изображения Шаг 1 • Подключение компьютера / Подсоединение силового кабеля ( → стр. 14 ) Шаг 2 • Включение проектора ( → стр. 15 ) Шаг 3 • В...
Страница 25 - Подключение компьютера / Подсоединение силового кабеля; Подсоедините прилагаемый силовой кабель к проектору.
14 2. Проецирование изображения (основные операции) ❷ Подключение компьютера / Подсоединение силового кабеля 1. Подключите компьютер к проектору. В данном разделе описывается основное подключение к компьютеру. Для получения информации о других подклю- чениях см. «6. Installation and Connections» на ...
Страница 26 - Включение проектора; Сдвиньте крышку объектива вправо, чтобы открыть
15 2. Проецирование изображения (основные операции) Режим ожидания Мигание Питание включено Постоянно светится красный Мигающий синий индикатор Горящий синий индикатор ❸ Включение проектора 1. Сдвиньте крышку объектива вправо, чтобы открыть объектив. [M353WS/M303WS/M333XS] 1. Снимите крышку объектив...
Страница 27 - Примечание об экране запуска (экран выбора языка меню); Для выбора языка меню выполните следующие действия:; ляторы, после чего на экране появится изображение.
16 2. Проецирование изображения (основные операции) 1. Используйте кнопки ▲ , ▼ , ◀ или ▶ , чтобы выбрать нужные языки из меню. 2. Нажмите кнопку ENTER, чтобы подтвердить выбор. После этого можно перейти к работе с меню.При желании язык меню можно выбрать позже. ( → [ЯЗЫК] на стр. 84 , 97 ) Примечан...
Страница 28 - Выбор источника; Выбор компьютера или источника видеосигнала; На экране отобразится меню.
17 2. Проецирование изображения (основные операции) ❹ Выбор источника Выбор компьютера или источника видеосигнала ПРИМЕЧАНИЕ: Компьютер или иной источник видеосигнала, подключенный к компьютеру, должен быть включен. Автоматическое обнаружение сигнала Нажмите кнопку SOURCE один раз. Проектор произвед...
Страница 29 - Регулировка размера и положения изображения; В этом разделе чертежи и кабели не указаны для большей ясности.
18 2. Проецирование изображения (основные операции) ❺ Регулировка размера и положения изображения Чтобы настроить размер и положение картинки, используйте ножку для регулирования наклона, функцию масштаби-рования или колесико «Фокус». В этом разделе чертежи и кабели не указаны для большей ясности. Н...
Страница 30 - Настройка ножки для регулирования наклона; Для удлинения ножки для регулирования наклона нажмите и удер-
19 2. Проецирование изображения (основные операции) Настройка ножки для регулирования наклона 1. Поднимите передний край проектора. ВНИМАНИЕ: Не дотрагивайтесь до выпускного вентиляционного отверстия во время настройки ножки для регулирования наклона, так как при вклю-чении проектора это отверстие н...
Страница 31 - Масштабирование; Отобразится индикатор ЦИФРОВОЙ ФОКУС.
20 2. Проецирование изображения (основные операции) Масштабирование [M403X/M363X/M323X/M283X/M403W/M363W/M323W/M403H/M323H] Рычаг ZOOM используется для настройки размера изображения на экране. [M333XS/M353WS/M303WS] Размер изображения можно электронно регулировать из меню. Для этого выполните описан...
Страница 32 - Фокус; Колесико FOCUS используется для настройки фокусировки.
21 2. Проецирование изображения (основные операции) Фокус Колесико FOCUS используется для настройки фокусировки. Колесико Фокус Рычаг фокусировки [M403X/M363X/M323X/M283X/M403W/M363W/M323W/M403H/M323H] [M333XS/M353WS/M303WS] Используйте рычаг FOCUS для получения наилучшего фокуса.
Страница 33 - Коррекция трапециевидных искажений вручную; или
22 2. Проецирование изображения (основные операции) ❻ Коррекция трапециевидных искажений вручную Если экран наклонен вертикально, трапециевидные искажения увеличиваются. Функция автоматической коррекции трапециевидного искажения включена на момент поставки. Чтобы выполнить коррекцию трапециевидных и...
Страница 34 - Настройка с помощью пульта дистанционного управления; Появится панель настройки трапецеидального искажения.
23 2. Проецирование изображения (основные операции) Настройка с помощью пульта дистанционного управления 1. Нажмите кнопку KEYSTONE. Появится панель настройки трапецеидального искажения. 2. Используйте кнопку ◀ или ▶ для исправления трапецеидального искажения. Настройте так, чтобы правая и левая сто...
Страница 37 - Автоматическое обнаружение сигнала компьютера; Настройка изображения с помощью кнопки Auto Adjust; Увеличение или уменьшение громкости; Громкость динамика можно изменять.
26 2. Проецирование изображения (основные операции) ❼ Автоматическое обнаружение сигнала компьютера Настройка изображения с помощью кнопки Auto Adjust Автоматическая оптимизация изображения компьютера. (КОМПЬЮТЕР)Для выполнения автоматической оптимизации компьютерного изображения нажмите кнопку AUTO...
Страница 38 - Выключение проектора; Чтобы выключить проектор:; Нажмите на кнопку
27 2. Проецирование изображения (основные операции) ❾ Выключение проектора Чтобы выключить проектор: 1. Нажмите на кнопку (POWER) на корпусе проектора или кнопку STANDBY на пульте дистанционного управления. Отобразится подтверждающее сообщение. 2. После этого нажмите кнопку ENTER или повторно нажми-...
Страница 39 - По завершении использования; защищен от повреждений.
28 2. Проецирование изображения (основные операции) ❿ По завершении использования Подготовка: Убедитесь, что питание проектора выключено. 1. Отсоедините силовой кабель. 2. Отсоедините остальные кабели. • Выньте запоминающее устройство USB, если оно вставлено в проектор. 3. Сложите ножку для регулиро...
Страница 40 - Отключение изображения и звука; жения, яркость лампы может не вернуться к исходному уровню.; Фиксация изображения; бражения изображения.; Увеличение изображения; Увеличение картинки возможно до четырехкратного размера.
29 ❶ Отключение изображения и звука Нажмите кнопку AV-MUTE, чтобы отключить изображение и звук на короткое время. Повторное нажатие вернет изображение и звук.Энергосберегающая функция проектора будет работать еще 10 секунд после выклю-чения изображения.В результате уменьшится мощность лампы. ПРИМЕЧА...
Страница 41 - Область увеличенного изображения будет перемещаться
30 3. Функции удобства 2. Нажмите кнопку ▲▼◀▶ . Область увеличенного изображения будет перемещаться 3. Нажмите кнопку D-ZOOM (−). При каждом нажатии кнопки D-ZOOM (−) изображение уменьшается. ПРИМЕЧАНИЕ: • Изображение будет увеличено или уменьшено в центре экрана.• Если открыть меню, текущее увеличе...
Страница 42 - Изменение режима ЭКО/Проверка энергосберегающего эффекта; Описание
31 3. Функции удобства ❹ Изменение режима ЭКО/Проверка энергосберегающего эффекта Применение Эко режима [ЭКО РЕЖИМ] РЕЖИМ ЭКО (НОРМАЛЬНОЕ и ЭКО) увеличивает срок службы лампы, одновременно уменьшая потребление энергии и ограничивая выбросы CO 2 . Можно выбрать один из четырех режимов яркости лампы: ...
Страница 43 - Проверка энергосберегающего эффекта [ИЗМЕРЕНИЕ СО2]
32 3. Функции удобства Проверка энергосберегающего эффекта [ИЗМЕРЕНИЕ СО2] Данная функция демонстрирует энергосберегающий эффект, выраженный в уменьшении выбросов CO 2 (кг), когда [ЭКО РЕЖИМ] проектора установлен на [АВТО ЭКО], [НОРМАЛЬНОЕ] или [ЭКО]. Эта функция называется [ИЗМЕРЕНИЕ CO2]. Возможны...
Страница 44 - Предупреждение несанкционированного использования; Чтобы активировать функцию безопасности:
33 3. Функции удобства ❺ Предупреждение несанкционированного использования проектора [БЕЗОПАСНОСТЬ] Можно установить пароль, чтобы предотвратить несанкционированное использование проектора. Каждый раз при включении проектора будет отображаться экран для ввода пароля. Проецирование изображения будет ...
Страница 45 - Для включения проектора при включенной функции [БЕЗОПАСНОСТЬ]:
34 3. Функции удобства 7. Введите комбинацию из тех же самых четырех кнопок ▲▼◀▶ и нажмите кнопку ENTER. Откроется окно подтверждения. 8. Выберите [ДА] и нажмите кнопку ENTER. Функция БЕЗОПАСНОСТЬ активирована. Для включения проектора при включенной функции [БЕЗОПАСНОСТЬ]: 1. Нажмите кнопку POWER. П...
Страница 47 - Использование компьютерного кабеля (VGA) для управления; Функции управления; Виртуальный пульт дистанционного управления
36 3. Функции удобства ❻ Использование компьютерного кабеля (VGA) для управления проектором (Virtual Remote Tool) С помощью утилиты «Virtual Remote Tool» (на CD для проектора компании NEC) виртуальный пульт дистанционного управления (или панель инструментов) можно увидеть на мониторе компьютера.Эта ...
Страница 48 - Шаг 1: Установка Virtual Remote Tool на компьютер; Отобразится окно меню.
37 3. Функции удобства ПРИМЕЧАНИЕ: • Если на Вашем переключателе источника выбран [КОМПЬЮТЕР], виртуальный пульт дистанционного управления или панель инструментов будут ото- бражены так же, как и экран Вашего компьютера. • Используйте входящий в комплект компьютерный кабель (VGA) для соединения разъ...
Страница 50 - Установка Virtual Remote Tool; Кликните «Пуск», а затем «Панель управления».; Шаг 2: Подсоедините проектор к компьютеру; ектора непосредственно с разъемом выхода монитора компьютера.
39 3. Функции удобства СОВЕТ: Установка Virtual Remote Tool Подготовка: Выйдите из Virtual Remote Tool перед установкой. Чтобы установить Virtual Remote Tool, учетная запись пользователя Windows должна быть с правами «Администратор». 1 Кликните «Пуск», а затем «Панель управления». Откроется окно Пан...
Страница 51 - Нажмите два раза на пиктограмму; Запуск из меню «Пуск»; Следуйте указаниям на экранах.
40 3. Функции удобства Шаг 3: Запустите Virtual Remote Tool Запуск с помощью пиктограммы на рабочем столе 1 Нажмите два раза на пиктограмму на рабочем столе компьютера. Запуск из меню «Пуск» • Нажмите [Пуск] → [Все программы] или [Программы] → [NEC Projector User Supportware] → [Virtual Remote Tool]...
Страница 52 - Выход из Virtual Remote Tool; Просмотр помощи к Virtual Remote Tool; • Отображение помощи, используя панель задач.; • Отображение помощи, используя меню Пуск.; Появится окно Помощь.
41 3. Функции удобства Выход из Virtual Remote Tool 1 Нажмите на пиктограмму Virtual Remote Tool на панели задач. На экране отобразится меню. 2 Нажмите на «Exit». Virtual Remote Tool закроется. Просмотр помощи к Virtual Remote Tool • Отображение помощи, используя панель задач. 1 Нажмите на пиктограм...
Страница 53 - Кнопка PAGE
42 3. Функции удобства ❼ Управление функциями мыши компьютера с пульта дистанционного управления через кабель USB (функция удаленной мыши) Встроенная функция удаленной мыши позволяет Вам управлять функциями мыши компьютера с помощью входящего в комплект пульта дистанционного управления, когда проект...
Страница 54 - Проецирование изображения экрана компьютера через кабель; • Откройте крышку объектива проектора или крышку объектива.
43 3. Функции удобства ❽ Проецирование изображения экрана компьютера через кабель USB (дисплей USB) С помощью доступного на рынке кабеля USB (совместимого с техническими условиями USB 2.0) для подключения про-ектора к компьютеру Вы сможете посылать изображение на мониторе компьютера для показа на пр...
Страница 56 - Управление проектором с помощью браузера HTTP; Общий обзор; будут посланы по электронной почте.; Подготовка перед началом работы
45 3. Функции удобства ❾ Управление проектором с помощью браузера HTTP Общий обзор Функция сервера HTTP осуществляет следующие настройки и процессы:1. Настройки для проводной/беспроводной сети (NETWORK SETTINGS) Для использования беспроводной локальной сети, необходимо дополнительное устройство бесп...
Страница 57 - Управление адресом для работы через браузер; в столбце адреса или столбце ввода URL-адреса.; PROJECTOR ADJUSTMENT; POWER: служит для управления питанием проектора.
46 3. Функции удобства Управление адресом для работы через браузер В качестве реального адреса, вводимого в строке ввода адреса при работе с проектором через браузер, можно ис-пользовать имя хоста, если это имя, соответствующее IP-адресу проектора, было зарегистрировано сетевым админи-стратором на с...
Страница 59 - WIRED или WIRELESS
48 3. Функции удобства СЕТЕВЫЕ НАСТРОЙКИ • SETTINGS WIRED или WIRELESS SETTING Настройка для проводной или беспроводной локальной сети. APPLY Применение настроек для проводной или беспроводной локальной сети. DHCP ON Автоматическое присваивание адреса IP, подсетевой маски и входа проектору с Вашего ...
Страница 60 - беспроводной локальной сети.
49 3. Функции удобства SITE SURVEY Отображение списка доступных идентификаторов SSID для беспроводной локальной сети на сайте. Выберите SSID, к которому Вы можете осуществить доступ. SECURITY TYPE Включение или выключение режима шифрования для безопасной передачи. При вклю-чении режима шифрования ус...
Страница 61 - верьте правильность сетевых настроек.; • NETWORK SERVICE
50 3. Функции удобства • NAME PROJECTOR NAME Введите имя для Вашего проектора, чтобы компьютер мог его распознавать. Имя про-ектора должно состоять из 16 или менее знаков.СОВЕТ: Выполнение [RESET ] из меню не влияет на имя проектора. HOST NAME Введите имя хост-системы сети, к которой подключен проек...
Страница 63 - Управление проектором через локальную сеть (PC Control Utility; Экран программы PC Control Utility Pro 4
52 3. Функции удобства ❿ Управление проектором через локальную сеть (PC Control Utility Pro 4/Pro 5) Используя утилиты «PC Control Utility Pro 4» и «PC Control Utility Pro 5», которые находятся на прилагаемом компакт-диске NEC Projector, можно управлять проектором через локальную сеть.PC Control Uti...
Страница 65 - «Система и безопасность»; Просмотр Помощи к PC Control Utility Pro 4; • Отображение Помощи во время работы с PC Control Utility Pro 4.
54 3. Функции удобства Шаг 2: Подключите проектор к локальной сети. Подключите проектор к локальной сети, выполнив инструкции в «Подключение к проводной локальной сети» ( → стр. 128 ), «Подключение к беспроводной локальной сети» ( → стр. 129 ) и «9 Управление проектором с помощью браузера HTTP» ( → ...
Страница 66 - Шаг 2: Подключите проектор к локальной сети; Управление проектором с помощью браузера; Шаг 3: Запустите PC Control Utility Pro 5; • Из меню щелкните на «Help»; • Отображение справки с помощью док
55 3. Функции удобства Использование на Mac OSШаг 1: Установите PC Control Utility Pro 5 на компьютер 1. Вставьте входящий в комплект диск NEC Projector CD-ROM в привод CD-ROM компьютера Mac. На экране отобразится значок компакт-диска. 2. Дважды щелкните значок компакт-диска. Отобразится окно компак...
Страница 67 - или карт памяти SD, без необходимости установки на Ваш компьютер. (; Функции Image Express Utility Lite; дной/беспроводной LAN или через соединение по USB.
56 3. Функции удобства ⓫ Отображение экрана Вашего компьютера с проектора через локальную сеть (Image Express Utility Lite) Image Express Utility Lite, содержащаяся на поставленном CD-ROM проектора NEC, позволяет отправлять изображение экрана и звук с компьютера на проектор по кабелю USB или по пров...
Страница 68 - Шаг 2: Подключите проектор к локальной сети.; ) и «9 Управление проектором с помощью браузера
57 3. Функции удобства Использование на WindowsШаг 1: Установите Image Express Utility Lite на компьютер. ПРИМЕЧАНИЕ: • Чтобы устанавливать или удалять программу, учетная запись пользователя Windows должна иметь права «Администратора».• Перед установкой закройте все работающие программы. Если включе...
Страница 69 - Шаг 3: Запустите Image Express Utility Lite.; чения; Просмотр файла «Помощь» к приложению Image Express Utility Lite
58 3. Функции удобства Шаг 3: Запустите Image Express Utility Lite. 1. В ОС Windows нажмите «Пуск» → «Все программы» → «NEC Projector UserSupportware» → «Image Express Utility Lite» → «Image Express Utility Lite». Запустится Image Express Utility Lite. Откроется окно выбора соединения сети. 2. Выбер...
Страница 71 - Загрузка Image Express Utility Lite через сервер HTTP; Отобразится страница загрузки.
60 3. Функции удобства Загрузка Image Express Utility Lite через сервер HTTP Процедура загрузки, когда проектор подключен к сети Интернет.1. Получите доступ к серверу HTTP. ( → стр. 45 ) 2. Выберите вкладку «NETWORK SETTINGS», а затем вкладку «NETWORK SERVICE».3. Нажмите «DOWNLOAD» для «Image Expres...
Страница 72 - Шаг 3: Запустите Image Express Utility Lite для Mac OS
61 3. Функции удобства Использование на Mac OSШаг 1: Установите Image Express Utility Lite для Mac OS на компьютер 1. Вставьте входящий в комплект диск NEC Projector CD-ROM в привод CD-ROM Вашего компьютера Mac. На экране отобразится значок компакт-диска. 2. Дважды кликните по значку компакт-диска. ...
Страница 74 - Возможности инструментальных средств GCT; тырех вершин картинки с соответствующей вершиной экрана.; Parameters Correction:; считанных комбинаций правил преобразования.
63 3. Функции удобства ⓬ Проекция под углом (инструментальные средства Geometric Correction Tool приложения Image Express Utility Lite) Инструментальные средства Geometric Correction Tool (GCT ) позволяют корректировать искажения изображения, спроектированного не под прямым углом к экрану. Возможнос...
Страница 77 - Просмотр 3D изображений; ОСТОРОЖНО; смотра делайте перерыв продолжительностью не менее 15 минут.; Шаги для просмотра 3D-изображений на проекторе; более подробной информации.; Экранное меню для 3D изображений; Будет отображено экранное меню.
66 3. Функции удобства ⓭ Просмотр 3D изображений Проектор предоставляет возможность просмотра 3D изображений пользователям, имеющим доступные в продаже затворные ЖК-очки. ОСТОРОЖНО Меры предосторожности Перед просмотром обязательно ознакомьтесь с правилами техники безопасности, их можно найти в руко...
Страница 79 - Использование 3D излучателя; Подключите 3D излучатель к разъему 3D SYNC проектора.
68 3. Функции удобства Выбор входного разъема для источника 3D изображений [КОМПЬЮТЕР/HDMI1/HDMI2/ВИДЕО] Эта функция переключает режим 3D между ВКЛ. или ВЫКЛ. для каждого входа. ПРИМЕЧАНИЕ: Чтобы убедиться в том, что поддерживаемый сигнал 3D был принят, используйте один из нижеследующих способов:• У...
Страница 81 - Подключение Вашего микрофона
70 3. Функции удобства ⓮ Подключение Вашего микрофона Подключение доступного в продаже динамического или конденсаторного микрофона к разъему микрофонного входа позволяет Вам вывести звук микрофона из встроенного динамика. Звук от аудио входов КОМПЬЮТЕР, HDMI 1, HDMI 2 и ВИДЕО или звук входа USB-A/LA...
Страница 82 - Проецирование фотографий или документов, сохраненных на; Для Android
71 3. Функции удобства ⓯ Проецирование фотографий или документов, сохраненных на смартфоне через беспроводную локальную сеть (Wireless Image Utility) При использовании Wireless Image Utility возможно передавать фотографии и документы, сохраненные через разъёмы смартфона или планшета на проектор чере...
Страница 83 - D E; • Каждое нажатие кнопки
72 3. Функции удобства ⓰ Одновременное проецирование изображений, получаемых с нескольких устройств Проектор получает изображения, передаваемые с нескольких устройств (макс. 16 устройств), и проецирует их на экран, разделяя его (макс. 4 × 4) одновременно. • Если различные устройства, такие как компь...
Страница 84 - Использование функции «Просмотр»; Возможности режима Просмотр; Возможности режима Просмотр.
73 4. Использование функции «Просмотр» ❶ Возможности режима Просмотр Возможности режима Просмотр. • Просмотр позволяет просматривать изображения с запоминающих устройств USB, которые подключаются к USB-A порту (Тип А) проектора. Даже при отсутствии компьютера можно проводить презентации только с пом...
Страница 86 - Показ изображений с запоминающего устройства USB; ) имеет настройки по; Начало работы режима Просмотр; Вставьте запоминающее устройство USB в USB-A порт
75 4. Использование функции «Просмотр» ❷ Показ изображений с запоминающего устройства USB Этот раздел объясняет основные принципы работы режима Просмотр.В объяснении представлен порядок работы, когда панель инструментов просмотра ( → стр. 79 ) имеет настройки по умолчанию. - Начало работы Просмотр ....
Страница 88 - Если меню не отображается нажмите кнопку EXIT.; Выход из режима Просмотр; Нажмите кнопку MENU с пиктограммой Слайд или
77 4. Использование функции «Просмотр» Извлечение запоминающего устройства USB из проектора 1. Выберите экран запуска ПРОСМОТР. Если меню не отображается нажмите кнопку EXIT. 2. Извлеките запоминающее устройство USB из проектора. Проверьте, чтобы не мигал светодиод на запоми- нающем устройстве USB. ...
Страница 90 - Воспользуйтесь кнопкой; Панель инструментов миниатюр
79 4. Использование функции «Просмотр» Использование панели инструментов 1. Нажмите кнопку MENU. Отобразится панель инструментов. Экран ИСТОЧНИКА будет открыт как экран соединений просмотра. 2. Воспользуйтесь кнопкой ◀ или ▶ , чтобы выбрать элемент, и воспользуйтесь кнопкой ▲ или ▼ , чтобы вы- брать...
Страница 92 - Использование меню; Установки будут сохранены до следующих изменений.; Использование экранного меню
81 ❶ Использование меню ПРИМЕЧАНИЕ: Во время проецирования чересстрочного видеоизображения экранное меню может отображаться некорректно. 1. Для отображения меню нажмите кнопку MENU на пульте дистанционного управления или корпусе проек- тора. ПРИМЕЧАНИЕ: Такие команды, как ENTER, EXIT, ▼▲ , ◀▶ распол...
Страница 93 - Элементы меню; Окна меню и диалоговые окна обычно включают следующие элементы:
82 5. Использование экранного меню ❷ Элементы меню Окна меню и диалоговые окна обычно включают следующие элементы: Подсветка .......................................Указывает выбранный пункт меню или параметр. Сплошной треугольник ..................Указывает на возможность дальнейшего выбора. Подсвеч...
Страница 94 - Пункты меню
83 5. Использование экранного меню ❸ Пункты меню Некоторые пункты меню недоступны в зависимости от источника входящего сигнала. Пункт меню По умолчанию Опции ИСТОЧНИК КОМПЬЮТЕР * HDMI1 * HDMI2 * ВИДЕО * USB-A * LAN * USB-B * НАСТР. ИЗОБРАЖЕНИЕ ПРЕДВАРИТ УСТАНОВКА * 1–8 ПОДРОБНЫЕ УСТАНОВКИ ССЫЛКА * В...
Страница 99 - Каждый режим рекомендуется для следующих целей:; Выбор размера экрана для DICOM SIM [РАЗМЕР ЭКРАНА]; Эта опция позволяет настроить цветовую температуру.; Настройка яркости и контраста [ДИНАМИЧЕСКИЙ КОНТРАСТ]
88 5. Использование экранного меню Сохранение Ваших пользовательских установок [ССЫЛКА] Данная функция позволяет сохранять Ваши пользовательские установки в [ПРЕДВАРИТ УСТАНОВКА 1] - [ПРЕДВАРИТ УСТА-НОВКА 7].Сначала выберите основной режим предварительных настроек в меню [ССЫЛКА], а затем установите...
Страница 101 - Служит для ручной настройки параметров Часы и Фаза.
90 5. Использование экранного меню [НАСТР. ИЗОБР] Настройка времени и фазы [ЧАСЫ/ФАЗА] Служит для ручной настройки параметров Часы и Фаза. ЧАСЫ .............................. Используйте данный параметр для точной настройки компьютерного изображения или удаления каких-либо вертикальных полос, которы...
Страница 102 - ДАННЫЕ] и восстановите настройки по умолчанию.
91 5. Использование экранного меню Настройка горизонтального/вертикального положения [ГОРИЗОНТАЛЬНО/ВЕРТИКАЛЬНОЕ] Служит для настройки положения изображения по горизонтали и вертикали. ПРИМЕЧАНИЕ: Элементы [ГОРИЗОНТАЛЬНОЕ] и [ВЕРТИКАЛЬНОЕ] недоступны для ВИДЕО, HDMI1, HDMI2, USB-A, LAN и USB-B. - Во...
Страница 103 - следующая страница
92 5. Использование экранного меню Выбор значения параметра [СООТНОШЕНИЕ СТОРОН] Термин «аспектное соотношение» обозначает соотношение ширины и высоты проецируемого изображения.Проектор автоматически определяет входящий сигнал и отображает его в соответствующем аспектном отношении.• В этой таблице о...
Страница 104 - является стандартным аспектным отношением для видеоисточника.
93 5. Использование экранного меню Пример изображения, когда автоматически определено правильное аспектное отношение M403X/M363X/M323X/M283X/M333XS [Сигнал компьютера] Аспектное отношение входящего сигнала 4:3 5:4 16:9 15:9 16:10 Пример изображения, когда авто-матически определено правиль-ное аспект...
Страница 105 - ПРИМЕЧАНИЕ: Эта функция доступна, только когда выбран сигнал SDTV.
94 5. Использование экранного меню Настройка изображения по вертикали [ПОЛОЖЕНИЕ] (недоступно для модели M403W/M363W/M323W/M353WS/M303WS/M403H/M323H) (только если выбраны значения [16:9], [15:9] или [16:10] для параметра [АСПЕКТНОЕ ОТНОШЕНИЕ]) Когда для параметра [СООТНОШЕНИЕ СТОРОН] выбраны значени...
Страница 107 - ЭКО РЕЖИМ; АВТО ЗАТЕМНЕНИЕ; NORMAL OPTION
96 5. Использование экранного меню Использование функции коррекции цвета стены [ЦВЕТ СТЕНЫ] С помощью данной функции осуществляется быстрая коррекция цвета с целью адаптации изображения к экрану, чей цвет от-личен от белого. ПРИМЕЧАНИЕ: • Если выбрать пункт [БЕЛАЯ ДОСКА], можно уменьшить яркость лам...
Страница 108 - ПАРАМЕТР ЭКО; Настройка закрытого титра [ЗАКРЫТЫЙ ТИТР]; • Режим закрытого титра недоступен при таких условиях:; Использование таймера выключения [ВЫКЛ ТАЙМЕР]; Для экранных инструкций можно выбрать один из 29 языка.
97 5. Использование экранного меню ВКЛ. ................................ Яркость лампы будет увеличиваться в соответствии со временем использования лампы и будет сохраняться на значении яркости лампы, эквивалентном яркости при выборе параметра НОРМАЛЬНОЕ. После того как яркость лампы достигает макси...
Страница 109 - Для цвета меню возможны две опции: ЦВЕТ и МОНОХРОМНОЕ.
98 5. Использование экранного меню [МЕНЮ] Выбор значения параметра [ВЫБОР ЦВЕТА] Для цвета меню возможны две опции: ЦВЕТ и МОНОХРОМНОЕ. Переключение Вкл. / Выкл. Дисплея источника [ДИСПЛЕЙ ИСТОЧНИКА]. Этот параметр включает и выключает отображение имени входящего источника, например, COMPUTER, HDMI1...
Страница 110 - зависимо от этого выбора.
99 5. Использование экранного меню Выбор значения параметра [ВРЕМЯ ПОКАЗА] Эта опция позволяет указать, через какое время после последнего нажатия какой-либо клавиши проектор должен выключить меню. Возможны значения [РУЧНОЙ РЕЖИМ], [АВТО 5 СЕК], [АВТО 15 СЕК] и [АВТО 45 СЕК]. [АВТО 45 СЕК] является ...
Страница 111 - ФРОНТАЛЬНАЯ СО СТОЛА
100 5. Использование экранного меню [УСТАНОВКА] Выбор ориентации проектора с помощью параметра [ОРИЕНТАЦИЯ] Служит для переориентировки изображения в соответствии с типом проецирования. Возможные опции: фронтальная со стола, тыльная с потолка, тыльная со стола и фронтальная с потолка. ФРОНТАЛЬНАЯ СО...
Страница 112 - Присвоение или изменение контроля ID; Откроется окно КОНТРОЛЬ ID.
101 5. Использование экранного меню Выбор значения параметра [СКОРОСТЬ КОММУНИКАЦИИ] Эта функция позволяет установить скорость передачи данных для компьютерного порта управления (D-Sub 9P). Он поддерживает скорость от 4800 до 38400 бит/с. Значение по умолчанию – 38400 бит/с. Выберите скорость переда...
Страница 113 - Выбор режима вентилятора [РЕЖИМ ВЕНТИЛЯТОРА]; близительно 5500 футов/1700 метров над уровнем моря или выше.
102 5. Использование экранного меню Использование испытательного шаблона [ИСПЫТАТЕЛЬНЫЙ ШАБЛОН] Отображает тестовый образец для проверки искажения изображения во время настройки проектора. Нажмите кнопку ENTER, чтобы появился тестовый образец; нажмите кнопку EXIT, чтобы закрыть тестовый образец и ве...
Страница 114 - IN, снова выберите на проекторе источник ввода HDMI1 или HDMI2.; Выключение звукового сигнала при нажатии кнопок и ошибках [ГУДОК]
103 5. Использование экранного меню Выбор формата сигнала [ЦВЕТОВАЯ СИСТЕМА] Эта функция позволяет выбирать видеостандарты вручную.Обычно выбирайте [АВТО]. Выберите видеостандарт из выпадающего меню. Включение или отключения режима WXGA [РЕЖИМ WXGA] Выбор [ВКЛ.] задаст приоритет для сигналов WXGA (1...
Страница 116 - функцию в комбинации с функцией АВТО ВЫКЛ. ПИТАНИЯ.
105 5. Использование экранного меню Включение проектора с помощью сигнала компьютера [АВТО ВКЛ. ПИТ.(COMP.)] Если проектор находится в режиме ожидания, компьютерный сигнал с компьютера, подключенного к разъему входного сигнала COMPUTER IN, будет подаваться на проектор и одновременно проецировать ком...
Страница 118 - Выберите технологию 3D очков.
107 5. Использование экранного меню [3D] Выбор входного разъема для источника 3D изображений [КОМПЬЮТЕР/HDMI1/HDMI2/ВИДЕО] [3D] Эта функция переключает режим 3D между ВКЛ. или ВЫКЛ. для каждого входа. ВКЛ. ................................ Включает режим 3D для выбранного входа. ПРИМЕЧАНИЕ: Чтобы убе...
Страница 119 - Измените настройку, если Вы плохо видите 3D изображения.
108 5. Использование экранного меню [ИНВЕРСИЯ L/R] Измените настройку, если Вы плохо видите 3D изображения. НЕИНВЕРТНЫЙ ............... Нормальная настройка.ИНВЕРСИЯ ...................... Изменяет порядок отображения изображений для левого глаза и правого глаза.
Страница 120 - присвоены компьютеру с Вашего сервера DHCP.
109 5. Использование экранного меню Настройка проектора на подключение к проводной локальной сети [ПРОВОД. ЛОКАЛ. СЕТЬ] Важно • Об этих настройках проконсультируйтесь со своим сетевым администратором.• При использовании подключения по проводной локальной сети, подсоедините кабель локальной сети (каб...
Страница 122 - Чтобы подключиться к серверу DHCP:; Воспользуйтесь функцией сервера HTTP, чтобы открыть веб-браузер (
111 5. Использование экранного меню Подсказка для установки соединения по локальной сети Чтобы настроить проектор на подсоединение к проводной локальной сети: Воспользуйтесь функцией сервера HTTP, чтобы открыть веб-браузер ( → стр. 45 ) и выберите [NETWORK SETTINGS] → [SETTINGS] → [WIRELESS LAN] → [...
Страница 127 - ЗА ИСКЛЮЧЕНИЕМ ТАКИХ
116 5. Использование экранного меню ❽ Описания и функции меню [ВОССТ.] Возврат заводских значений параметров [ВОССТ.] Функция ВОССТАНОВЛЕНИЕ позволяет вернуть настройкам и установкам их стандартные заводские значения для всех источников, кроме следующих: [ТЕКУЩИЙ СИГНАЛ]Возвращает настройкам текущег...
Страница 128 - Установка и подключение; Настроить экран и проектор.; Настройка экрана и проектора; Выбор месторасположения; • Подробнее о расстоянии до проекции см. на стр.
117 3 2 1 6. Установка и подключение В этом разделе описаны процедуры настройки проектора и подключения видео- и аудио источников.Этот проектор прост в настройке и использовании. Однако перед началом работы следует выполнить следующие действия: ① Настроить экран и проектор. ② Подключить к проектору ...
Страница 129 - • Подробнее о расстоянии до проекции см. стр.
118 6. Установка и подключение [M403W/M363W/M323W] Чем дальше от экрана или стены будет установлен проектор, тем большим будет изображение. Изображение мини- мального размера (приблизительно 30 дюйм/0,76 м по диагонали) получится при размещении проектора на расстоянии около 41 дюймов/1,0 м от стены ...
Страница 131 - B = вертикальное расстояние между центром
120 6. Установка и подключение Расстояние до проекции и размер экрана На приведенном ниже рисунке показано правильное размещение проектора относительно экрана. По таблице можно определить, на каком расстоянии следует установить проектор. Таблица расстояний B = вертикальное расстояние между центром о...
Страница 132 - к травме и серьезно повредить сам проектор.; Отражение изображения; на корпусе проектора или пульте дистанционного управления. (
121 6. Установка и подключение [M403H/M323H] Размер экрана B C D α Диагональ Ширина Высота широкий теле широкий теле дюйм мм дюйм мм дюйм мм дюйм мм дюйм мм - дюйм мм дюйм мм градус - градус 30 762 26 664 15 374 9,7 246,4 29 744 52 1324 2,3 59,6 17,9 10,2 40 1016 35 886 20 498 12,9 328,6 40 1017 71 ...
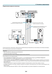
Страница 133 - Подключение других устройств; граммного обеспечения для управления питанием.; Включение внешнего экрана компьютера
122 6. Установка и подключение ❷ Подключение других устройств ПРИМЕЧАНИЕ: Подключать проектор к ноутбуку следует, когда проектор пребывает в режиме ожидания, а питание ноутбука отключено.В большинстве случаев выходной сигнал ноутбука не включается в случае подключения ноутбука к проектору со включен...
Страница 137 - Входной разъем
126 6. Установка и подключение Подключение компонентного входа • После включения проектора выберите имя источника для соответствующего входного разъема. Входной разъем Кнопка ИСТ. на корпусе проектора Кнопка на пульте дистанционно- го управления. COMPUTER IN COMPUTER (COMP1) ПРИМЕЧАНИЕ: Информацию о...
Страница 139 - Пример подключения к проводной локальной сети
128 6. Установка и подключение Подключение к проводной локальной сети Стандартная модель проектора оснащена портом проводной локальной сети (RJ-45), через который можно подклю-чаться к локальной сети с помощью кабеля проводной локальной сети. Чтобы использовать соединение по локальной сети, необходи...
Страница 141 - Заранее приготовьте крестообразную отвертку.
130 6. Установка и подключение Заранее приготовьте крестообразную отвертку. 1. Нажмите кнопку POWER, чтобы выключить проектор и уста- новить его в режим ожидания, затем отсоедините силовой кабель. 2. Снимите крышку порта USB (локальной сети). Ослабьте винты, удерживающие крышку. • Винты не вынимаютс...
Страница 142 - Беспроводная LAN ПРОФИЛЬ 1 или ПРОФИЛЬ 2)
131 6. Установка и подключение Пример подключения к беспроводной локальной сети(Тип сети → Беспроводная LAN ПРОФИЛЬ 1 или ПРОФИЛЬ 2) ПК со встроенным адаптером беспроводной локальной сети ПК со встроенным модулем беспроводной локальной сети Проводная локальная сеть Точка доступа к беспро-водной лока...
Страница 143 - Техническое обслуживание; Чистка объектива; ПРЕДУПРЕЖДЕНИЕ; привести к возгоранию.; Чистка корпуса; Если он сильно загрязнен, используйте слабое чистящее средство.
132 7. Техническое обслуживание В данном разделе описаны простые процедуры по техническому обслуживанию, которых следует придерживаться при чистке объектива, корпуса, а также для замены лампы. ❶ Чистка объектива ПРЕДУПРЕЖДЕНИЕ • Не распыляйте воспламеняющиеся газы, чтобы удалить пыль и грязь, накапл...
Страница 144 - Для заказа запасной лампы укажите тип Вашей лампы.; Порядок замены лампы; Замените лампу
133 7. Техническое обслуживание ❸ Замена лампы Когда срок службы лампы достигает конца, индикатор LAMP на корпусе начинает мигать красным цветом и появляется сообщение «ИСТЕКАЕТ СРОК ЭКСПЛУАТАЦИИ ЛАМПЫ. ПОЖАЛУЙСТА, ЗАМЕНИТЕ ЛАМПУ.» (*). Хотя лампа еще может продолжать работать, для обеспечения оптим...
Страница 145 - пытайтесь обойти эту блокировку.
134 7. Техническое обслуживание Для замены лампы: 1. Снимите крышку лампы. (1) Открутите винт крышки лампы. • Винт крышки лампы не вынимается.(2) Надавите и снимите крышку лампы. 2. Снимите корпус лампы. (1) Ослабляйте три винта, закрепляющие корпус лампы, до тех пор, пока отвертка Phillips не начне...
Страница 146 - [СБРОС ВРЕМЕНИ НАРАБОТКИ ЛАМПЫ] и сбросьте время наработки лампы.
135 7. Техническое обслуживание 3. Установите новый корпус лампы. (1) Установите новый корпус лампы так, чтобы он вошел в разъем. (2) Нажмите на верхнюю центральную часть корпуса лампы, чтобы закрепить его.(3) Закрепите его на месте с помощью трех винтов. • Убедитесь, что эти винты хорошо затянуты. ...
Страница 147 - Устранение неисправностей; Показания индикаторов; Индикатор Power; * Для получения дополнительной информации о «спящем режиме» см. стр.; Защита от превышения допустимой температуры
136 8. Приложение ❶ Устранение неисправностей Этот раздел поможет решить проблемы, которые могут возникать при подготовке к эксплуатации и в процессе эксплуатации проектора. Показания индикаторов Индикатор Power Состояние индикатора Состояние проектора Примечание Откл. Гл а в н ы й п е р е к л ю ч а...
Страница 148 - Типичные неисправности и способы их устранения
137 8. Приложение Типичные неисправности и способы их устранения ( → раздел «Power/Status/Индикатор Lamp» на стр. 136 ) Неисправность Проверьте следующее: Проектор не включается или не выключается • Проверьте, подключен ли силовой кабель и нажата ли кнопка включения питания на корпусе проектора или ...
Страница 149 - Если изображение отсутствует или отображается неправильно.; или перейдите к следующему шагу)
138 8. Приложение Если изображение отсутствует или отображается неправильно. • Питание подается на проектор и ПК. Убедитесь, что проектор и ноутбук были подключены друг к другу, когда проектор находился режиме ожидания, а ноутбук был включен. В большинстве случаев сигнал, исходящий от ноутбука, не в...
Страница 150 - Технические характеристики; Оптический
139 8. Приложение ❷ Технические характеристики В данном разделе содержится техническая информация об эксплуатационных характеристиках проектора. [M403W/M363W/M323W/M403X/M363X/M323X/M283X] Оптический Номер модели NP-M403W NP-M363W NP-M323W NP-M403X NP-M363X NP-M323X NP-M283X Система проециро-вания О...
Страница 151 - Механические характеристики
140 8. Приложение Номер модели NP-M403W NP-M363W NP-M323W NP-M403X NP-M363X NP-M323X NP-M283X Порт беспровод-ной локальной сети (дополни-тельно) IEEE 802.11 b/g/n (необходимо дополнительное устройство беспроводной локальной связи USB) Порт USB 1 × тип A, 1 × тип B Микрофонный вход 1 × Монауральный м...
Страница 152 - Электрические параметры
141 8. Приложение [M353WS/M303WS/M333XS] Оптический Номер модели NP-M353WS NP-M303WS NP-M333XS Система проецирования Один чип DLP® (0,65", соотношение 16:10) Один чип DLP® (0,55", соотношение 4:3) Разрешение* 1 1280 × 800 пикселей (WXGA) 1024 × 768 пикселей (XGA) Объектив Цифровой зум и ручн...
Страница 155 - Спецификация на продукцию может изменяться без уведомления.
144 8. Приложение Номер модели NP-M403H NP-M323H Разрешающая способность по горизонтали 540 строк телевизионного изображения: NTSC/NTSC4.43/PAL/PAL-M/PAL-N/PAL60300 строк телевизионного изображения: SECAM Диапазон сканирования По горизонтали (строчные импульсы): от 15 КГц до 100 КГц (RGB: 24 КГц или...
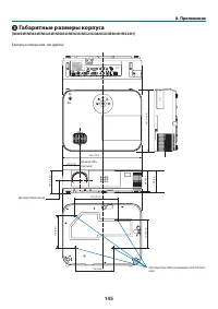
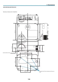
Страница 156 - Габаритные размеры корпуса
145 8. Приложение 368 (14,5) 291 (11,46) 107,5 (4,23) 130 (5,12) 150 (5,91) 200 (7,87) 175 (6,89) 98 (3,9) 108 (4,3) 80 (3,15) ❸ Габаритные размеры корпуса [M403W/M363W/M323W/M403X/M363X/M323X/M283X/M403H/M323H] Центр объ-ектива Центр объектива Отверстия для установки под потол-ком Единица измерения...
Страница 158 - Присоединение дополнительной крышки кабеля (NP05CV); силового кабеля, что может стать причиной пожара.; Присоединение крышки кабеля; • Будьте внимательны, не зажмите кабели между крышкой и проектором.; Снятие крышки кабеля
147 8. Приложение Присоединение дополнительной крышки кабеля (NP05CV) Дополнительная крышка кабеля (NP05CV) доступна для закрытия кабелей. ОСТОРОЖНО: • Убедитесь, что винты хорошо затянуты, после установки крышки кабеля. В противном случае крышка кабеля может отсоединиться и упасть, что приведет к т...
Страница 159 - Предназначение штырьков входного разъема D-Sub COMPUTER; 5-штырьковый разъем D-Sub соединительного устройства; Номер кон
148 8. Приложение ❹ Предназначение штырьков входного разъема D-Sub COMPUTER 15-штырьковый разъем D-Sub соединительного устройства Уровень сигналаВидеосигнал: 0,7 Vp-p (аналоговый)Сигнал синхронизации: Уровень TTL 5 1 4 2 3 10 11 12 13 14 15 6 9 7 8 Номер кон - такта Сигнал RGB (аналоговый) Сигнал YC...
Страница 160 - Перечень совместимых входных сигналов; Аналоговый RGB
149 8. Приложение ❺ Перечень совместимых входных сигналов *1 Собственное разрешение на модели XGA (M403X/M363X/M323X/ M283X/M333XS) *2 Собственное разрешение на модели WXGA (M403W/M363W/M323W/ M353WS/M303WS) *3 Проектор может некорректно отображать эти символы, когда выбран режим [АВТО] для [СООТНОШ...
Страница 161 - Коды управления и кабельные соединения ПК; Коды управления ПК; Протокол связи
150 8. Приложение ❻ Коды управления и кабельные соединения ПК Коды управления ПК Функция Кодирование данных ПИТАНИЕ ВКЛЮЧЕНО 02Н 00Н 00Н 00Н 00Н 02Н ПИТАНИЕ ОТКЛЮЧЕНО 02H 01H 00H 00H 00H 03H ВЫБОР ВХОДНОГО РАЗЪЕМА COMPUTER 02H 03H 00H 00H 02H 01H 01H 09H ВЫБОР ВХОДНОГО РАЗЪЕМА HDMI1 02H 03H 00H 00H ...
Страница 162 - Контрольный перечень возможных неисправностей; постоянно; Питание
151 8. Приложение Не работают кнопки на корпусе проектора (только в моделях, в которых предусмо-трена функция [БЛОК. ПАНЕЛИ УПРАВЛ.]) Не включается или отключена в меню функция [БЛОК. ПАНЕЛИ УПРАВЛ.].По-прежнему нет никаких изменений, несмотря на то, что кнопка EXIT была нажата и удерживалась в тече...
Страница 164 - Сертификат качества ТСО; html
153 8. Приложение ❽ Сертификат качества ТСО Некоторые модели этой серии имеют сертификат качества ТСО. Все сертифицированные модели имеют марку ТСО на корпусе (в нижней части продукта). Для просмотра списка наших сертифицированных проекторов и их сертификатов качества ТСО, (только на английском язык...
Страница 165 - ЗАРЕГИСТРИРУЙТЕ ВАШ ПРОЕКТОР! (для жителей Соединенных
154 8. Приложение ❾ ЗАРЕГИСТРИРУЙТЕ ВАШ ПРОЕКТОР! (для жителей Соединенных Штатов, Канады и Мексики) Пожалуйста, найдите время, чтобы зарегистрировать Ваш новый проектор. Это приведет к активации ограниченной гарантии на детали, работу и сервисную программу InstaCare.Посетите наш веб-сайт по адресу ...