Страница 2 - Декларация соответствия ЕС
Декларация соответствия ЕС Оборудование соответствует типовой модели, описанной в декларации соответствия ЕС. Оно произведено и выпущено в соответствии с требованиями европейских директив.Оригинал декларации соответствия доступен у производителя.
Страница 3 - Содержание
Содержание 1 Введение ....................................................................................................6 1.1 Используемые символы ...................................6 1.2 Сокращения .........................................................6 1.3 Общие сведения ........................
Страница 8 - Введение; Используемые символы; Ответственность производителя
1 Введение 1.1 Используемые символы В этой инструкции обозначены различные уровни опасности для привлечения внимания на особые указания. Также мы желаем обеспечить безопасность пользователя, избежать любых проблем и гарантировать правильную работу оборудования. ОПАСНОСТЬ Обозначает риск опасной ситу...
Страница 10 - Сертификаты; Дополнительные указания
Для предотвращения опасных ситуаций в случае повреждения электропроводки она должна заменяться производителем, дилером производителя или другим квалифицированным лицом. 1.4 Сертификаты 1.4.1. Сертификаты Идентификационный № ЕС PIN 0063CM3019 Класс NOx 5 (Стандарты EN) Тип подключения Дымовая труба :...
Страница 11 - Правила техники безопасности; Рекомендации
2 Правила техники безопасности и рекомендации 2.1 Правила техники безопасности ОПАСНОСТЬ В случае запаха газа :1. Не использовать открытое пламя, не курить, не воздействовать на контакты или электрические переключатели (дверной звонок, свет, двигатель, лифт и т.д.). 2. Отключить подачу газа. 3. Откр...
Страница 13 - Общее описание; Основные компоненты
3 Техническое описание 3.1 Общее описание Газовые настенные конденсационные котлы 4 Высокоэффективное отопление. 4 Низкие выбросы загрязняющих веществ. 4 Отвод продуктов сгорания : подсоединение коаксиального дымохода, дымовой трубы, переходника на 2 потока или 3СЕ (герметичный коллективный трубопро...
Страница 14 - Регулировка температуры воды
3.3 Принципиальная схема PMC-M 24 1 Теплообменник (Центральное отопление) 2 Предохранительный клапан 3 Подающая линия отопления (Первичный контур) 4 Подающая линия отопления (Вторичный контур) 5 Обратная труба системы отопления (Вторичный контур) 6 Обратная труба системы отопления (Первичный контур)...
Страница 15 - Циркуляционный насос
3.4.2. Защита от отсутствия воды В котле есть защита от отсутствия воды, которая основана на измерении температур. В случае недостаточного расхода воды через котёл, он будет работать как можно более длительно, уменьшая свою мощность. Если расход очень мал - ΔT ≥ 50°C или температура подающей линии п...
Страница 16 - Технические характеристики
PMC-M 30/35 MI - 34/39 MI H Высота напора контура отопления Q Расход воды ( ΔT=20K) 3.6 Технические характеристики Тип котла PMC- M 24 24/28 MI 30/35 MI 34/39 MI Общие сведения Идентификационный номер ЕС PIN 0063CM3019 Регулировка расхода Изменяемое значение Модулирующий, Вкл/Выкл Диапазон мощности ...
Страница 18 - Установка; Нормы и правила для установки; Выбор места для установки; Идентификационная табличка
4 Установка 4.1 Нормы и правила для установки ПРЕДУПРЕЖДЕНИЕ Оборудование должно быть установлено квалифицированным специалистом с соблюдением требований национальных и местных действующих правил и норм. 4.2 Выбор места для установки 4.2.1. Идентификационная табличка Идентификационная табличка, накл...
Страница 19 - Вентиляция
ПРЕДУПРЕЖДЕНИЕ 4 Закрепить оборудование на крепкой перегородке, способной выдержать вес оборудования с водой и обвязкой. 4 Не устанавливать оборудование над источником тепла или плитой. 4 На котёл не должны попадать прямые или рассеянные солнечные лучи. 4 Запрещено складировать, даже временно, воспл...
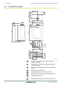
Страница 20 - Основные размеры
4.3 Основные размеры i Подключение трубопровода отвода продуктов сгорания; Ø 60 мм h Подключение трубопровода забора воздуха для горения; Ø 100 мм ê Отводящая труба предохранительного клапана; Ø 15 мм j Отвод конденсата; Ø 25 мм { Подающая труба контура отопления; G¾" y Выход горячей санитарно-т...
Страница 21 - Установка котла; Гидравлическое подключение
z Обратная труба контура отопления; G¾" 4.4 Установка котла Следующие детали входят в заводской комплект поставки котла : 4 Монтажная планка и крепежные принадлежности для монтажной планки (Не использовать в случае установки монтажной рамы) 4 Соединительный набор, состоящий из муфт и стяжных кол...
Страница 22 - Промывка установки; Расход воды
4.5.1. Промывка установки Установка должна быть выполнена в соответствии с действующими нормативными правилами и нормами, а также и рекомендациями, приведенными в данной инструкции. Монтаж котла на новые установки (установки со срокомслужбы менее 6 месяцев) 4 Промыть установку универсальным моющим с...
Страница 23 - Подключение расширительного бака
4. На подсоединении подающей линии отопления установить поставляемый термоманометр. Расстояние от котла до термоманометра не должно превышать 0,5 м. Предохранительный клапан установлен на заводе на подающей линии отопления. ВНИМАНИЕ 4 Трубопровод отопления должен быть выполнен согласно соответствующ...
Страница 25 - Автоматический воздухоотводчик; Подключение газа
4 Не перекрывать трубопровод отвода конденсата. Выполнить подсоединение к отводу при помощи раструба. 4 Трубопровод отвода конденсата выполнить с уклоном 30 мм / метр, его максимальная горизонтальная длина - 5 м. 4 Запрещено сливать конденсат в водостоки крыш. 4 Подсоединить трубопровод отвода конде...
Страница 26 - Подсоединения дымохода; Классификация
ВНИМАНИЕ 4 Подключить газопровод в соответствии с действующими нормами. 4 Выполнять возможные сварные работы на значительном расстоянии от котла или же до установки котла. 4 Убедиться, что нет пыли в газопроводе. Продуть газопровод или вытряхнуть пыль из него до монтажа. 4 Рекомендуется установить г...
Страница 29 - Электрические подключения; Панель управления
ситуации и/или телесные повреждения. После сборки проверить герметичность всех элементов, отводящих продукты сгорания и забирающих воздух. 4 Из-за конденсации запрещено подсоединение отвода продуктов сгорания напрямую к строительным шахтам. 4 Всегда тщательно прочищать футляры при использовании труб...
Страница 31 - Подключение PC/Laptop
4.8.3. Подключение PC/Laptop Печатная плата для газового / воздушного блока имеет RS232 подключение к ПК / ноутбуку через разъем * 2 (Т.е. этого интерфейса нет в соединительном блоке). Специальное программное обеспечение Recom позволяет загружать, изменять и считывать различные параметры котла. 4.8....
Страница 32 - Доступ к клеммной колодке; Возможности подключения
4.8.5. Доступ к клеммной колодке Соединительный блок входит в комплект заводской поставки котла. Соединительный блок необходимо подключить к электронной плате управления при помощи поставляемого кабеля. Для этого выполнить следующие операции : Под котлом проходит кабель с разъемом для подключения бл...
Страница 33 - Подключение модулирующего регулятора; Подключение датчика наружной температуры
n Подключение модулирующего регулятора Котёл оснащен стандартной версией подключения OpenTherm . Это обеспечивает прямое подключение (без переходников) модулирующих систем регулирования OpenTherm . Тем не менее, котёл также совместим с OpenTherm Smart Power . 4 Установить регулятор в пилотном помеще...
Страница 34 - Подключение защиты от замораживания
ВНИМАНИЕ Проверить, что датчик наружной температуры совместим с котлом. Совместимый датчик наружной температуры предлагается в качестве дополнительного оборудования. Система регулирования OpenTherm также может использовать этот датчик наружной температуры. В этом случае нужная отопительная кривая до...
Страница 36 - Вход блокировки; Подключение панели управления
Нагрев воды для отопления или ГВС уже включен по умолчанию. Если сигнал 10-230 V подключен к разъёмам, то система регулирования учитывает состояние контакта для управления режимами отопления и ГВС. Если электрическое питание котла отключено, то состояние входа CH и DHW становится равным заводской на...
Страница 37 - Электрическая схема; Заполнение установки; Водоподготовка
4.9 Электрическая схема R000291-A P 230V, 50Hz L N MAINS 1 3 2 BR BL GN/YW PC RS232 1 2 1 2 1 2 2 3 1 PSU TA TR FS HL 6 7 8 9 10 11 12 13 1 2 3 5 SENSORS E IT IT HMI MAINS SENSORS PUMP PWM PUMP 3WV RS232 PUMP PUMP A 1 2 3 BK BL GN/YW 3WV 3WV 1 2 3 BK BL BR 1 3 2 PUMP 1 2 3 4 BK BK PWM PUMP RS232 Под...
Страница 38 - Заполнение сифона
Вода отопительной установки должна соответствовать следующим требованиям : Общая мощность установки (kW) ≤ 70 70 - 200 200 - 550 > 550 Степень кислотности (неподготовленная вода) pH 7 - 9 7 - 9 7 - 9 7 - 9 Степень кислотности (подготовленная вода) pH 7 - 8,5 7 - 8,5 7 - 8,5 7 - 8,5 Проводимость п...
Страница 39 - Заполнение установки
4.10.3. Заполнение установки ВНИМАНИЕ 4 Перед заполнением открыть краны на всех радиаторах отопительной установки. 4 Убедиться, что котел не находится под напряжением. 1. Заполнить установку чистой водопроводной водой (рекомендуемое давление - от 1,5 до 2 бар). 2. Проверить герметичность всех соедин...
Страница 41 - Соединительный блок
5 Ввод в эксплуатацию 5.1 Соединительный блок 5.1.1. Панель управления 1 Ручка регулировки температуры горячей воды 2 Ручка регулировки температуры отопления 3 Клавиша трубочист B и Индикатор состояния 4 Клавиша RESET и индикатор включения и выключения Панель управления соединительного блока имеет 2...
Страница 42 - Проверки перед вводом в эксплуатацию; Гидравлический контур
5.2 Проверки перед вводом в эксплуатацию 5.2.1. Подготовить котел к вводу вэксплуатацию ПРЕДУПРЕЖДЕНИЕ Если подаваемый газ не соответствует требованиям сертифицированных газов для котла, то не выполнять ввод в эксплуатацию. Процедура подготовки ко вводу в эксплуатацию котла : 4 Проверить, что подава...
Страница 43 - Ввод котла в эксплуатацию
5.3 Ввод котла в эксплуатацию ПРЕДУПРЕЖДЕНИЕ Только квалифицированный специалист может выполнить первый ввод в эксплуатацию. ВНИМАНИЕ Если котёл будет нагреваться первый раз, то кратковременно может ощущаться запах. 1. Открыть главный газовый кран.2. Открыть газовый кран котла.3. Включить котел.4. Н...
Страница 44 - Газовые регулировки; Газовый тракт; Перевод на другой тип газа
5.4 Газовые регулировки 5.4.1. Газовый тракт ПРЕДУПРЕЖДЕНИЕ Убедиться, что котел не находится под напряжением. 1. Снять переднюю крышку. ¼ См. раздел : "Открыть котёл", Страница 57 2. Проверить, что котел правильно настроено для используемого типа газа (См. идентификационную табличку сверху ...
Страница 45 - Для настройки на пропан
n Для настройки на пропан 4 Настроить скорость вентилятора как указано в таблице параметров (если необходимо). Настройка может быть изменена с помощью параметров p17 , p18 , p19 и p20 . ¼ См. главу : "Описание параметров", Страница 50 4 При помощи регулировочного винта A на газовом блоке пре...
Страница 46 - Проверка сгорания; Вывести котел в режим большой скорости
5.4.3. Проверка сгорания 1. Отвернуть заглушку отбора проб дымовых газов.2. Вставить зонд газоанализатора в измерительное отверстие. ПРЕДУПРЕЖДЕНИЕ Необходимо тщательно закрыть отверстие вокруг датчика во время измерения. ВНИМАНИЕ Газоанализатор должен иметь точность не менее ±0,25% O 2 . n Вывести ...
Страница 48 - Регулировка соотношения воздух/газ
5.4.4. Регулировка соотношения воздух/газ 1. Отвернуть заглушку отбора проб дымовых газов.2. Вставить зонд газоанализатора в измерительное отверстие. ПРЕДУПРЕЖДЕНИЕ Необходимо тщательно закрыть отверстие вокруг датчика во время измерения. ВНИМАНИЕ Газоанализатор должен иметь точность не менее ±0,25%...
Страница 50 - Вывести котел в режим минимальной мощности; Заключительные работы
n Вывести котел в режим минимальной мощности 1. В течение 3 с удерживать нажатой клавишу B . Индикатор состояния клавиши B горит оранжевым и мигает зелёным; Задан режим работы с минимальной мощностью. Газовый блок котла может быть 2 разных моделей. См. схему для определения расположения регулировочн...
Страница 51 - Отображение измеряемых параметров; Состояние и подрежим
5.6 Отображение измеряемых параметров 5.6.1. Состояние и подрежим Устройство для технического обслуживания позволяет отобразить информацию о состоянии котла. Меню информации Q отображает следующие номера состояний и подрежимов : Состояние 5t Подрежим 5v 0 Перерыв в работе 0 Перерыв в работе 1 Запуск...
Страница 52 - Изменение настроек; Описание параметров
Состояние 5t Подрежим 5v 17 Удаление воздуха 0 Перерыв в работе 2 Управление трехходовым клапаном 3 Запуск насоса 61 Насос выключен 62 Управление трехходовым клапаном 5.7 Изменение настроек Панель управления настроена для типовых отопительных установок. С этими настройками практически все отопительн...
Страница 57 - Выключение котла; Выключение установки
6 Выключение котла 6.1 Выключение установки Если система центрального отопления не используется в течение длительного периода, то рекомендуется выключить электропитание котла. 4 Отключить электропитание котла. 4 Отключить подачу газа. 4 Обеспечить защиту от замораживания. 6.2 Защита от замораживания...
Страница 59 - Общие правила; Стандартные операции по проверке и техническому обслуживанию; Открыть котёл
7 Проверка и техническое обслуживание 7.1 Общие правила ПРЕДУПРЕЖДЕНИЕ 4 Операции по техническому обслуживанию котла должны выполняться квалифицированным специалистом. 4 Обязателен ежегодный осмотр. 4 Должны использоваться только заводские запасные части. 4 Выполнять чистку по крайне мере, 1 раз в г...
Страница 60 - Проверка гидравлического давления; Проверка расширительного бака
2. Снять переднюю крышку. 7.2.2. Проверка гидравлического давления Гидравлическое давление должно быть, как минимум, 0,8 бар. В случае необходимости подпитать водой систему отопления (рекомендуется гидравлическое давление между 1,5 и 2 бар). ВНИМАНИЕ 4 Перед заполнением открыть краны на всех радиато...
Страница 62 - Проверка сифона
7.2.8. Проверка автоматическоговоздухоотводчика 1. Проверить работу автоматического воздухоотводчика (Он находится сверху в правой части котла). 2. Можно закрыть воздухоотводчик при помощи заглушки, которая находится рядом с ним. 3. В случае течи - заменить воздухоотводчик. 7.2.9. Проверка сифона ВН...
Страница 64 - Особые операции по техническому обслуживанию; Замена электрода ионизации/розжига
7.3 Особые операции по техническому обслуживанию ПРЕДУПРЕЖДЕНИЕ Убедиться, что котел не находится под напряжением. ВНИМАНИЕ 4 Во время операций по проверке и техническому обслуживанию обязательно всегда заменять все уплотнения на снимаемых деталях. 4 Использовать запасные части, которые предназначен...
Страница 65 - Замена трехходового клапана
7.3.2. Замена трехходового клапана В случае необходимости замены трехходового клапана выполнить следующие операции :1. Закрыть основной кран подачи воды.2. Слить котел.3. Открыть защитный кожух вентилятора, нажав на защёлку в верхней части. 4. Отсоединить кабель трёхходового клапана от электронной п...
Страница 66 - Замена расширительного бака
Если необходимо удаление кальциевых отложений с пластинчатого теплообменника, то выполнить следующие операции :1. Убедиться, что котел не находится под напряжением.2. Закрыть газовый кран котла.3. Закрыть основной кран подачи воды. Слить котел.4. Отвернуть винт слева от теплообменника.5. Снять пласт...
Страница 67 - Повторная сборка котла
n Снятие передней части котла 1. Отсоединить отвод продуктов сгорания и трубопровод забора воздуха котла. 2. Снять соединительный блок.3. Снять все подсоединения подающей и обратной линий в нижней части котла. 4. Снять трубу подачи газа GAS / GAZ котла. 5. Снять сифон и шланг отвода конденсата. Чтоб...
Страница 69 - В случае неисправности; Коды неисправностей; Блокировка и выключение; Блокировка
8 В случае неисправности 8.1 Коды неисправностей 1 Ручка регулировки температуры горячей воды 2 Ручка регулировки температуры отопления 3 Клавиша трубочист B и Индикатор состояния 4 Клавиша RESET и индикатор включения и выключения Индикатор состояния клавиши B может гореть разными цветами и мигать с...
Страница 78 - Запасные части; Общие сведения
9 Запасные части 9.1 Общие сведения Если во время проверки или технического обслуживания обнаруживается, что необходимо заменить какую-либо часть оборудования, то использовать только оригинальные запасные части или рекомендуемые запасные части и материалы. Для заказа запасной части указать номер арт...
Страница 79 - Краткая инструкция по эксплуатации
10 Приложение 10.1 Краткая инструкция по эксплуатации R000392-A Группа Сигнал Обозначение Котёл работает (Прерывистый зелёный сигнал) Отопление ГВС Сообщение о техническомобслуживании (1) (Прерывистый оранжевый сигнал) Код A Код B Код C Блокировка (Мигающий зеленый сигнал) Перегрев Вход блокировки О...