Страница 2 - ПРИМЕЧАНИЕ; Содержание; Свидетельство о приемке
3 Правила безопасности ВНИМАНИЕ! • Запрещается эксплуатация тепловой завесы в помещениях: со взрывоопасной средой; с биологически активной средой; со средой вызывающей коррозию материалов. • Прибор не предназначен для использования лицами (включая детей) с пониженными фи-зическими, психическими или ...
Страница 3 - Монтаж завесы; Варианты монтажа; Технические характеристики
4 5 Устройство и принципы работы прибора 1. Корпус завесы2. Осевой вентилятор (IP54)3. Воздуховыпускное сопло4. Патрубки DIN ¾”5. Пульт управления (опция)6. Транспортировочные кронштейны Теплообменник выполнен из медных трубок, для увеличения эффективности обогрева на трубках теплообменника располож...
Страница 4 - Горизонтальный монтаж на транспортировочные кронштейны; Вертикальная установка; Модель завесы
6 7 Монтаж завесы Подключение теплоносителя Горизонтальный монтаж на транспортировочные кронштейны Горизонтальный монтаж на шпильки М6 и угловые кронштейны Модель завесы Размеры, мм A1 A2 A3 B2 BHC-U15W40-PS 122 590 590 256 BHC-U20W55-PS 121 601 580 256 BHC-U15A-PS 122 590 590 256 BHC-U20A-PS 121 60...
Страница 5 - Подключение к электрической сети; Подключение теплоносителя; Далее приведены электрические схемы завес:
8 9 Подключение теплоносителя Подключение теплоносителя к тепловой завесе производится через патрубки DIN 3/4”. • Подведение теплоносителя осуществляется только через запорный вентиль.• Для расширения функциональных возможно-стей прибора к завесе может быть подключен смесительный узел или трехходово...
Страница 7 - Управление прибором; Управ ление завесами пультом BRC-W
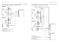
12 13 Подключение теплоносителя Управление прибором Схема электрическая принципиальная при групповом соединении BHC-U15A-PS,BHC-U20A-PS, BHC-U15W40-PS, BHC-U20W55-PS с подключением термостата BMT-2 (без возможности регулировки производительности). SK1 – терморег улятор;HL1 – индикатор;ХТ1 – ХТn - ко...
Страница 8 - Поиск и устранение неисправностей; Примечание; Уход и обслуживание
14 15 Управление прибором Перед включением завесы переключатели пультов должны находится в положении 0. 1. Поворотный потенциометр для задания темпе-ратуры воздуха в помещении;2. Четырехпозиционный переключатель скоро-сти вращения вентилятора;3. Светодиодный индикатор работы вентилятора(зеленого цве...
Страница 9 - Сделано в России
16 17 Изготовитель: Общество с ограниченной ответственностью «Ижевский завод тепловой техники»Ро сси я, 426 052, Уд му ртска я Ре спу блика,город Ижевск, ул. Лесозаводская, дом 23/110Тел: +73412905410E-mail: office@iztt.ru Сделано в России www.ballu.ru Транспортирование и хранение Гарантия Предприят...
Страница 11 - ГАРАНТИЙНЫЙ ТАЛОН; ТИП
ГАРАНТИЙНЫЙ ТАЛОН Настоящий док умент не ограничивает определенные законом права потребителей,но дополняет и у точняет оговоренные законом обязательства, предполагающие соглашение сторон либо договор ТИП Срок службы Сплит-системы, мобильные кондиционеры, осушители, электрические обогреватели(конвект...
Страница 12 - Настоящая гарантия не распространяется на:; Особые ус ловия эксплуатации кондиционеров
Настоящая гарантия распространяется на произ-водственный или конструкционный дефек т изделия Выполнение уполномоченным сервисным центром ре- монтных работ и замена дефектных деталей изделия про-изводятся в сервисном центре или у Покупателя (по усмо-трению сервисного центра). Гарантийный ремонт издел...
Страница 13 - Памятка по у ходу за кондиционером:; сохраняется у клиента; на гарантийное обслуживание; на гарантийное обслуживание
2. Перед началом эксплуатации воздухоочистителя извле- ките фильтры из упаковки. Для нормального распреде-ления очищенного воздуха по объему помещения не устанавливайте воздухоочиститель в воздушном потоке (на сквозняке, перед вентилятором и т. д.). Повреждение фильтра может привести к снижению эффе...