Ballu BHC-H20T36-PS НС-1111738 - инструкции и руководства

model-name

Обогреватель Ballu BHC-H20T36-PS НС-1111738 - инструкции пользователя по применению, эксплуатации и установке на русском языке читайте онлайн в формате pdf

1 Page 1
2 Page 2
3 Page 3
4 Page 4
5 Page 5
6 Page 6
7 Page 7
8 Page 8
9 Page 9
10 Page 10
11 Page 11
12 Page 12
13 Page 13
14 Page 14
15 Page 15
16 Page 16
17 Page 17
18 Page 18
19 Page 19
20 Page 20
21 Page 21
22 Page 22
23 Page 23
24 Page 24
25 Page 25
26 Page 26
27 Page 27
28 Page 28
29 Page 29
30 Page 30
31 Page 31
32 Page 32

Краткое содержание

Страница 2 - Содержание; Используемые обозначения; Производитель оставляет за собой право без; Свидетельство о приемке

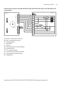
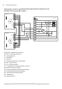
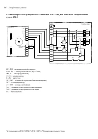
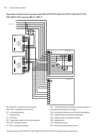
2 Содержание Используемые обозначения ВНИМАНИЕ! Требования, несоблюдение которых может приве-сти к тяжелой травме или серьезному поврежде-нию оборудования. ОСТОРОЖНО! Требования, несоблюдение которых может при-вести к серьезной травме или летальному исходу. ПРИМЕЧАНИЕ: 1. В тексте данной инструкции ...

Страница 5 - Подготовка к работе; Монтаж тепловой завесы

5 Технические характеристики Параметр BHC-H10T12-PS BHC-H15T18-PS BHC-H20T24-PS BHC-H20T36-PS Номинальная потребляемая мощность, кВт 12,0 18,0 24,0 36,0 Частичная потребляемая мощность, кВт 6,0 9,0 12,0 18,0 Мощность в режиме максимальной вентиляции, Вт 320 360 650 650 Напряжение питания, В~Гц 380~5...

Страница 6 - Модель

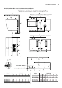
6 Подготовка к работе Вертикальная установка При вертикальном монтаже завесы ее необходи- мо располагать таким образом, чтобы выпуск воз- духа по возможности наиболее близко находился к плоскости проема, а срез выпускающего сопла – на уровне верхней кромки дверной рамы. При монтаже необходимо следит...

Ballu Обогреватели Инструкции