Bosch ES 060 (Tronic 4000T) - Инструкция по эксплуатации

Bosch ES 060 (Tronic 4000T)

Водонагреватель Bosch ES 060 (Tronic 4000T) - инструкция пользователя по применению, эксплуатации и установке на русском языке. Мы надеемся, она поможет вам решить возникшие у вас вопросы при эксплуатации техники.

Если остались дополнительные вопросы — свяжитесь с нами через контактную форму.

1 Страница 1
2 Страница 2
3 Страница 3
4 Страница 4
5 Страница 5
6 Страница 6
7 Страница 7
8 Страница 8
9 Страница 9
10 Страница 10
11 Страница 11
12 Страница 12
13 Страница 13
14 Страница 14
15 Страница 15
16 Страница 16
17 Страница 17
18 Страница 18
19 Страница 19
20 Страница 20
Страница: / 20
Загрузка инструкции

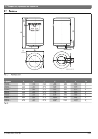
Технический паспорт и инструкция по монтажу и эксплуатации

Бойлер

Tronic

6720810314-00.1V

Tronic 1000T

Tronic 2000T

Tronic 4000T

ES 030/050/060/075/100/120/150-5 . 0 WIV-B

6 720 811 015 (2015/08) RU

"Загрузка инструкции" означает, что нужно подождать пока файл загрузится и можно будет его читать онлайн. Некоторые инструкции очень большие и время их появления зависит от вашей скорости интернета.

Характеристики

Другие модели - Водонагреватели Bosch

Все водонагреватели Bosch