Bosch ES 035 (Tronic 8000T) - Инструкция по эксплуатации

Bosch ES 035 (Tronic 8000T)

Водонагреватель Bosch ES 035 (Tronic 8000T) - инструкция пользователя по применению, эксплуатации и установке на русском языке. Мы надеемся, она поможет вам решить возникшие у вас вопросы при эксплуатации техники.

Если остались дополнительные вопросы — свяжитесь с нами через контактную форму.

1 Страница 1
2 Страница 2
3 Страница 3
4 Страница 4
5 Страница 5
6 Страница 6
7 Страница 7
8 Страница 8
9 Страница 9
10 Страница 10
11 Страница 11
12 Страница 12
13 Страница 13
14 Страница 14
15 Страница 15
16 Страница 16
17 Страница 17
18 Страница 18
19 Страница 19
20 Страница 20
Страница: / 20
Загрузка инструкции

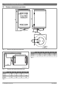
Технический паспорт и инструкция по монтаж и эксплуатации

Бак-водонагреватель

Tronic 8000T

6720812247-00.1V

ES 035/050/080/100/120 5...

6 720 818 596 (2016/11) RU

"Загрузка инструкции" означает, что нужно подождать пока файл загрузится и можно будет его читать онлайн. Некоторые инструкции очень большие и время их появления зависит от вашей скорости интернета.

Характеристики

Другие модели - Водонагреватели Bosch

Все водонагреватели Bosch