Ballu BHC-H15A-PS - Инструкция по эксплуатации

Ballu BHC-H15A-PS

Тепловая завеса Ballu BHC-H15A-PS - инструкция пользователя по применению, эксплуатации и установке на русском языке. Мы надеемся, она поможет вам решить возникшие у вас вопросы при эксплуатации техники.

Если остались дополнительные вопросы — свяжитесь с нами через контактную форму.

1 Страница 1
2 Страница 2
3 Страница 3
4 Страница 4
5 Страница 5
6 Страница 6
7 Страница 7
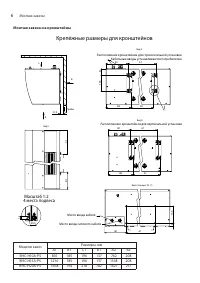
8 Страница 8
9 Страница 9
10 Страница 10
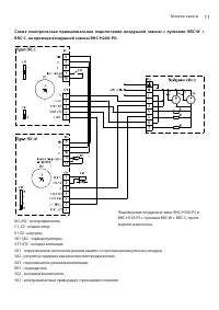
11 Страница 11
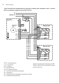
12 Страница 12
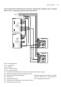
13 Страница 13
14 Страница 14
15 Страница 15
16 Страница 16
17 Страница 17
18 Страница 18
19 Страница 19
20 Страница 20
21 Страница 21
22 Страница 22
23 Страница 23
24 Страница 24
Страница: / 24
Загрузка инструкции

Руководство

по эксплуатации

Гарантийный талон

Воздушные завесы электрические

стационарные (без нагрева)

BHC-H10A-PS

BHC-H15A-PS

BHC-H20A-PS

Code-128

Перед началом эксплуатации прибора внимательно

изучите данное руководство и храните его в доступном месте.

Пульт BRC-W

с электронным термостатом

в комплекте

"Загрузка инструкции" означает, что нужно подождать пока файл загрузится и можно будет его читать онлайн. Некоторые инструкции очень большие и время их появления зависит от вашей скорости интернета.

Характеристики

Другие модели - Тепловые завесы Ballu

Все тепловые завесы Ballu