Страница 2 - Оглавление
2 3062003_1108 Оглавление Общая информация Указания по технике безопасности / Нормы и предписания .................... 3-4 Эксплуатация Устройство регулирования ............................................................................ 5 Монтаж Габариты / Монтажные габариты ..........................
Страница 3 - Указания по технике безопасности
3 3062003_1108 В данном описании используются следующие символы и указательные знаки. Эти важные указания касаются защиты людей и техники безопасности работ. Указания по технике безопасности “Указание” обозначает техническое указание, которое следует соблюдать для предупреждения поломок и функционал...
Страница 5 - Устройство регулирования; Светящаяся окружность для; Регулировка
5 3062003_1108 Устройство регулирования Примечание: Светящаяся окружность для индикации режимов 9 1 2 8 3 7 4 6 5 2 8 3 7 4 6 5 °C 0 120 bar 0 4 2 1 3 Регулировка Сетевой выключатель ВКЛ/ВЫКЛ Регулятор температуры ГВС Манометр Кнопка сброса Регулятор температуры воды в системе отопления Светящаяся о...
Страница 6 - Габариты / Монтажные габариты
6 3062003_1108 Габариты / Монтажные габариты 1 Подающая линия 2 Горячая вода 3 Холодная вода 4 Обратная линия 5 Подключение газа M in .20 0 M in .20 0 Min.40 190 393 85 5 73 134 5 2 3 1 4 176 440 170 69 4 25 7, 5 39 49 344 5 1 2 3 4 120
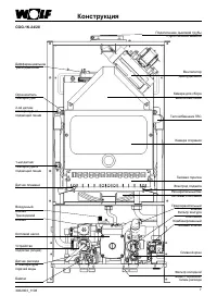
Страница 7 - Конструкция
7 3062003_1108 Конструкция CGG-1K-24/28 Вентилятор дымоудаления Камера сгорания Устройство подпитки (опция) Комбинированный газовый клапан Расширительный бак системы отопления Трехходовой клапан 2-ой датчик температуры в подающей линии Ограничитель температуры Подключение дымовой трубы с дроссельной...
Страница 8 - Принципиальная схема
8 3062003_1108 Принципиальная схема Теплообменник сетевой воды Газовая горелка Комбинированный газовый клапан Расширительный бак Воздушный клапан Котловой насос Теплообменник горячей воды Предохранительный клапан Сливной кран Фильтр контура отопления Фильтр холодной воды с ограничи- телем расхода Ог...
Страница 9 - Указания по установке / монтажу; Общие положение
9 3062003_1108 Указания по установке / монтажу Общие положение - Определить местоположение газового котла, при этом слелует соблюдать указанные минимальные отступы (см. рисунок справа). - Закрепить на стене прилагаемый монтажный шаблон (на листе бумаги). - Перенести на стену (например, при помощи св...
Страница 10 - Подключение; Подключение газа
10 3062003_1108 Подключение Подключение газа Прокладка газопровода, а также подключение газа должны выполняться только специалистами газовой службы. При проверке давления в гозопроводе газовый шаровой кран на котле должен быть закрыт. С и с т е м у от о п л е н и я и га з о п р о в од п е р ед подкл...
Страница 11 - Скрытый монтаж
11 3062003_1108 Подключение Скрытый монтаж Рисунок: Вид спереди комплект подключения для скрытого монтажа (Aрт. № 86 12 189) Рисунок: Вид снизу комплект подключения для монтажа открытой проводкой (Aрт. № 86 12 188) Рисунок: Вид снизу комплект подключения для скрытого монтажа (Aрт. № 86 12 188)
Страница 13 - Дымовые трубы
13 3062003_1108 Тип C12x Го р и з о н т а л ь н ы й п р о х о д ч е р е з н а р у ж н у ю с т е н у (Подача воздуха для горения из атмосферы). Дымовая труба с воздуховодом и дымоходом „труба в трубе“ (система 60/100 мм) Расчетная длина мин./макс. = 0,3 м / 5,0 м Тип C32x Вертикальный проход через кр...
Страница 15 - Электрическое подключение
1 3062053_1206 Электрическое подключение Н а к л е м м а х п и т а н и я к от л а д а ж е п р и выключенном сетевом переключателе сохраняется электрическое напряжение. При несоблюдении техники безопасности существует опасность электроудара и как следствие опасность травмирования или летальный исход!...
Страница 16 - Заполнение водой системы отопления; Заполнение водой
16 3062003_1108 Заполнение водой системы отопления Заполнение водой системы отопления Для обеспечения безупречной работы газового котла необходимо правильно заполнить водой систему отопления и котел, а также удалить из них воздух. Вода для системы отопления не должна содержать ингибиторов или средст...
Страница 19 - Ограничение макс. мощности
19 3062003_1108 Ограничение макс. мощности Установку мощности можно изменить с помощью внешних устройств регулирования Wolf, подключаемых по шине e-Bus (в параметре HG 04). Тепловая мощность определяется модуляционным током газового магнитного клапана. При снижении модуляционного тока согласно табли...
Страница 20 - Выбор ступени насоса
20 3062003_1108 Выбор ступени насоса Котел оснащен 3-х ступенчатым насосом, который при поставке установлен на ступень 2. Минимальная циркуляция между подающей и обратной линией обеспечивается благодаря соединительному трубопроводу. В соединительный трубопровод встроен автоматический перепускной кла...
Страница 22 - Протокол ввода в эксплуатацию; Работы по вводу в эксплуатацию
22 3062003_1108 Протокол ввода в эксплуатацию Работы по вводу в эксплуатацию Измерительные величины или подтверждение 1) Вид газа Природный газ H Сжиженный газ Индекс Wobbe____________________кВтч/м 3 Рабочая теплота сгорания__________кВтч/м 3 2) Расчитанная длина дымоходной трубы Установленная дрос...
Страница 24 - Техобслуживание
24 3062003_1108 Техобслуживание Чистка газовой горелки: - Отключить котел сетевым выключателем, обесточить, закрыть газовый кран. - Снять крышку обшивки газового котла. Для этого окинуть переднюю панель устройства регулирования и открыть павый и левый ригели. Панель обшивки ослабить снизу и снять св...
Страница 27 - Перенастройка котла для
27 3062003_1108 Сетевой выключатель ВКЛ/ВЫКЛ Регулятор температуры горячей воды Манометр Кнопка деблокирования Регулятор температуры воды в системе отопления Светящаяся окружность (индикатор режимов) Термометр - Выключить и снова включить сетевой выключатель котла. Никаких сбоев в работе котла не до...
Страница 28 - Настройка и контроль давления га за на
28 3062003_1108 Таблица: Давление газа на сполах 3. Настройка и контроль давления га за на соплах Поключение измерительного прибора: - Газовый котел должен быть выключен. Открыть газовый запорный кран. - Снять крышку обшивки.- Ослабить резьбовую заглушку на измерительном ниппеле . - (+) измеритель...
Страница 30 - Если величины замеров находятся
30 3062003_1108 Мощно сть [кВ т] Мощность CGG-1K-28 природный газ Данные при давлении воздуха 1013 мбар и температуре газа 15°C Давление газа на соплах [мбар] Давление газа [мбар] Мощно сть [кВ т] Мощность CGG-1K-24 природный газ Данные при давлении воздуха 1013 мбар и температуре газа 15°C Снятие и...
Страница 32 - Измерение отходящих газов; Измерение воздуха, подаваемого для горения
32 3062003_1108 Измерение отходящих газов Замер отходящих газов следует проводить на котле с одетой обшивкой. Элемент дымовой трубы для подключения к котлу (колено 90 о ) - Вынуть винт из измерительного отверстия отходящих газов. - Открыть газовый запорный кран.- Ввести измерительный зонд до упора.-...
Страница 33 - Электрическая схема
33 3062003_1108 Электрическая схема B3 (Ионизация) Горе лк а Y0 (Ком биниров анный га зовый к лапан) E1 (Б лок по джиг а) M2 (Вентилят ор) M1 Нас ос M1 (Нас ос) Кл еммная к оробка: Се ть 230 В 50 Гц L внешнее оснащ ение 230 В R T конфигу рир уемый вх од eBus шина AF Да тчик нар ужной т емпер ат уры ...
Страница 34 - Технические характеристики
34 3062003_1108 Технические характеристики Тип CGG-1K-24 CGG-1K-28 Номинальная мощность кВт 24 28 Номинальная тепловая нагрузка кВт 26,7 31,1 Минимальная тепловая мощность (модулирования) кВт 9,4 10,9 Минимальная тепловая нагрузка (модулирования) кВт 10,4 12,0 Подающая линия G ¾“ ¾“ Обратная линия G...
Страница 35 - Устранение неисправностей
35 3062003_1108 Устранение неисправностей В случае неисправности на дисплее устройства регулирования высвечивается соответствующий код. Расшифровка кодов неисравностей приведена в таблице. Таблица должна облегчить сервисному специалисту быстрый поиск и устранение возможных неисправностей. Код Неиспр...
Страница 36 - EC-Declaration of Conformity to Type
Др. Фритц Хилле Технический директор Гердеван Якобс Технический руководитель Заявление производителя о соответстии продукции требованиям ЕЭС Настоящим заявляем, что газовые настенные конденсационные котлы Wolf, а также газовые котлы с атмосферными горелками Wolf соответсвуют эталонной конструкции, о...