Страница 2 - Оглавление; Общая информация
2 3064932_201608 Оглавление Общая информация Указания по безопасности .........................................................3 Указания по безопасности/Стандарты и предписания ............4 Монтаж Габаритные и монтажные размеры ...........................................5 Схема конструкции. .........
Страница 3 - Указания по безопасности
3 3064932_201608 В данном описании используются следующие символы и указательные значки. Эти важные указания относятся к защите людей и технической безопасности во время эксплуатации. Указания по безопасности Значком «Внимание» помечены техни- ческие указания, которые необходимо с о бл ю д а т ь , ч...
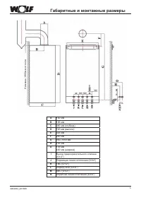
Страница 5 - Габаритные и монтажные размеры
5 3064932_201608 Габаритные и монтажные размеры A 100 мм B 185 мм C 340 мм (глубина) D 720 мм (высота) E 325 мм F 240 мм G 900–1050 мм H 105 мм O 139 мм 400 мм (ширина) I Выход предохранительного клапана (G1/2") J Подающая линия отопления (G3/4") K ГВС (G1/2") L Подвод газа (G3/4") M...
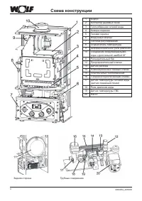
Страница 6 - Схема конструкции
6 3064932_201608 1 Корпус 2 Коллектор дымовых газов 3 Теплообменник сетевой воды 4 Камера сгорания 5 Газовая горелка 6 Воздушный клапан 7 Система регулирования 8 Ограничитель температуры 9 Дифференциальное реле давления 10 Соединение воздуховода/дымо- хода с дроссельной шайбой ОГ 11 Расширительный б...
Страница 7 - Указания по установке/Монтаж
7 3064932_201608 Газовый котел разрешается размещать только в помещениях, защищенных от воздействия отрицательных температур. При монтаже установки необходимо обеспечить достаточную несущую способность крепежных деталей. При этом также следует учитывать материал и характеристики стены, так как в ино...
Страница 9 - Подсоединение
9 3064932_201608 Подсоединение Соединение газовой линии Прокладка газовой линии, а также под- с о ед и н е н и е с о с то р о н ы газ а д ол ж н ы в ыпол н яться тол ьк о авторизова н н ым специалистом по монтажу газовых систем. При испытании давлением газовой линии должен быть закрыт газовый шарово...
Страница 10 - дымоход
10 3064932_201608 Дроссельная шайба ОГ/Воздуховод/ дымоход Дроссельная шайба ОГ – Перед монтажом системы отвода отработавших газов (ОГ) на основании соответствующей таблицы необходимо проверить, какую из прилагающихся дроссельных шайб ОГ следует использовать в за- висимости от длины воздуховода/дымо...
Страница 12 - Подсоединение к электрической сети
12 3064932_201608 Подсоединение к электрической сети На клеммы электропитания в соединительной коробке установки подается напряжение даже при выключенном главном выключателе. При несоблюдении указаний существует опасность поражения электрическим током, что может привести к вреду для здоровья или сме...
Страница 14 - Общий обзор системы регулирования
14 3064932_201608 Общий обзор системы регулирования 1 Рабочий выключатель 2 Регулятор температуры отопления (температура отображается на дисплее) 3 Дисплей 4 Регулятор температуры ГВС (температура отображается на дисплее) 5 Манометр (индикация давления) Общий обзор системы регулирования ВЫКЛ/Ожидани...
Страница 16 - Порядок действий для перехода к настройке параметров:
16 3064932_201608 Отображение и изменение параметров системы регулирования Порядок действий для перехода к настройке параметров: 1. Установить рабочий выключатель на летний режим. 2. Четыре раза быстро повернуть рабочий выключатель с летнего режима в положение «0» (конечное положение – «0»). Длитель...
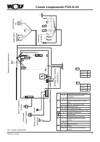
Страница 19 - Wiring dia; FF
19 3064932_201608 3 21 4 56 B A D C Mr. Rosh ani M r.M or te zapour 95. 03. 02 E . E sm aei lpour 95. 03. 02 95. 03. 02 C D E A B 5 4 3 2 1 16 15 14 13 12 11 10 9 8 7 6 27 26 25 24 23 C onne ct ors Wiring dia gram Wolf 24 FF Sa fety th er m os ta t Air press ur e sw itc h - C.H . p rob e D .H .W p r...
Страница 22 - Проверка давления в сопле
22 3064932_201608 Проверка давления в сопле Проверка давления в сопле: – Газовый котел должен быть выключен.– Открыть газовый шаровой кран.– Снять обшивку.– Ослабить резьбовую пробку на измерительном штуцере [2]. – Под с о ед ин ит ь с о ед ин е н ие ( + ) пр ибо р а д л я измерения дифференциальног...
Страница 23 - Регулировка давления в сопле
23 3064932_201608 Регулировка газового клапана: Порядок настройки значений давления в сопле:– Снять прозрачный пластмассовый колпачок [4] на комбинированном газовом клапане. – Включить установку в режиме «Трубочист» (P max ) (см. параметр системы регулирования P1 на стр. 17). – Выполнить регулировку...
Страница 24 - Измерение показателей ОГ
24 3064932_201608 Измерение показателей ОГ Измерение показателей ОГ должно выполняться при закрытой установке. – Открутить винт из измерительного отверстия всасываемого воздуха.– Открыть газовый запорный кран.– Вставить измерительный зонд до упора.– Включить установку и активировать режим «Трубочист...
Страница 25 - Выбор ступени насоса; ead; Nota bene : tolerances of each curve are according to EN 1151-1:2006; Head; Specific asynchronous circulators for heating application
25 3064932_201608 Выбор ступени насоса Установк а оснащена 3-ст упенчатым нас ос ом, который в состоянии при поставке настроен на ступень 3. Рис. Ступени переключения насоса Version 07.01 NFSL12/7 HE-3 0 1 2 3 4 5 6 7 0 0,5 1 1,5 2 2,5 3 NFSL12/6 HE-3 0 1 2 3 4 5 6 0 0,5 1 1,5 2 2,5 Water flow (m 3 ...
Страница 26 - Техническое обслуживание
26 3064932_201608 Техническое обслуживание Очистка газовой горелки: – Обесточить установку и закрыть газовый кран.– Снять обшивку газового котла. Откинуть вниз систему регулирования. – Открутить винты передней крышки и снять ее.– Открутить 4 крепежных винта горелки (винты с о сферо-цилиндрическ ой г...
Страница 28 - Проверка и техническое обслуживание/
28 3064932_201608 Рекомендуется заключить договор на техническое обслуживание. Протокол проверок и технического обслуживания Чтобы обеспечить надежную и эко- номически выгодную работу системы отопления и предотвратить возник- н о в е н и е о п а с н о с т е й д л я л ю д е й и имущества, пользовател...
Страница 29 - Протокол технического обслуживания
29 3064932_201608 Протокол технического обслуживания Техническое обслуживание 3 Техническое обслуживание 4 Техническое обслуживание 5 Техническое обслуживание 6 Техническое обслуживание 7 Техническое обслуживание 8 Техническое обслуживание 9 Техническое обслуживание 10 Техническое обслуживание 11 Те...
Страница 30 - Протокол ввода в эксплуатацию
30 3064932_201608 Протокол ввода в эксплуатацию Работы по вводу в эксплуатацию FGG-K Измеренные значения или подтверждение 1) Вид газа Природный газ H Число Воббе____________________кВт•ч/м³ Рабочая теплотворность_________ кВт•ч/м³ 2) Расчетная длина дымоходаУстановленная дроссельная шайба ОГ ______...
Страница 31 - Технические характеристики
31 3064932_201608 Технические характеристики Модель FGG-K-24 Ном инальная тепловая мощность кВт 24 Ном инальная тепловая нагрузка кВт 25,7 Мин имальная тепловая мощность (регулир.) кВт 9,6 Мин имальная тепловая нагрузка (регулир.) кВт 11,0 Наружный Ø подающей линии отопления G ¾“ Наружный Ø обратной...
Страница 32 - Неисправности, причины и устранение
32 3064932_201608 Неисправности, причины и устранение В случае неисправности отображается код ошибки, на основании которого с помощью следующей таблицы можно определить причину и метод устранения неисправности. Эта таблица позволяет упростить поиск неисправностей для специалиста. Код неис- правности...