Страница 3 - Посудомоечные машины Weissgauff; ПРАВИЛА И УСЛОВИЯ БЕЗОПАСНОЙ ЭКСПЛУАТАЦИИ
3 Посудомоечные машины Weissgauff ПРАВИЛА И УСЛОВИЯ БЕЗОПАСНОЙ ЭКСПЛУАТАЦИИ Перед эксплуатацией машины внимательно изучите и соблюдайте настоящие инструкции по эксплуатации и установке, а также все документы, прилагающиеся к прибору. Сохрани - БЫСТРАЯ НАСТРОЙКА Подробное описание методов настройки п...
Страница 6 - РЕКОМЕНДАЦИИ ПО ТЕХНИКЕ БЕЗОПАСНОСТИ; Электрическая безопасность:
6 РЕКОМЕНДАЦИИ ПО ТЕХНИКЕ БЕЗОПАСНОСТИ Продукт сертифицирован в соответствии с действующим техническим регламентом. Производитель на свое усмотрение и без дополнительных уведомлений может менять ком - плектацию, внешний вид, страну производства и технические характеристики модели. ПРАВИЛА И УСЛОВИЯ ...
Страница 7 - ЗАЗЕМЛЕНИЕ
7 • Пользуйтесь только моющими средствами и ополаскивателями, предназначенными для автоматических посудомоечных машин. • Не пользуйтесь мылом и другими моющими средствами, предназначенными для руч - ной мойки. Держите такие материалы вне пределов досягаемости детей. • Не допускайте детей к моющим ср...
Страница 8 - РЕКОМЕНДАЦИИ ПО УТИЛИЗАЦИИ; Рекомендации по защите окружающей среды; Упаковка/бывшая в эксплуатации машина
8 Безопасность для детей Предупреждение: Опасно для жизни!! Возможен риск травм, если дети будут играть с машиной. Не оставляйте детей без присмотра около машины. Не позволяйте детям играть с машиной. Дети могут оказаться запертыми внутри машины и подвергнуть свою жизнь опасности. Предупреждение: Оп...
Страница 9 - ИСПОЛЬЗОВАНИЕ УСТРОЙСТВА; ПАНЕЛЬ УПРАВЛЕНИЯ; Индикация на дисплее:
9 Правильно утилизируйте упаковку посудомоечной машины. Все материалы, из которых изготовлена упаковка, подлежат утилизации. Пластмассовые детали отмечены в соответствии с международными стандартами сокра - щений: РЕ – полиэтилен (упаковочный материал) PS – пенопласт (наполнитель) РОМ – полиформальд...
Страница 11 - ПЕРЕД НАЧАЛОМ РАБОТЫ; СМЯГЧЕНИЕ ВОДЫ; Регулировка потребления соли
11 ПЕРЕД НАЧАЛОМ РАБОТЫ Вытащите прибор и все материалы из коробки, удалите упаковку. Проверьте прибор на предмет повреждений, полученный во время транспортировки, убедитесь в наличии всех частей, входящих в комплект поставки. Упаковочные материалы могут представлять опасность для детей. Выбрасывайт...
Страница 12 - ЗАГРУЗКА СОЛИ
12 Примечания: °dH = 1.25° (единица измерения жесткости воды в Германии) °fH = 0.178 миллимолей/л (единица измерения жесткости воды во Франции) Градус Кларка = 1.78° (единица измерения жесткости воды в Великобритании) Заводская установка по умолчанию: H4 (Европейская норма EN 50242).Примечание: в не...
Страница 13 - НАПОЛНЕНИЕ ДОЗАТОРА ОПОЛАСКИВАТЕЛЯ; Заправка дозатора для ополаскивателя
13 панели управления не предусмотрен (на некоторых моделях), следует оценивать не - обходимость засыпания соли по числу прошедших рабочих циклов. 2. Если соль просыпалась, можно вымыть ее из машины с помощью программы «Зама - чивание». НАПОЛНЕНИЕ ДОЗАТОРА ОПОЛАСКИВАТЕЛЯ Средство для полоскания испол...
Страница 15 - Концентрация моющего средства
15 Моющие средства в таблетках Моющие средства в таблетках от разных производителей растворяются с разной скоро - стью. Некоторые моющие средства в таблетках не успевают раствориться при включении короткой программы мойки. При использовании моющих средств в таблетках рекоменду - ется включать длител...
Страница 16 - ЗАГРУЗКА ПОСУДОМОЕЧНОЙ МАШИНЫ; ОБЩИЕ РЕКОМЕНДАЦИИ
16 ЗАГРУЗКА ПОСУДОМОЕЧНОЙ МАШИНЫ ОБЩИЕ РЕКОМЕНДАЦИИ • Используйте посуду, которую можно мыть в посудомоечной машине. • Используйте мягкое моющее средство, не повреждающее посуду, см. информацию и рекомендации на упаковке моющих средств. • Для мойки отдельных предметов выбирайте программу с максималь...
Страница 17 - Извлечение посуды; СПОСОБЫ ЗАГРУЗКИ; Загрузка верхней корзины; Регулировка верхней корзины; (наличие данной функции зависит от модели)
17 • ножи с длинными лезвиями, хранящиеся в вертикальном положении являются потен - циальным источником опасности! Длинные и/или острые столовые приборы, такие, как разделочные ножи, должны быть расположены горизонтально в верхней корзине. • не перегружайте машину. Это важно как для достижения хорош...
Страница 19 - Выдвижной лоток для столовых приборов; Корзина для столовых приборов
19 Откидные направляющие нижней корзины позволяют оптимальным образом располо - жить посуду – см. рис. ниже: Выдвижной лоток для столовых приборов Выдвижной лоток разработан специально для столовых приборов, таких как ножи, вилки, ложки. Конструкция лотка позволяет легко и полностью выдвинуть его из...
Страница 20 - ЗАПУСК ПРОГРАММЫ МОЙКИ; ТАБЛИЦА РАБОЧИХ ЦИКЛОВ МОЙКИ; Количество программ зависит от модели
20 ЗАПУСК ПРОГРАММЫ МОЙКИ ТАБЛИЦА РАБОЧИХ ЦИКЛОВ МОЙКИ Програм- ма Рекомендации Описание программы Моющее средство Предвари- тельная/ Основная Время работы, мин Энерго потре- бление, кВт/ч Рас- ход воды, л Опо- ла- ски- ва- тель Авто Автоматическое опре - деление количества посуды, степени за - гряз...
Страница 21 - ВКЛЮЧЕНИЕ УСТРОЙСТВА; Начало цикла мойки; ИЗМЕНЕНИЕ ПРОГРАММЫ
ВКЛЮЧЕНИЕ УСТРОЙСТВА Начало цикла мойки 1. Необходимо выдвинуть нижнюю и верхнюю корзины, загрузить посуду и задвинуть их назад. Рекомендуется загрузить в первую очередь нижнюю корзину, а затем верхнюю (см. раздел под названием «Загрузка посудомоечной машины»). 2. Добавьте моющее средство (см. разде...
Страница 22 - ЗАВЕРШЕНИЕ ЦИКЛА МОЙКИ; Выключение посудомоечной машины; ТЕХНИЧЕСКОЕ ОБСЛУЖИВАНИЕ И; СИСТЕМА ФИЛЬТРОВ
ЗАВЕРШЕНИЕ ЦИКЛА МОЙКИ По завершении рабочего цикла, в течение 8 секунд будет звучать сигнал окончания мой - ки. После этого устройство останавливается. Отключите его с помощью кнопки Вкл/Выкл, откройте дверцу посудомоечной машины, при необходимости отключите подачу воды. Прежде чем разгружать посуд...
Страница 23 - Очистка фильтра; Уход за посудомоечной машиной
Фильтры эффективно удаляют частички пищи из воды во время мойки, позволяя ей цир - кулировать по кругу. Для достижения оптимальной производительности и наилучших результатов, фильтры следует регулярно очищать. Для этого лучше всего удалять крупные частицы из фильтров после каждой мойки путем очистки...
Страница 24 - Очистка дверцы; Защита от замерзания; Чистка разбрызгивателей
Очистка дверцы Для очистки торцевых элементов дверцы используйте только мягкие влажные салфетки. Для предотвращения проникновения воды в элементы крепления и электронные компо - ненты, не пользуйтесь чистящими распылителями любого типа. ВНИМАНИЕ! • Использование чистящих аэрозолей распылителей для о...
Страница 25 - УХОД ЗА ПОСУДОМОЕЧНОЙ МАШИНОЙ; Перемещение машины; ИНСТРУКЦИЯ ПО УСТАНОВКЕ; ПОДГОТОВКА К УСТАНОВКЕ; Проверка состояния посудомоечной машины.
УХОД ЗА ПОСУДОМОЕЧНОЙ МАШИНОЙ • После каждой мойки необходимо оставлять дверцу машины слегка приоткрытой, что - бы избавиться от излишней влажности и неприятного запаха. • Отключите прибор от сети водоснабжения. • Отключите машину от электросети. Прежде чем приступить к очистке или выполнению технич...
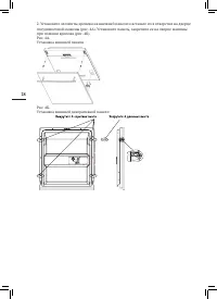
Страница 26 - Установка посудомоечной машины.
Установка посудомоечной машины. • Размеры, требуемые для установки посудомоечной машины, приведены ниже в ин - струкции по монтажу. • Не располагайте машину в месте, где есть вероятность понижения температуры ниже 0°C. • Устанавливайте машину рядом с дренажными выходами канализации и водоснабже - ни...
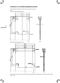
Страница 27 - РАЗМЕРЫ И УСТАНОВКА ВНЕШНЕЙ ПАНЕЛИ
РАЗМЕРЫ И УСТАНОВКА ВНЕШНЕЙ ПАНЕЛИ 1. Установите внешнюю панель, как показано на рис. 3 Рис.3 Для моделей шириной 45 см Для моделей шириной 60 см Внешняя панель должна соответствовать размерам, приведенным на рисунке (ед.измере - ния – мм). dp8 439 416 0.2 ± 390 0.2 ± 287.5 0.2 ± 286 3 8 8 - 2 dp8 4...
Страница 29 - РЕГУЛИРОВКА ПРУЖИНЫ ДВЕРЦЫ ПОСУДОМОЕЧНОЙ МАШИНЫ
РЕГУЛИРОВКА ПРУЖИНЫ ДВЕРЦЫ ПОСУДОМОЕЧНОЙ МАШИНЫ Пружина дверцы посудомоечной машины регулируется на заводе. Если Вы установили внешнюю декоративную панель, необходимо отрегулировать степень упругости пружины. Вращая регулирующий винт, ослабьте или затяните стальной кабель (см. рис. 5). Пружина отрег...
Страница 31 - ПОДКЛЮЧЕНИЕ К ЭЛЕКТРОСЕТИ; Требования к электрическому подключению; Подключение переходника-коннектора
ПОДКЛЮЧЕНИЕ К ЭЛЕКТРОСЕТИ ВНИМАНИЕ! В целях безопасности:• НЕ ПОЛЬЗУЙТЕСЬ УДЛИНИТЕЛЯМИ ИЛИ ПЕРЕХОДНИКАМИ.• НИ ПРИ КАКИХ ОБСТОЯТЕЛЬСТВАХ НЕ ОТСОЕДИНЯЙТЕ ЗАЗЕМЛЯЮЩИЙ ПРО - ВОД СЕТЕВОГО ШНУРА. Требования к электрическому подключению Ознакомьтесь с маркировкой на приборе и информационной таблицей с техн...
Страница 32 - Подключение холодной воды
Безопасный впускной шланг (Аква-стоп) Специальный безопасный заливной (впускной) шланг имеет две стенки. Система безопас - ности шланга гарантирует защитное срабатывание в случае, если шланг портится, и если воздушное пространство между внешним впускным шлангом и внешним гофрированным шлангом заполн...
Страница 33 - ВКЛЮЧЕНИЕ ПОСУДОМОЕЧНОЙ МАШИНЫ; УСТРАНЕНИЕ НЕПОЛАДОК; ПЕРЕД ОБРАЩЕНИЕМ В СЕРВИСНЫЙ ЦЕНТР
ВКЛЮЧЕНИЕ ПОСУДОМОЕЧНОЙ МАШИНЫ Прежде, чем включить посудомоечную машину, проверьте следующее: 1. Все упаковочные материалы удалены. 2. Посудомоечная машина зафиксирована и стоит ровно. 3. Впускной клапан открыт. 4. Нет протечек в местах соединений. 5. Провода правильно и плотно подсоединены. 6. Эле...
Страница 35 - КОДЫ ОШИБОК
Неудовлетвори - тельное качество сушки – посуда не высыхает. Неправильная загрузка. Недостаточное ополаскивание. Посуду вынули слишком рано. Установите посуду правильно. Добавьте ополаскиватель. Не разгружайте машину сразу после окончания цикла мойки, слегка приот - кройте дверь, чтобы пар мог выйти...
Страница 36 - ТЕХНИЧЕСКИЕ ДАННЫЕ
ТЕХНИЧЕСКИЕ ДАННЫЕ BDW6138D, BDW6134D BDW4134D BDW4138D BDW6134D Высота 815 мм Ширина 448 мм 598 мм Глубина 550 мм Количество комплектов 10 14 BDW4140D BDW4138D, BDW4134D, BDW4140D BDW6138D BDW4124 BDW4004 815 мм 815 мм 550 мм 550 мм 448 мм 9 , BDW4004, BDW4124 36
Страница 37 - ЗАГРУЗКА КОРЗИН В СООТВЕТСТВИИ С ЕВРОПЕЙСКИМИ
ЗАГРУЗКА КОРЗИН В СООТВЕТСТВИИ С ЕВРОПЕЙСКИМИ НОРМАМИ EN 50242: 1. Верхняя корзина 2. Нижняя корзина 3. Корзина для столовых приборов (наличие зависит от модели) 4. Корзина для столовых приборов (наличие зависит от модели) 37
Страница 38 - Корзина имеет 5 возмож
1. Чашки 2. Блюдца 3. Стаканы 4. Маленький сервировочный салатник 5. Средний сервировочный салатник 6. Большой сервировочный салатник 7. Десертные блюдца 8. Обеденные тарелки 9. Суповые тарелки 10. Овальное блюдо 1. Столовые ложки 2. Вилки 3. Ножи 4. Чайные ложки 5. Десертные ложки 6. Сервировочные ...
Страница 39 - СВОДНАЯ ТАБЛИЦА ТЕХНИЧЕСКИХ ДАННЫХ
СВОДНАЯ ТАБЛИЦА ТЕХНИЧЕСКИХ ДАННЫХ Перечень технических данных бытовой посудомоечной машины в соответствии с Дирек - тивой ЕС 1059/2010 Артикул BDW4138D BDW6134D BDW6138D Стандартная вместимость 10 14 14 Класс энергопо - требления А++ А++ А++ Годовое энерго - потребление 266 кВт/ч 266 кВт/ч Энергопо...
Страница 44 - Дата изготовления прибора: см.торговую маркировку на приборе.; WS14 – посудомоечные машины Weissgauff.
Дата изготовления прибора: см.торговую маркировку на приборе. Серийный номер: WS14YYMMZZZZZ, где WS14 – посудомоечные машины Weissgauff. YY- год выпуска (например, 2012 год- 12) MM - месяц выпуска (например, октябрь- 10) ZZZZZ - номер прибора (например, №1222 - 01222) Основной импортер товара Weissg...