Водонагреватели Vaillant MAG OE 11-0/0XZ C+ 311187 - инструкция пользователя по применению, эксплуатации и установке на русском языке. Мы надеемся, она поможет вам решить возникшие у вас вопросы при эксплуатации техники.
Если остались вопросы, задайте их в комментариях после инструкции.
"Загружаем инструкцию", означает, что нужно подождать пока файл загрузится и можно будет его читать онлайн. Некоторые инструкции очень большие и время их появления зависит от вашей скорости интернета.

6
Инструкция по монтажу MAG pro
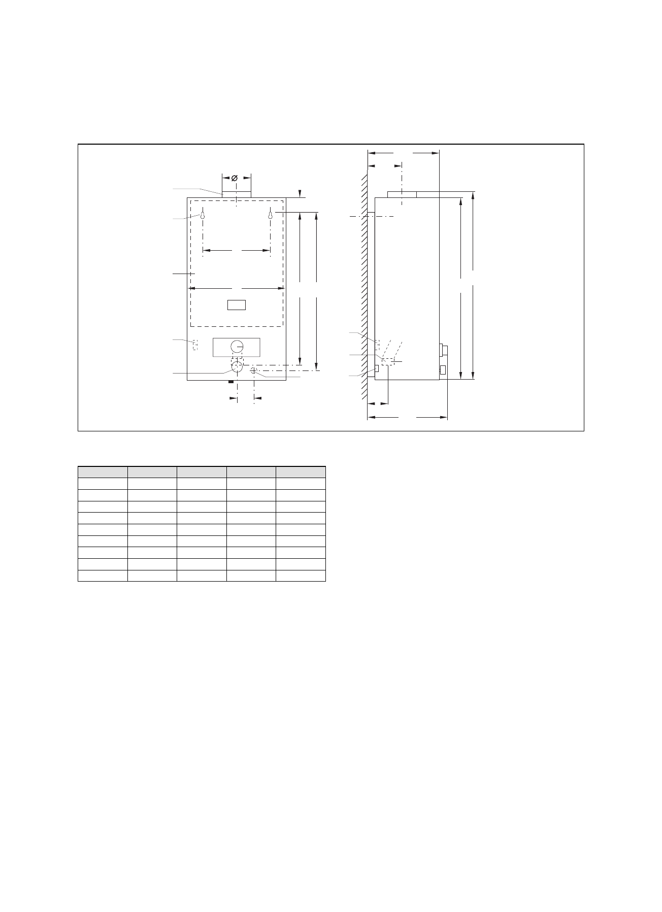
4.2 Размеры
E
H
A
B
I
L
1
2
3
4
5
6
F
G
O
C
D
M
J
N
7
7
6
Рис. 4.1 Размеры
Размер
мм
Размер
мм
A
310
J
50
B
634
L
456
C
230
M
45
D
272
N
¾“
E
∅
110
O
10
F
660
G
115
H
235
I
464
Табл. Пояснения к рис. 4.1
Пояснения к рисунку
1 Патрубок отвода продуктов сгорания
2 Корпус
3 Монтажные
отверстия
4 Терморегулятор
5 Патрубок для природного газа
6 Патрубок холодной воды ½“
7 Патрубок горячей воды
4 Монтаж

