Водонагреватели Thermex ISP 50 V - инструкция пользователя по применению, эксплуатации и установке на русском языке. Мы надеемся, она поможет вам решить возникшие у вас вопросы при эксплуатации техники.
Если остались вопросы, задайте их в комментариях после инструкции.
"Загружаем инструкцию", означает, что нужно подождать пока файл загрузится и можно будет его читать онлайн. Некоторые инструкции очень большие и время их появления зависит от вашей скорости интернета.

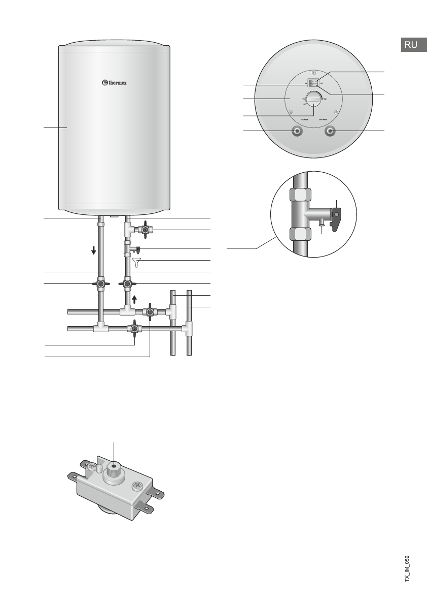
Рис. 1
Схема подключения и элементы управления.
1
2
3
4
5
8
9
14
12
13
10
9
11
6
7
2
3
19
20
16
17
18
Рис. 2
Расположение кнопки термовыключателя.
15
Внешний корпус ЭВН
Патрубок выпуска горячей воды
(с красным кольцом)
Патрубок подачи холодной воды
(с синим кольцом)
Сливной вентиль
Предохранительный клапан
Ручка предохранительного
клапана
Выпускная труба
предохранительного клапана
Дренаж в канализацию
Подводка
Вентиль подачи холодной воды
Вентиль подачи горячей воды
Магистраль холодной воды
Магистраль горячей воды
Запорный вентиль горячей воды
Запорный вентиль холодной воды
Переключатель режимов
мощности
Режим мощности
I
- 1.
5
кВт
Режим мощности
II
-
1
кВт
Защитная крышка
Ручка регулировки температуры
1.
2.
3.
4.
5.
6.
7.
8.
9.
10.
11.
12.
13.
14.
15.
16.
17.
18.
19.
20.
Нажать
3












