Водонагреватели Thermex ISP 50 V - инструкция пользователя по применению, эксплуатации и установке на русском языке. Мы надеемся, она поможет вам решить возникшие у вас вопросы при эксплуатации техники.
Если остались вопросы, задайте их в комментариях после инструкции.
"Загружаем инструкцию", означает, что нужно подождать пока файл загрузится и можно будет его читать онлайн. Некоторые инструкции очень большие и время их появления зависит от вашей скорости интернета.

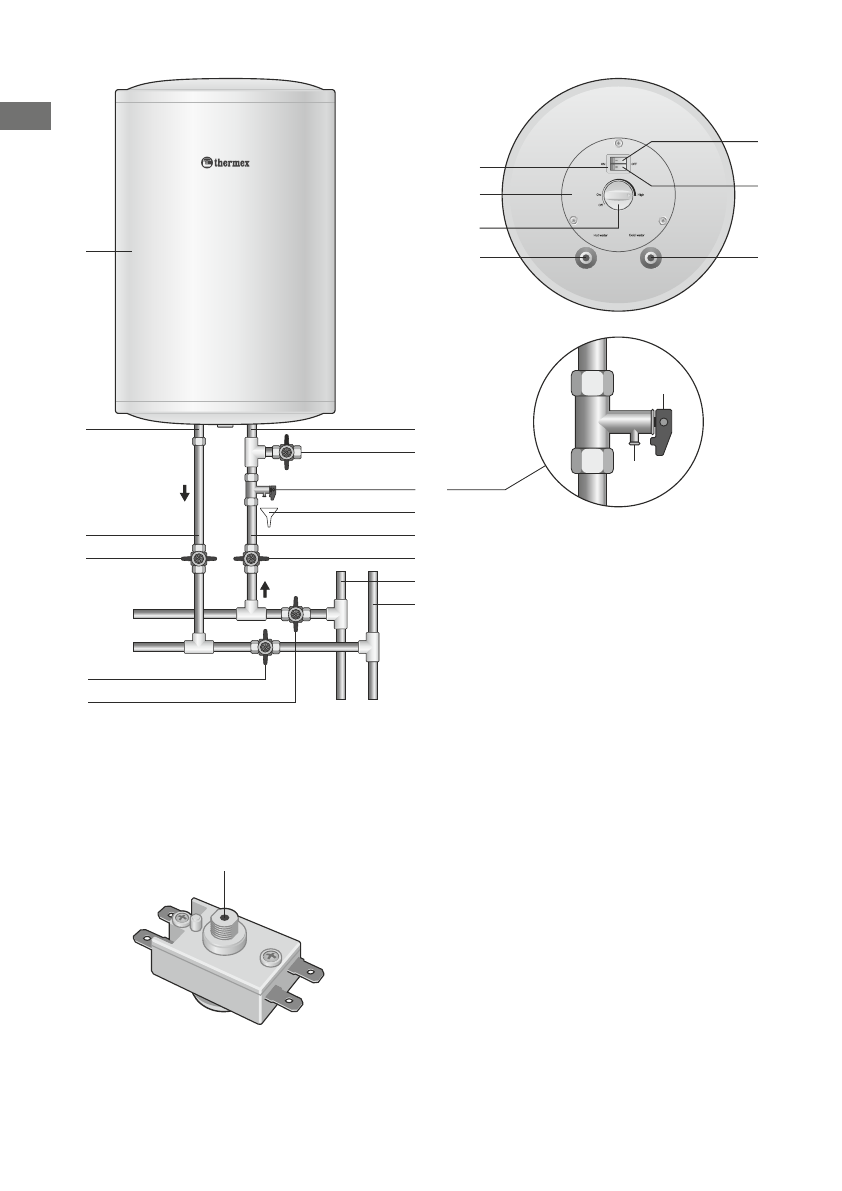
Fig. 1
Connection diagram and controls.
1
2
3
4
5
8
9
14
12
13
10
9
11
6
7
2
3
19
20
16
17
18
Fig
. 2
Thermal switch button location.
15
Outer casing of EWH
Hot water exhaust pipe (with red ring)
Cold water supply pipe (with blue ring)
Drain valve
Safety
valve
Safety valve handle
Safety
valve
exhaust
pipe
Drainage
Feed
pipe
Cold water supply valve
Hot
water
supply
valve
Cold water main
Hot water main
Hot water shut-off valve
Cold water shut-off valve
Power mode switch
Power mode
I
- 1.5 kW
Power mode
II
- 1 kW
Protective
cover
Temperature adjustment knob
1.
2.
3.
4.
5.
6.
7.
8.
9.
10.
11.
12.
13.
14.
15.
16.
17.
18.
19.
20.
Push
EN
13
12
Before the first using your electric storage water heater, carefully read this operation
manual and pay special attention to paragraphs marked with «Attention» symbol.
Present operation manual applies to ISP and IRP models with capacity from 30 to 120 liters. The full
name of the heater model is specified on the identification plate on the water heater casing.
Scope of supply
Water heater .....................................1 pcs.
Safety valve of GP type .....................1 pcs.
Anchors ............................................2 pcs.
Operation manual .............................1 pcs.
Warranty card ...................................1 pcs.
Packaging.........................................1 pcs.
Application
Water heater (hereinafter EWH) is designed to provide with hot water for welfare and industrial facilities
that have cold water supply main with appropriate characteristics.
EWH shall be operated in closed heated spaces and is not designed for continuous flowing mode.
Main technical characteristics
0
.
05 /
0.6 MPa
2
3
0
V~
, 50
Hz
2
.5
kW
1/2
“
IPX4
+
3
...+
40°С
+18…+74°С
±5°С
Cold water main pressure, min/max
Supply line - single-phase voltage, frequency
Tubular electric heater (THE) power
Thread diameter of hot and cold water connecting pipes
Heater protection class
Operation
at ambient temperature
Water heating temperature adjustment range
Accuracy of temperature maintenance in the storage mode
The manufacturer reserves the right to make changes to the design and specifications of the heater
without prior notice.
Information on place of marking and method of determining of the date of manufacture:
Date of manufacture is coded with a unique serial number on the identification plate (sticker), located at
the bottom of the casing. Serial number of the product consists of thirteen digits. The third and fourth
digits of the serial number are year of manufacture, the fifth and sixth - month of manufacture, the
seventh and eighth – date of EWH manufacture.
Principle of operation
The outer casing of EWH is made of impact-resistant plastic. Inner tank is made of high quality stainless
steel, which ensures high corrosion resistance and long life. The space between the outer casing and
the inner tank is filled with polyurethane foam - a modern, environmentally friendly thermal insulation
EN












