Thermex IRP 100 V - Инструкция по эксплуатации - Страница 54

Водонагреватели Thermex IRP 100 V - инструкция пользователя по применению, эксплуатации и установке на русском языке. Мы надеемся, она поможет вам решить возникшие у вас вопросы при эксплуатации техники.

Если остались вопросы, задайте их в комментариях после инструкции.

"Загружаем инструкцию", означает, что нужно подождать пока файл загрузится и можно будет его читать онлайн. Некоторые инструкции очень большие и время их появления зависит от вашей скорости интернета.
Страница:
/ 64
Загружаем инструкцию
background image

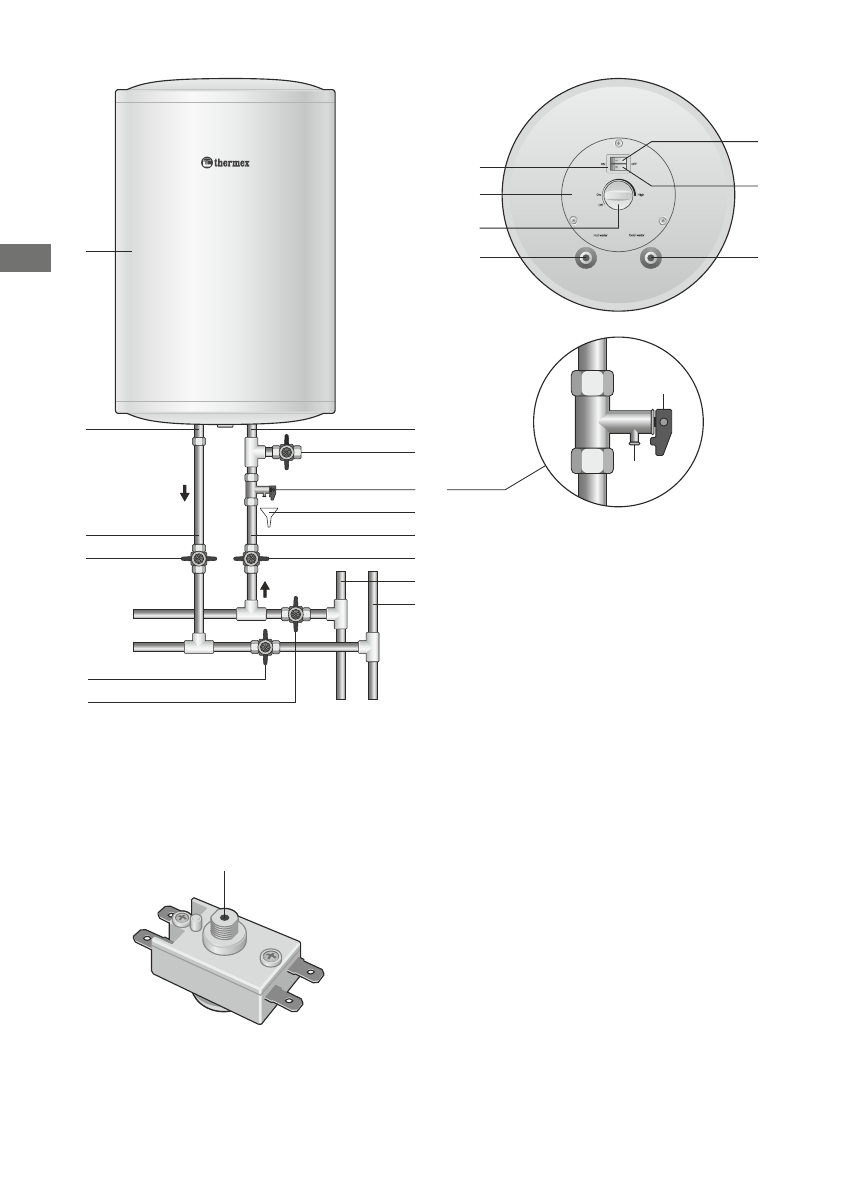
Pav. 1

Prijungimo schema ir valdymo elementai

1

2

3

4

5

8

9

14

12

13

10

9

11

6

7

2

3

19

20

16

17

18

Pav

. 2

Šilumos reguliavimo mygtukas

 

15

Išorinis EVS korpusas 

I

šeinamasis vamzdis karštam 

vandeniui (su raudonu žiedu)

Įeinamasis vamzdis šaltam 
vandeniui (

su mėlynu žiedu

)

I

šleidimo ventilis

Apsauginis vožtuvas

Apsauginio vožtuvo rankenėle

Apsauginio vožtuvo išėjimo 
vamzdis 

Drenažas į kanalizaciją

Atvedimas

Š

alto vandens išleidimo ventilis 

Karšto 

vandens išleidimo ventilis

Šalto vandens magistralė

Karšto 

vandens magistralė 

Karšto 

vandens uždaromasis 

ventilis 

Šalto vandens uždaromasis ventilis

Galingumo režimų jungiklis 

Galingumo režimas

 I - 1.5 

Kw

Galingumo režimas

 II - 1 Kw

Apsauginis dangtelis 

Temperatūros reguliavimo jungiklis 

1.

2.

3.

4.

5.

6.

7.

8.

9.

10.

11.

12.

13.

14.

15.

16.

17.

18.

19.

20.

Paspausti

LT

Prieš pradedami naudotis elektriniu turiniu vandens šildytuvu atidžiai perskaitykite šią 
naudojimo instrukciją ir atkreipkite dėmesį į punktus, pažymėtus simboliu "DĖMESIO!".

Ši naudojimo instrukcija taikoma modeliams 

 ISP 

ir

 IRP, kurių talpa nuo 30 

iki

 120 

litrų

. Pilnas įsigyto 

modelio pavadinimas nurodytas identifikavimo lentelėje ant vandens šildytuvo korpuso. 

TIEKIMO KOMPLEKTAS

Vandens šildytuvas

..................................................

1

 

vnt.

GP tipo apsauginis vožtuvas

....................................

1

 

vnt.

Ankeriai

...................................................................

2

 

vnt.

Naudojimo instrukcija

..............................................1 vnt.

Garantinis talonas

...................................................1 vnt.

Įpakavimas

..............................................................

1

 

vnt.

Paskirtis

Vandens  šildytuvas

  (toliau  tekste  EVŠ),  skirtas  karšto  vandens  gavimui  buitiniams  ir 

pramoniniams 

poreikiams, kur yra 

šalto 

vandens magistralė su reikalingais parametrais. 

EVŠ  eksploatavimas  skirtas  uždarose  apšildomose  patalpose

  ir  ne  gali  dirbti  nepertraukiamo  darbo 

režimu

Techniniai duomenys

0

.

05 /

 0.6 MPa

2

3

0

 V~

, 50 

Hz

2

.5

 

kW

1/2

IPX4

+

3

...+

40°С

+18…+74°С

 ±5°С

Šalto 

vandens magistralės slėgis, min/max

Maitinimo elektros tinklas

 – vienfazi

s

, įtampa, 

dažnis

Elektros vamzdinio kaitintuvo galingumas (VEK) 

Karšto ir šalto vandens atvamzdžio sriegio diametras 

Vandens šildytuvo saugumo klasė

Darbas aplinkos temperatūroje 

Vandens šildymo temperatūros diapazono reguliavimas 

Temperatūros palaikymo saugojimo režimu tikslumas 

Gamintojas pasilieka teisę be išankstinio pranešimo vykdyti keitimus vandens šildytuvo konstrukcijoje ir 
charakteristikose.

Informacija apie gamybos datos žymėjimo vietą ir būdas nustatyti gamybos datą:

Gaminio gamybos data įrašyta unikaliame serijiniame numeryje
Prekės  pagaminimo  data  įrašyta  unikaliame  serijiniame  numeryje,  kuris  yra  identifikacinėje  lentelėje 
(stikeryje)  apatinėje  dalyje  ant  gaminio  korpuso.  Serijinis  gaminio  numeris  susideda  iš  trylikos 
skaitmenų.Trečias ir ketvirtas serijinio numerio skaitmuo - išleidimo metai, penktas ir šeštas - išleidimo 
mėnesis, septintas ir aštuntas –  EVŠ išdavimo diena.

Veikimo principas

Išorinis EVŠ korpusas pagamintas iš smūgiams atsparaus plastiko. Vidinis bakas yra pagamintas iš 

LT

55

54

Полезные видео

Характеристики

Оцените статью
tehnopanorama.ru
Остались вопросы?

Не нашли свой ответ в руководстве или возникли другие проблемы? Задайте свой вопрос в форме ниже с подробным описанием вашей ситуации, чтобы другие люди и специалисты смогли дать на него ответ. Если вы знаете как решить проблему другого человека, пожалуйста, подскажите ему :)

Задать вопрос

Часто задаваемые вопросы
Как посмотреть инструкцию к Thermex IRP 100 V?
Необходимо подождать полной загрузки инструкции в сером окне на данной странице
Руководство на русском языке?
Все наши руководства представлены на русском языке или схематично, поэтому вы без труда сможете разобраться с вашей моделью
Как скопировать текст из PDF?
Чтобы скопировать текст со страницы инструкции воспользуйтесь вкладкой "HTML"