Водонагреватели Термекс IRP 80 V - инструкция пользователя по применению, эксплуатации и установке на русском языке. Мы надеемся, она поможет вам решить возникшие у вас вопросы при эксплуатации техники.
Если остались вопросы, задайте их в комментариях после инструкции.
"Загружаем инструкцию", означает, что нужно подождать пока файл загрузится и можно будет его читать онлайн. Некоторые инструкции очень большие и время их появления зависит от вашей скорости интернета.

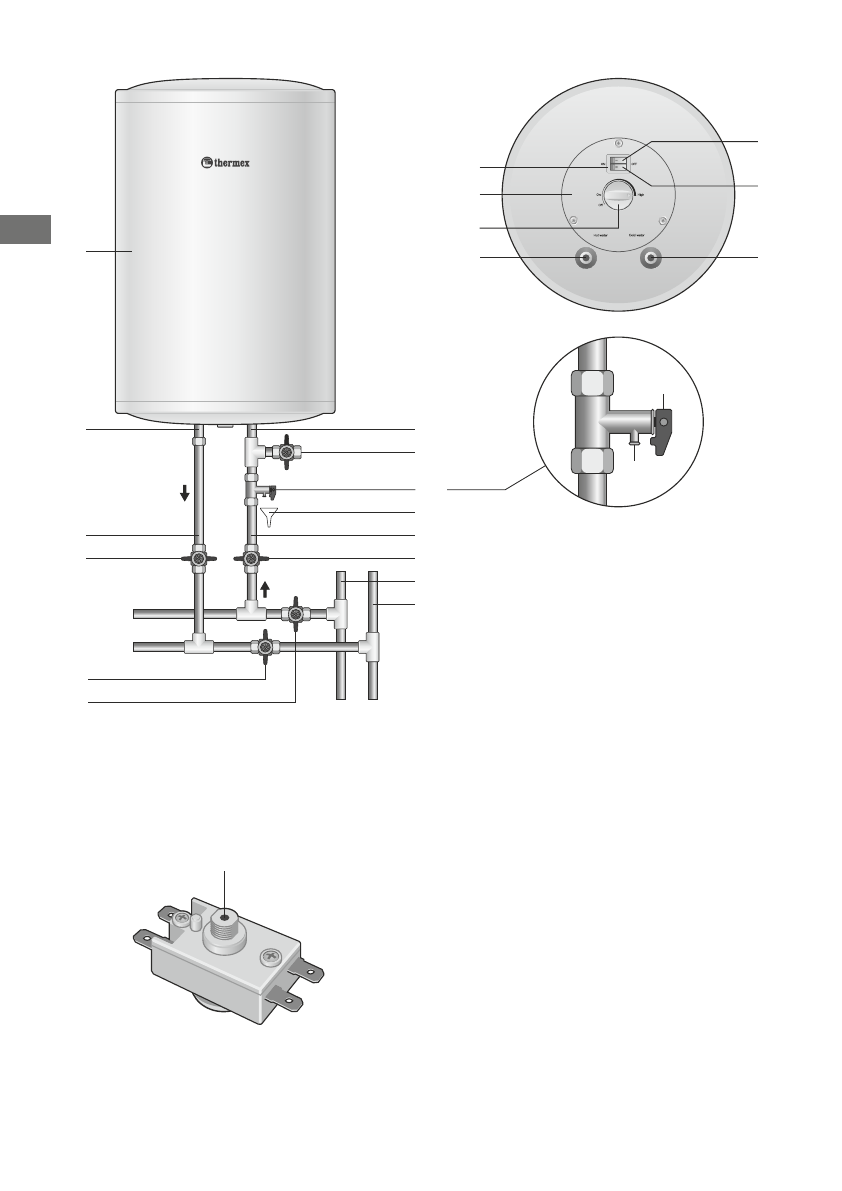
Attēls
1
Pieslēgšanas shēma un vadības elementi.
1
2
3
4
5
8
9
14
12
13
10
9
11
6
7
2
3
19
20
16
17
18
Attēls
2
Termoslēdza izvietojums.
15
EUS ārējs korpuss
Īscaurule karsta ūdena izlaišanai
(
ar sarkano gredzenu
)
Īscaurule auksta ūdens
piegādāšanai
(
ar zilo gredzenu
)
Izlaides ventilis
Drošības ventilis
Drošības ventiļa rokturis
Drošības ventiļa izlaiduma caurule
Drenāžas sistēma ūdens izlaišanai
kanalizācijā
Pievadīšanas sistēma
Aukstā ūdens padeves ventilis
Karstā ūdens padeves ventilis
Aukstā ūdens maģistrāle
Karstā ūdens maģistrāle
Karstā ūdens slēdzējventilis
Aukstā ūdens slēdzējventilis
Jaudas režīmu pārslēdzējs
Jaudas režīms I - 1.5 kW
Jaudas režims II - 1 kW
Aizsargvaks
Temperatūras regulēšanas rokturis
1.
2.
3.
4.
5.
6.
7.
8.
9.
10.
11.
12.
13.
14.
15.
16.
17.
18.
19.
20.
Nospiest
LV
Pirms uzkrajošā tipa elektriskā ūdens sildītāja pirmas izmantošanas uzmanīgi izlasiet šo
instrukciju, pievēršot īpašu uzmanību punktiem, kuri apzimēti ar simbolu „UZMANĪBU!”.
Šī instrukcija piemērota modeļiem ISP un IRP ar tilpumu no 30 l līdz 1
2
0 l. Jūsu ūdens sildītāja pilnais
nosaukums norādīts uz identifikācijas uzlīmes uz ūdens sildītāja korpusa.
Piegādes komplekts
Ūdens sildītajs
........................................................1
gab
.
GP tipa drošības vārts
.............................................1
gab.
Enkuri
.....................................................................2
gab
.
Lietošanas instrukcija
.............................................1
gab
.
Garantijas talons
....................................................1
gab
.
Iepakojums
.............................................................1
gab
.
Pielietošana
Ūdens sildītājs
(
turpmāk tekstā EŪS
)
ir paredzēts, lai nodrošinātu ar karsto ūdeni sadzīves un
rūpniecības objektus, kam ir ūdensvads ar auksto ūdeni ar nepieciešamiem parametriem.
EŪS ir jālieto aizvērtās apsildāmās teplās un nav paredzēts lietošanai nepārtrauktā plūstošā režīmā.
Galvenie tehniskie raksturojumi
0
.
05 /
0.6 MPa
2
3
0
V~
, 50
Hz
2
.5
kW
1/2
“
IPX4
+
3
...+
40°С
+18…+74°С
±5°С
Auksta ūdens maģistrāles spiediens
, min./max.
Barošanas elektrotikla parametri
–
vienfāzes sprieguma tikls, strāvas frekvence
Cauruļu elektrosildītāja
(
CES
)
jauda
Aukstā un karstā ūdens padeves īscauruļu vītnes diametrs
Ūdens sildītāja aizsardzības klass
Apkārtējas vides temperatūra lietošanai
Sasildāmā ūdens temperatūras regulēšanas diapazons
Temperatūras uzturēšanas precizitāte glabāšanas režīmā
Ražotājs saglabā visas tiesības mainit ūdens sildītāja konstrukciju un parametrus bez iepriekšēja
brīdinājuma.
Informācija par ražošanas datuma atzīmēšanas vietu un tā noskaidrošanu:
Izlaišanas datums ir kodēts ar unikālu sērijas numuru, kas ir ievietots uz identifikācijas uzlimes (stīkere),
kas atrodas preces korpusa apakšējā daļā. Preces sērijas numuram ir trīspadsmit cipari. Trešais un
ceturtais cipars sērijas numuram ir EŪS izlaišanas gads, piektais un sestais – mēnesis, septītais un
astotais – diena.
Darbības princips
EŪS ārējais korpuss izgatavots no plastmas, kas ir izturīga pret sitieniem. Iekšējā tvertne izgatavota no
augstas kvalitātes nerūsējošā tērauda, kas nodrošina antikorozijas iztūrību un pagarina lietošanas
termiņu. Attālums starp ārējām korpusam un iekšējai tvertnei ir pildīts ar modernu ekoloģiski tīru
LV
47
46













