Термекс IRP 80 V - Инструкция по эксплуатации - Страница 38

Водонагреватели Термекс IRP 80 V - инструкция пользователя по применению, эксплуатации и установке на русском языке. Мы надеемся, она поможет вам решить возникшие у вас вопросы при эксплуатации техники.

Если остались вопросы, задайте их в комментариях после инструкции.

"Загружаем инструкцию", означает, что нужно подождать пока файл загрузится и можно будет его читать онлайн. Некоторые инструкции очень большие и время их появления зависит от вашей скорости интернета.
Страница:
/ 64
Загружаем инструкцию
background image

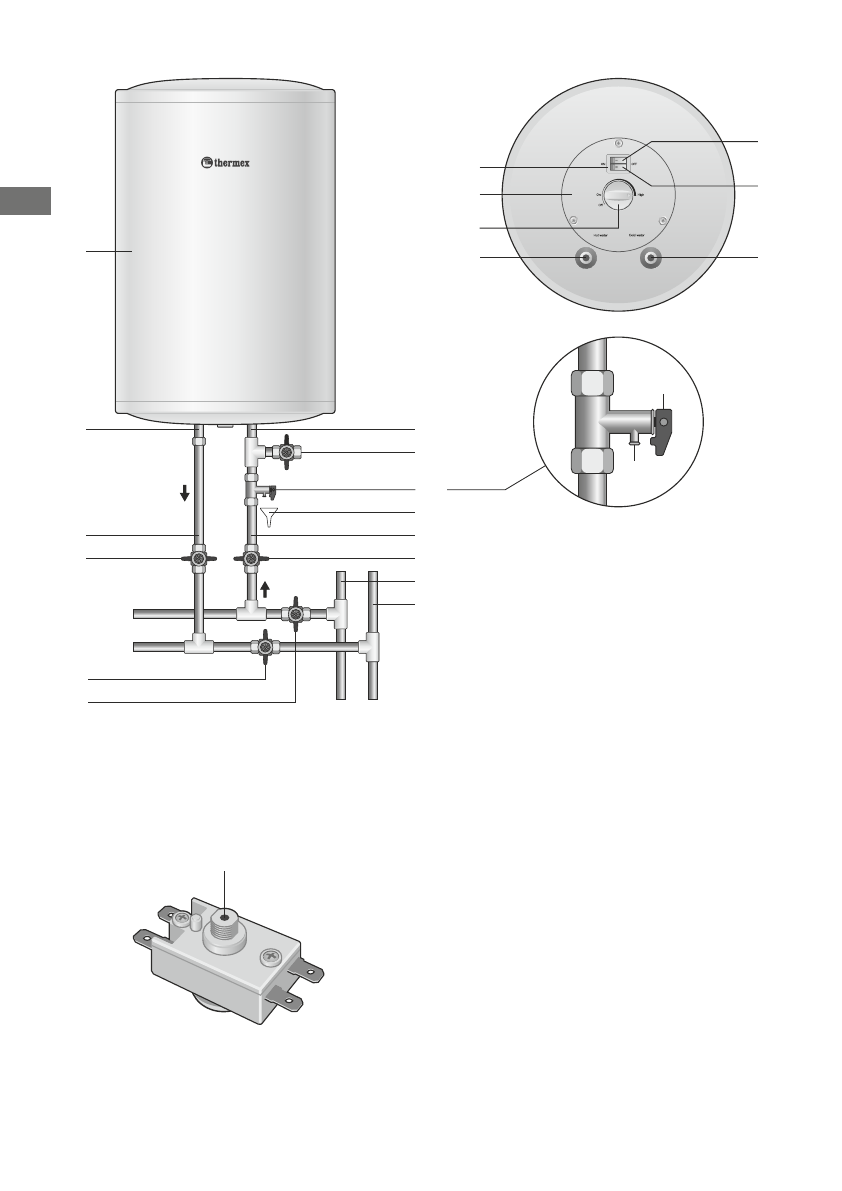
Joonis 1

Ühendusskeem ja juhtosad

1

2

3

4

5

8

9

14

12

13

10

9

11

6

7

2

3

19

20

16

17

18

Joonis 2

Termolüliti nupu asukoht

15

Elektriboileri kere

Sooja vee väljavoolutoru (punase 
rõngaga)/

Külma vee sisendtoru (sinise 
rõngaga)/

Äravooluventiil

Turvaventiil

Turvaventiili kang

Turvaventiili väljundtoru

Drenaaž kanalisatsiooni

Juurdevoolutoru

Külma vee ventiil

Kuuma vee ventiil

Külmaveetrass

Kuumaveetrass

Kuuma vee sulgurventiil

Külma vee sulgurventiil

Võimsusastmete lüliti

Võimsusaste I - 1,5 kW

Võimsusaste II - 1 kW

Kaitseklapp

Temperatuuri reguleerimishoob

1.

2.

3.

4.

5.

6.

7.

8.

9.

10.

11.

12.

13.

14.

15.

16.

17.

18.

19.

20.

Vajutada

EE

Enne  veeboileri  esimest  kasutust  lugege  käesolev  juhend  tähelepanelikult    läbi  ning 
pöörake erilist tähelepanu punktidele, mis on märgistatud sümboliga "TÄHELEPANU!”

Käesolev juhend laieneb veeboileri 30-1

2

0 liitrise mahuga ISP ja IRP mudelitele Soetatud veeboileri 

mudeli täisnimetuse leiab veeboileri kerel olevalt märgiskleebiselt.

Tarnekomplekt

Veeboiler

...................................................................

1 tk.

GP-tüüpi turvaventiil

..................................................

1 tk.

Kinnituskonksud

........................................................

2 tk.

Kasutusjuhend

..........................................................

1 tk.

Garantiitalong  

...........................................................

1 tk.

Pakend

......................................................................

1 tk.

Kasutusotstarve

Soojaveeboiler  (edaspidi  veeboiler)  on  mõeldud  vee  soojendamiseks  ja  säilitamiseks  kodu-  ja 
tööstusobjektides, mis on varustatud vajalike parameetritega külmaveetrassiga.

Veeboilerit  peab  kasutama  köetud  siseruumides  ning  see  ei  ole  mõeldud  tööks  pidevas 
läbivoolurežiimis.

Peamised tehnilised näitajad

0

.

05 /

 0.6 MPa

2

3

V~

, 50 

Hz

2

.5

 кВт

1/2

IPX4

+

3

...+

40°С

+18…+74°С

 ±5°С

Külmaveetrassi surve, min/max

Vooluvõrk - ühefaasiline, pinge, sagedus 

Toruküttekeha (elektritenni) võimsus

Külma ja kuuma vee muhvide diameeter

Veeboileri ohutusklass

Kasutus keskonna temperatuuril vahemikus 

Vee kuumutamise temperatuuri reguleerimisvahemik

Veetemperatuuri hoidmise täpsus säilitusrežiimis

Tootja  jätab  endale  õiguse  viia  veeboileri  ülesehitusse  ja  iseloomustusse  muudatusi  eelneva  
teatamiseta.

Info valmistamiskuupäeva pealekandmisest ja määramise viisist:

Veeboileri  väljalaskekuupäev  on  kodeeritud  unikaalsesse  seerianumbrisse,  mis  on  näidatud 
märgiskleebisel, mis on kleebitud boileri alumisele osale. Seerianumber koosneb kolmeteistkümnest 
numbrist. Seerianumbri kolmas ja neljas number märgistavad boileri väljalaskeaastat, viies ja kuues - 
väljalaskekuud, seitsmes ja kaheksas - väljalaskepäeva.

Töö põhimõte

Veeboileri  kere  on  löögikindlast  plastikust  Siseanum  valmistatakse  kõrgekvaliteetsest  roostevabast 
terasest, mistõttu mahuti on roostetamiskindel ning pika tööeaga. Siseanuma ja kere vaheline ala on 
täidetud  vahtpolüuretaaniga  -  kaasaegse  ja  keskkonnasõbraliku  soojusisolatsiooniga,  mis  hoiab 

EE

39

38

Полезные видео

Характеристики

Оцените статью
tehnopanorama.ru
Остались вопросы?

Не нашли свой ответ в руководстве или возникли другие проблемы? Задайте свой вопрос в форме ниже с подробным описанием вашей ситуации, чтобы другие люди и специалисты смогли дать на него ответ. Если вы знаете как решить проблему другого человека, пожалуйста, подскажите ему :)

Задать вопрос

Часто задаваемые вопросы
Как посмотреть инструкцию к Термекс IRP 80 V?
Необходимо подождать полной загрузки инструкции в сером окне на данной странице
Руководство на русском языке?
Все наши руководства представлены на русском языке или схематично, поэтому вы без труда сможете разобраться с вашей моделью
Как скопировать текст из PDF?
Чтобы скопировать текст со страницы инструкции воспользуйтесь вкладкой "HTML"