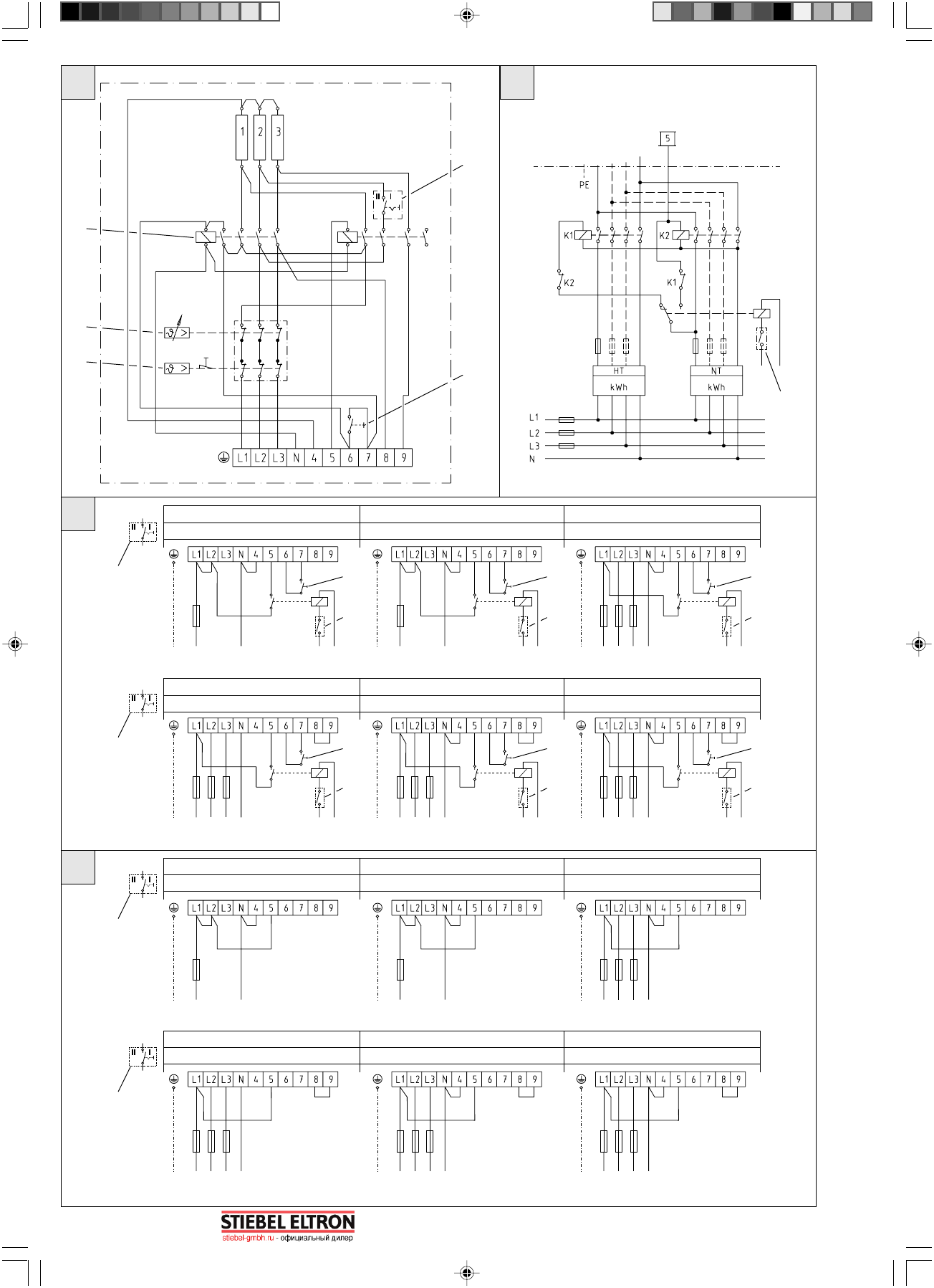
Водонагреватели Stiebel Eltron SHW 300 S 1585х700х815 мм, 91 кг G 1”/G 1” 182121 - инструкция пользователя по применению, эксплуатации и установке на русском языке. Мы надеемся, она поможет вам решить возникшие у вас вопросы при эксплуатации техники.
Если остались вопросы, задайте их в комментариях после инструкции.
"Загружаем инструкцию", означает, что нужно подождать пока файл загрузится и можно будет его читать онлайн. Некоторые инструкции очень большие и время их появления зависит от вашей скорости интернета.

5
a
a
a
a
a
H
J
PE
L1 L2 L3 N
3/N/PE ~ 400 V
PE
L1 L2 L3 N
3/N/PE ~ 400 V
PE
L1 L2 L3 N
3/N/PE ~ 400 V
PE
L
N
1/N/PE ~ 230 V
PE
L
N
1/N/PE ~ 230 V
PE
L1 L2 L3 N
3/N/PE ~ 400 V
PE
L1 L2 L3 N
3/N/PE ~ 400 V
PE
L1 L2 L3 N
3/N/PE ~ 400 V
PE
L1 L2 L3 N
3/N/PE ~ 400 V
PE
L
N
1/N/PE ~ 230 V
PE
L
N
1/N/PE ~ 230 V
PE
L1 L2 L3 N
3/N/PE ~ 400 V
K
2/4 kW
4/4 kW
2/6 kW
I
II
I
3/6 kW
4/6 kW
6/6 kW
I
I
II
2 kW
(4 kW)
4 kW
(4 kW)
2 kW
(6 kW)
I
II
I
3 kW
(6 kW)
4 kW
(6 kW)
6 kW
(6 kW)
I
I
II
c
a
e
d
b
I
232
4.
06
473
8.
02
7570.02
7571.02
a
c
a
c
c
c
b
b
b
b
b
b
3 x 2000 W / 230 V
240394-34664-8275 SHW 200-400 S.pmd
13.12.2007, 11:25
5
www.stiebel-gmbh.ru • info@stiebel-gmbh.ru • +7 (495) 565-34-82
г. Москва, Каширский проезд, д. 17, строение 5