Водонагреватели Gorenje GBH50 - инструкция пользователя по применению, эксплуатации и установке на русском языке. Мы надеемся, она поможет вам решить возникшие у вас вопросы при эксплуатации техники.
Если остались вопросы, задайте их в комментариях после инструкции.
"Загружаем инструкцию", означает, что нужно подождать пока файл загрузится и можно будет его читать онлайн. Некоторые инструкции очень большие и время их появления зависит от вашей скорости интернета.

5
KK
ЖИНАҚТАУ
Жылытқыш су жинау орындарына барынша жақын орнатылуы керек.
Сужылытқышты ванна немесе душ бар жайларда жинақтау барысында міндетті
түрде IEC 60364-7-701 (VDE 0100, 701 бөлімі) стандартының талаптарын ұстану
қажет. Қабырғаға оны 8 мм диаметрлі минимальді номинальді қабырғалық
бұрандалары көмегімен бекітіңіз. Жылытқыш ілінетін жерлердегі осал
жүккөтергіші бар қабырғалары мен еденді тиісті бекіту қажет. Су жылытқышты
тек көлденең қабырғаға орнатуға болады. Магний анодының ең жақсы бақылауы
мен өзгеруі үшін сужылытқыштың жоғарғы шеті мен төбенің арасында жеткілікті
орын қалдыруды ұсынамыз (жалғану көлемінің суретіндегі G көлемін қараңыз).
Кері жағдайда сужылытқышты жөндеу барысында қабырғадан шешіп алу қажет.
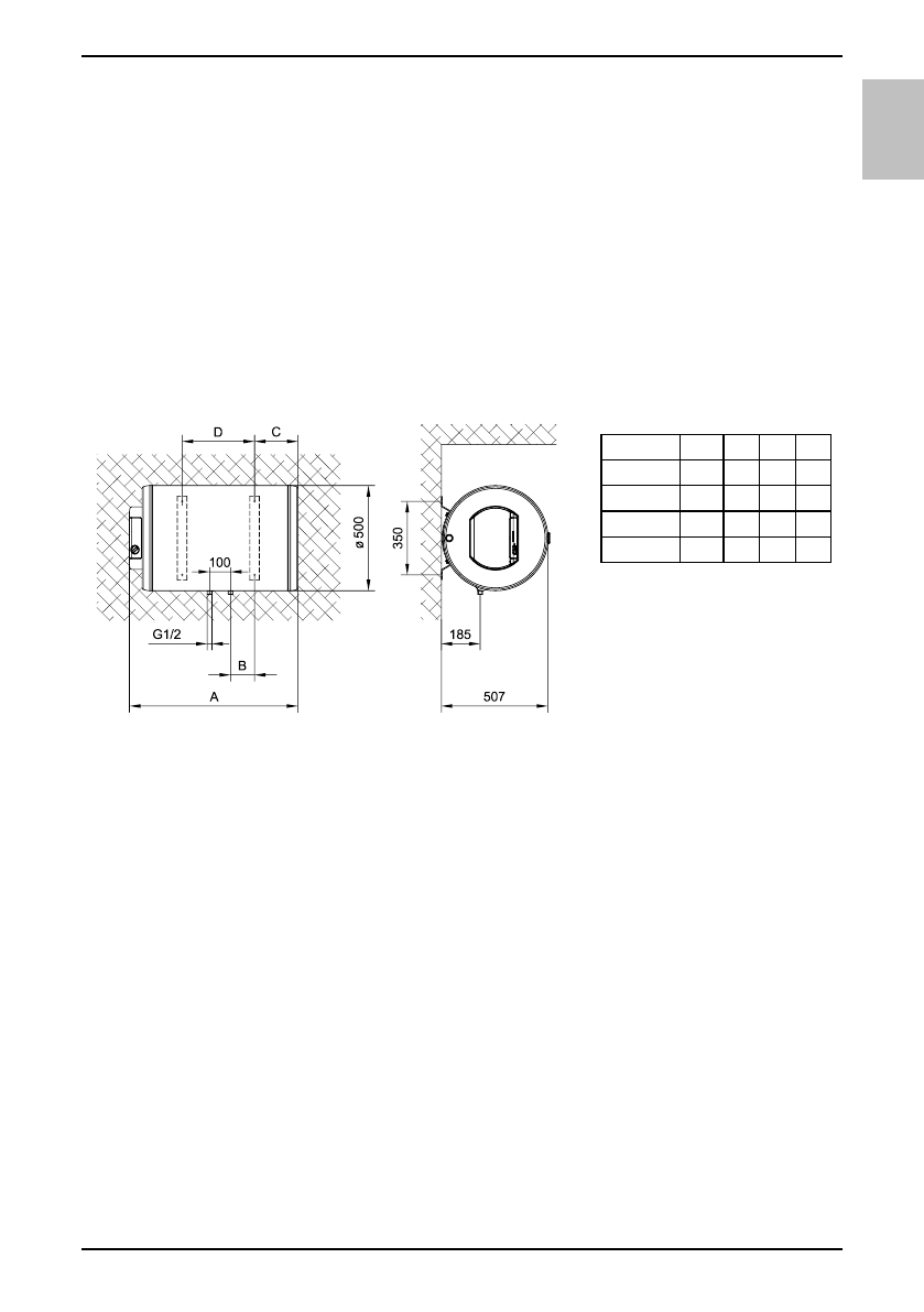
Жылытқыштың
біріктірктіретін және
жинақтайтын көлемдері [мм]
СУ ҚҰБЫРЫНА ҚОСЫЛУ
Суды жеткізу және бұрып жіберу түрлі түстермен белгіленген. Көк – суық су,
қызыл – ыстық су. Жылытқышты су құбырына екі тәсілмен қосуға болады. Іске
қосудың жабық жинақтауыш жүйесі судың жиналуын бірнеше жерден, ал ашық
ағын жүйесі – тек бір жерден қамтамасыз етеді.
Қосудың таңдалған жүйесіне қатысты тиісті қоспалауыш батареяларын орнату
қажет. Ашық ағын жүйесінде жылытқыштың алдына, су құбырында су болмаған
жағдайда, қазаннан судың ағып кетуін болдырмайтын кері клапан орнату қажет.
Іске қосудың осындай жүйесі барысында ағын қоспалауыш пайдалану қажет.
Жылытқышта судың мөлшері жылыту салдарынан ұлғаяды, бұл қоспалауыштың
құбырынан судың ағып кетуін тудырады. Сіз кранды қатты бұрап,
қоспалауыштан суды жауып тастауға тырыспаңыз, себебі бұл қоспалауыштың
ақаулануын тудырады. Іске қосудың жабық жинақтау жүйесінде судың жиналу
орындарында жинақтау қоспалауыштарын қолдану қажет. Жұмыстың қауіпсіздігі
себебінен суасты құбырына міндетті түрде қысымның 0,1 МПа (1 бар)
номинальдіден көп көтерілуін болдырмайтын сақтандырғыш вентиль немесе
сақтандырғыш тобын қоса орнату қажет. Сақтандырғыш клапанындағы шығару
тесігінде міндетті түрде атмосфералық қысымға шығысы болуы керек.
A
B
C
D
GBH 50
583 25 187 145
GBH 80
803 115 207 345
GBH 100 948 193 202 495
GBH 120 1103 265 207 645
Характеристики
Остались вопросы?Не нашли свой ответ в руководстве или возникли другие проблемы? Задайте свой вопрос в форме ниже с подробным описанием вашей ситуации, чтобы другие люди и специалисты смогли дать на него ответ. Если вы знаете как решить проблему другого человека, пожалуйста, подскажите ему :)












