Водонагреватели Gorenje GBH50 - инструкция пользователя по применению, эксплуатации и установке на русском языке. Мы надеемся, она поможет вам решить возникшие у вас вопросы при эксплуатации техники.
Если остались вопросы, задайте их в комментариях после инструкции.
"Загружаем инструкцию", означает, что нужно подождать пока файл загрузится и можно будет его читать онлайн. Некоторые инструкции очень большие и время их появления зависит от вашей скорости интернета.

32
UK
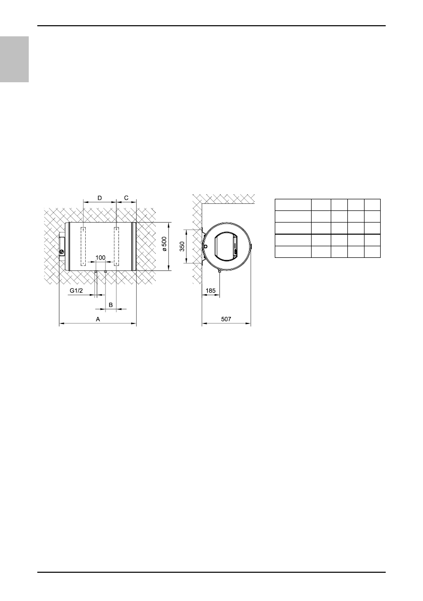
МОНТАЖ
Водонагрівач має бути установлений якомога ближче до місця забору води, щоб
не втрачати тепло через довгі шланги. При монтажі водонагрівача у приміщенні,
де встановлені ванна або душ, слід обов’язково дотримуватися вимог стандарту
IEC 60364-7-701 (VDE 0100, частина 701). Закріпіть прилад на стінці гвинтами
діаметром мінімум 8 мм. Стіну, яка не витримає вагу нагрівача з водою,
помножену на три, слід укріпити. Нагрівач може бути закріплений тільки
горизонтально на стіні. Для полегшення перевірки та заміни магнієвого аноду ми
рекомендуємо залишити мінімальну відстань «G» над водонагрівачем, та також
принаймні 300 мм вільного простору під водонагрівачем (дивіться схему і
таблицю з розмірами).
Приєднувальні і монтажні
розміри водонагрівача [мм]
ПІДКЛЮЧЕННЯ ДО ВОДОПРОВІДНОЇ
МЕРЕЖІ
На трубах водонагрівача кольором позначені вхід і вихід води. Постачання
холодної води позначено синім кольором, вихід гарячої позначений червоним. З
міркувань безпеки вхідну трубу необхідно обладнати запобіжним клапаном, який
запобігає перевищенню номінального тиску в баці більше, ніж 0,1 МПа. Підігрів
води у водонагрівачі спричиняє підвищення тиску в баці до рівня, обмеженого
запобіжним клапаном. Вода не може повертатися у водопровідну систему, тому
результатом цього може бути крапання на виході запобіжного клапана. Цю воду
можна спрямувати у каналізаційну мережу, під’єднавши дренажну трубку до
запобіжного клапана. Під’єднана трубка до виходу запобіжного клапану, повинна
бути встановлена вертикально і не піддаватись впливу низьких температур. У
випадку, якщо існуюча система трубопроводу не дозволяє відводити воду, яка
крапає, в каналізацію, можна встановити 3-літровий розширювальний контейнер
на вхідну трубку водонагрівача. Через кожні 14 днів необхідно переконатися, що
зворотний-запобіжний клапан функціонує належним чином. Для перевірки
необхідно відкрити вихід зворотного-запобіжного клапана, повернувши важіль
A
B
C
D
GBH 50
583 25 187 145
GBH 80
803 115 207 345
GBH 100 948 193 202 495
GBH 120 1103 265 207 645
Характеристики
Остались вопросы?Не нашли свой ответ в руководстве или возникли другие проблемы? Задайте свой вопрос в форме ниже с подробным описанием вашей ситуации, чтобы другие люди и специалисты смогли дать на него ответ. Если вы знаете как решить проблему другого человека, пожалуйста, подскажите ему :)












