Водонагреватели Gorenje GBH50 - инструкция пользователя по применению, эксплуатации и установке на русском языке. Мы надеемся, она поможет вам решить возникшие у вас вопросы при эксплуатации техники.
Если остались вопросы, задайте их в комментариях после инструкции.
"Загружаем инструкцию", означает, что нужно подождать пока файл загрузится и можно будет его читать онлайн. Некоторые инструкции очень большие и время их появления зависит от вашей скорости интернета.

12
RO
spaţiul în care se află cada de baie sau cabina de duş. este obligatoriu să respectaţi
cerinţele prevăzute în standardul IEC 60364-7-701 (VDE 0100 Teil 701). Acesta
trebuie montat pe perete folosind buloane de scelement cu un diametru de minim 8
mm. Pereţii trebuie să aibă o foarte bună portabilitate acolo unde boilerul suspendat
va fi fixat. Boilerul se montează doar în poziţie orizontală pe perete. Pentru a efectua
mai uşor verificarea şi pentru a putea schimba anodul de magneziu, vă recomandăm
ca, între partea superioară a boilerului şi plafon, să lăsaţi un spaţiu suficient (vezi
dimensiunea G în schiţa privind dimensiunile necesare conectării). În caz contrar,
când se va face servisul curent al boilerului, va trebui să-l demontaţi de pe perete.
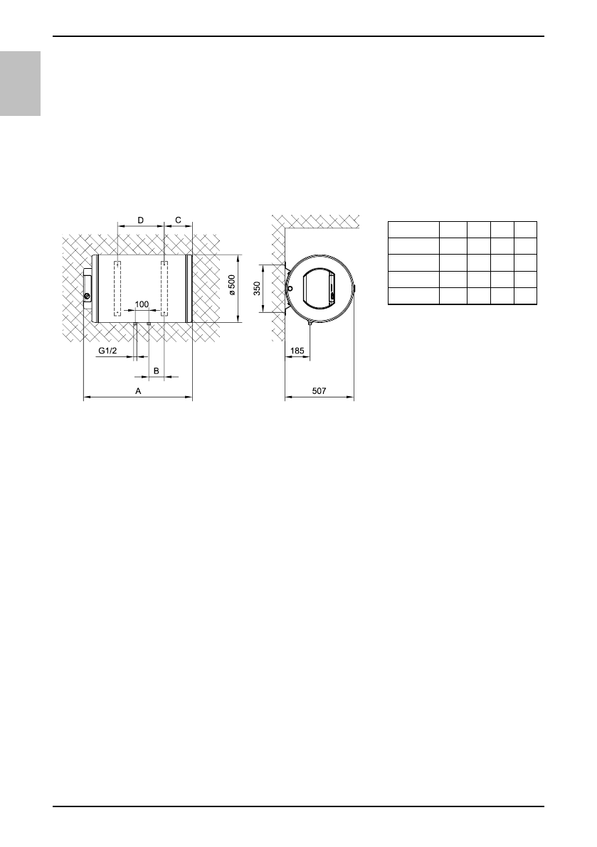
Măsurători de racordare şi
montare a boilerului [mm]
CONECTAREA LA SURSA DE
ALIMENTARE CU APĂ
Ţevile de alimentare cu apă şi de evacuare a apei din boiler sunt marcate cu culori diferite.
Ţeava de aducţiune a apei reci este marcată cu albastru, iar cea de evacuare a apei calde
cu roşu.
Boilerul poate fi racordat la reţeaua de alimentare cu apă în două moduri. Sistemul închis
de branşare sub presiune, permite distribuirea apei calde în mai multe locuri de utilizare a
aces-teia deodată. În funcţie de sistemul de conectare ales se vor cumpăra bateriile
corespunzătoare.
În cazul recurgerii la sistemul deschis, fără compresie, va trebui montat un ventil de
reţinere, care împiedică scurgerea apei din boiler în situaţiile de lipsă de apă sau de
întrerupere temporară a alimentării cu apă de la reţea. În cazul aplicării acestui sistem de
branşare, se impune utilizarea unei baterii de transvazare. Datorită încălzirii, volumul apei
din boiler se măreşte, ceea ce provoacă picurarea apei din ţeava bateriei. Strângerea până
la refuz a robinetului nu opreşte picurarea, ci dimpotrivă, duce la deteriorarea bateriei.
În cazul sistemului închis de branşare sub presiune (racord de presiune), va trebui să
folosiţi baterii sub presiune. Pentru a se asigura o funcţionare lipsită de orice fel de riscuri,
pe ţeava de intrare a apei în boiler va trebui obligatoriu să fie montat un ventil sau un grup
de siguranţă, prin care se va evita creşterea presiunii din cazan cu mai mult de 0,1 MPa
(1 bar) peste valoarea nominală. Orificiul de scurgere a ventilului de siguranţă trebuie să
aibă în mod obligatoriu ieşire la presiunea atmosferică. Încălzirea apei din boiler duce la
A
B
C
D
GBH 50
583 25 187 145
GBH 80
803 115 207 345
GBH 100 948 193 202 495
GBH 120 1103 265 207 645
Характеристики
Остались вопросы?Не нашли свой ответ в руководстве или возникли другие проблемы? Задайте свой вопрос в форме ниже с подробным описанием вашей ситуации, чтобы другие люди и специалисты смогли дать на него ответ. Если вы знаете как решить проблему другого человека, пожалуйста, подскажите ему :)












