Водонагреватели Electrolux GWH 14 NanoPlus 2.0 НС-1173664 - инструкция пользователя по применению, эксплуатации и установке на русском языке. Мы надеемся, она поможет вам решить возникшие у вас вопросы при эксплуатации техники.
Если остались вопросы, задайте их в комментариях после инструкции.
"Загружаем инструкцию", означает, что нужно подождать пока файл загрузится и можно будет его читать онлайн. Некоторые инструкции очень большие и время их появления зависит от вашей скорости интернета.

водонагреватели
7
6
• открутите сливную заглушку (7 на схеме
устройства, рис. 4), для того, чтобы из
водонагревателя вылилась вся вода;
• после полного опорожнения системы
закройте краны горячей воды и устано-
вите сливную заглушку. Для повторного
включения водонагревателя откройте
впускной кран подвода холодной воды к
водонагревателю.
Предотвращение образования накипи
Если водонагреватель подключен к водо-
проводу с очень жесткой водой, то со вре-
менем может наблюдаться снижение темпе-
ратуры горячей воды или снижение подачи
горячей воды. Это говорит об образовании
накипи в теплообменнике. Для того чтобы
уменьшить влияние накипи на работу водо-
нагревателя, рекомендуется получать воду
нужной температуры, не смешивая горячую
и холодную воду с помощью смесителя, а
установив нужную температуру с помощью
регуляторов температуры и мощности.
Примечание:
Удаление накипи производится пред-
назначенными для этого химическими
препаратами. Эту работу должен выпол-
нять квалифицированный специалист.
Рекомендации по техническому обслужи-
ванию
Контроль безопасности водонагревателя
должен проводиться ежегодно, в соответ-
ствии со стандартами, действующими в той
стране, где эксплуатируется водонагрева-
тель, независимо от частоты его использова-
ния. Это особенно касается контроля за про-
цессом сгорания газа в основной горелке.
Техническое обслуживание водонагревателя
должно проводиться квалифицированным
специалистом.
Кроме периодической очистки основной
горелки и теплообменника, рекомендуется
проводить регулярную общую очистку водо-
нагревателя с целью удаления загрязнения
продуктами сгорания.
Эту работу должен выполнять квалифициро-
ванный специалист по техническому обслу-
живанию.
Прочие рекомендации
• Ни в коем случае не вносите никаких
изменений в конструкцию водонагрева-
теля самостоятельно.
Для внесения изменений в водонагрева-
тель или его оборудование необходимо
обратиться в соответствующую специали-
зированную организацию.
• Прикосновение к поверхности кожуха
водонагревателя вблизи панели управле-
ния может привести к ожогу.
• В водонагревателе имеется датчик, кон-
тролирующий отвод продуктов сгорания
газа. В случае нарушения процесса отво-
да продуктов сгорания подача газа на
горелку автоматически перекрывается.
Для возобновления подачи газа прове-
трите помещение, подождите 10 минут и
откройте кран горячей воды.
В случае повторного отключения вызо-
вите специалиста из службы технической
поддержки для проверки дымохода.
ДЕЙСТВИЯ ПРИ ВОЗНИКНОВЕНИИ
АВАРИЙНОЙ СИТУАЦИИ
При возникновении аварийной ситуации во
время работы аппарата необходимо:
1) закрыть запорный газовый кран на входе
в аппарат;
2) закрыть запорный кран холодной воды на
входе в аппарат(при возникновении течи
воды);
3) вызвать специализированную сервисную
организацию для ремонта аппарата
При отключении аппарата датчиком тяги
необходимо закрыть кран горячей воды
и проветрить помещение. Повторный
запуск аппарата будет возможен после
остывания термореле. При повторяю-
щихся отключениях аппарата необходи-
мо обратиться в специализированную
сервисную организацию для устранения
неисправности системы газоотведения.
Отключение датчика тяги и некомпетент-
ное обращение с ним не допускаются и
могут привести к отравлению угарным
газом.
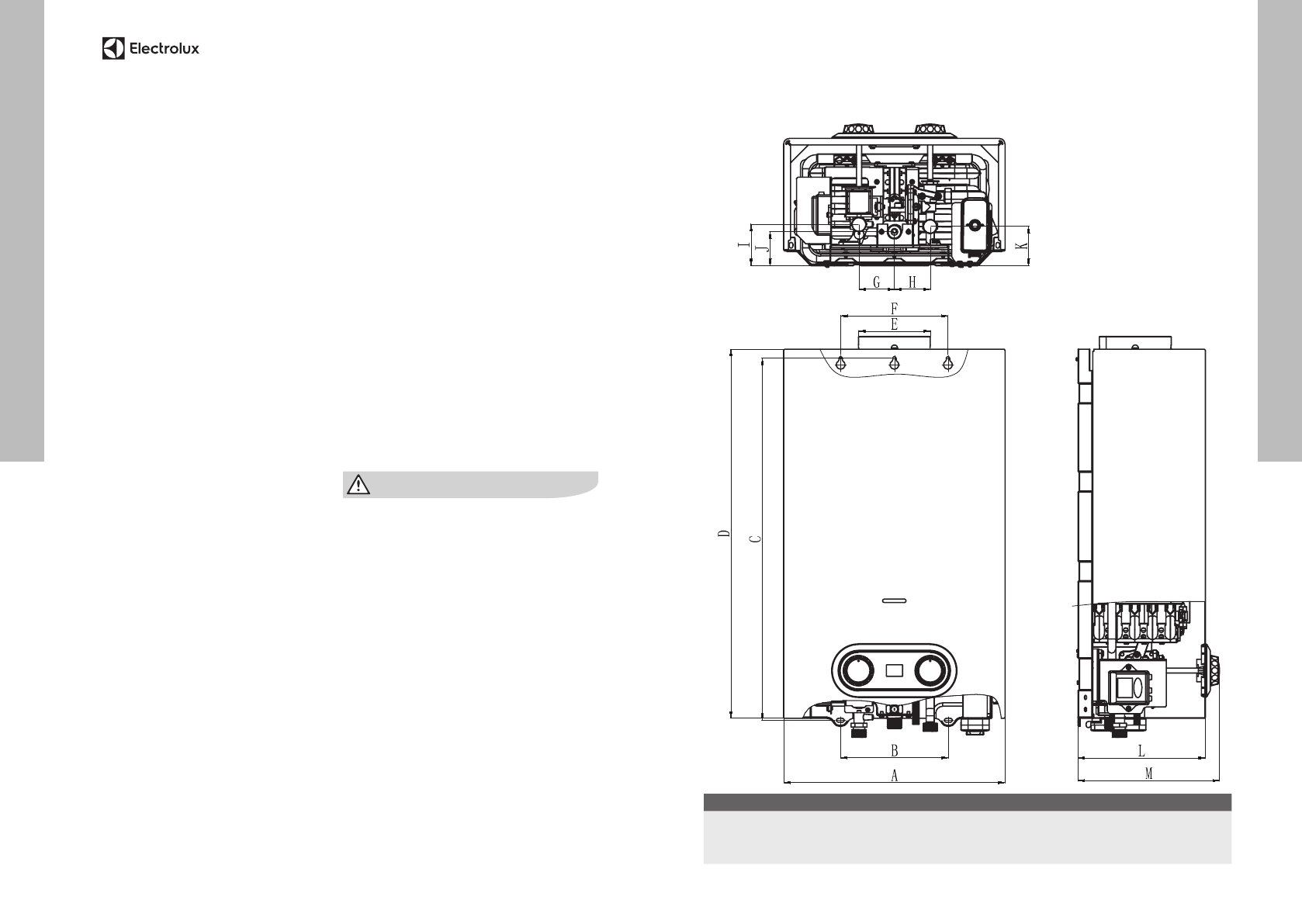
Описание водонагревателя
Размеры водонагревателя
Подключение горячей воды должно выполняться с помощью гибкой подводки.
Модель
A
B
C
D
E
F
G
H
I
J
K
L
M
GWH 10 NanoPlus 2.0
330 160 540 550 Ø108 160 53 53 62 50 58 189 212
GWH 12 NanoPlus 2.0
350 188 605 610 Ø108 184 53 47 60 48 58 183 205
GWH 14 NanoPlus 2.0
400 220 605 663 Ø125 220 53 53 65 58 54 198 220
Содержание
- 3 Панель управления; Эксплуатация; • Для увеличения температуры поверните; Выключение; На работы по уходу и техническому; да холодной воды в водонагреватель
- 4 Описание водонагревателя; Модель
- 5 Схема устройства водонагревателя; Размер соединения
- 6 Монтаж водонагревателя
- 7 Устранение неисправностей; Водонагреватель проточный газовый; Неисправность; Утилизация; Срок службы составляет 5 лет.; Гарантия; Сертификация; Товар сертифицирован на территории
- 14 Га ран тий ный та лон













