Водонагреватели Electrolux GWH 14 NanoPlus 2.0 НС-1173664 - инструкция пользователя по применению, эксплуатации и установке на русском языке. Мы надеемся, она поможет вам решить возникшие у вас вопросы при эксплуатации техники.
Если остались вопросы, задайте их в комментариях после инструкции.
"Загружаем инструкцию", означает, что нужно подождать пока файл загрузится и можно будет его читать онлайн. Некоторые инструкции очень большие и время их появления зависит от вашей скорости интернета.

20
водонагрівачі
21
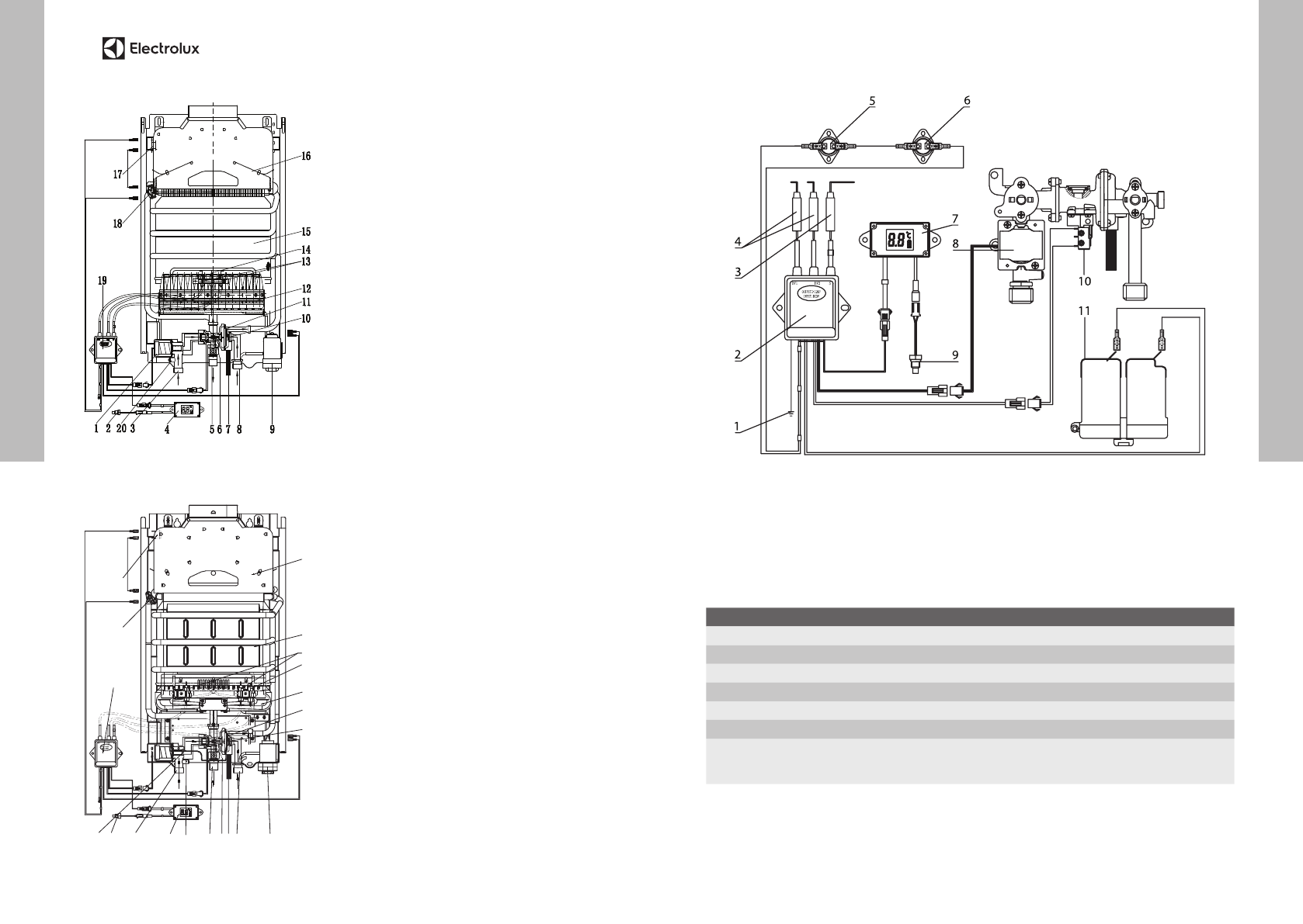
Схема пристрою водонагрівача
1. Соленоид газового вузла.
2. Датчик температури гарячої води.
3. Патрубок підведення природного газу.
4. Дисплей.
5. Патрубок виведення гарячої води.
6. Мікроперемикач.
7. Клапан зливу води / обмежувач
тиску.
8. Патрубок підведення холодної води.
9. Відсік для батарейок.
10. Стабілізатор води.
11. Мембрана і шток водяного вузла.
12. Пальник.
13. Електрод іонізації.
14. Електроди розпалу.
15. Теплообмінник (мідний, вироблений за
технологією OXYGEN FREE).
16. Колектор відведення згорілих газів
з патрубком для приєднання
димоходу.
17. Датчик захисту від перегріву газів, що
відводяться.
18. Датчик захисту від перегріву води.
19. Модуль електроніки.
20. Штуцер перевірки тиску газу.
1. Соленоид газового вузла.
2. Датчик температури гарячої води.
3. Патрубок підведення природного газу.
4. Дисплей.
5. Патрубок виведення гарячої води.
6. Мікроперемикач.
7. Клапан зливу води / обмежувач
тиску.
8. Патрубок підведення холодної води.
9. Відсік для батарейок.
10. Стабілізатор води.
11. Мембрана і шток водяного вузла.
12. Пальник.
13. Електрод іонізації.
14. Електроди розпалу.
15. Теплообмінник (мідний, вироблений за
технологією OXYGEN FREE).
16. Колектор відведення згорілих газів
з патрубком для приєднання
димоходу.
17. Датчик захисту від перегріву
відводяться газів.
18. Датчик захисту від перегріву води.
19. Модуль електроніки.
20. Штуцер перевірки тиску газу.
1 2
3
4
5 6 7 8
9
10
11
12
13
14
15
16
17
18
19
20
Мал. 4
Мал. 4
Електрична схема
1. Клема для підключення заземлення.
2. Модуль управління.
3. Електрод іонізації.
4. Електроди розпалу.
5. Датчик захисту від перегріву газів, що
відводяться.
6. Датчик захисту від перегріву води.
7. Дисплей.
8. Соленоїд газового вузла.
9. Датчик температури гарячої води.
10. Мікроперемикач.
11. Відсік для батарейок.
Розмір з’єднання
В апараті
Зовнішні
Трубопровід
Природний газ
1/2"
1/2"
Холодна вода (вхід)
1/2"
1/2"
Гаряча вода (вихід)
1/2"
1/2"
Димохід
Діаметр димоходу
GWH 10/12
GWH 14
105 мм (внутрішній)
122 мм (внутрішній)
108 мм (зовнішній)
125 мм (зовнішній)
Содержание
- 3 Панель управления; Эксплуатация; • Для увеличения температуры поверните; Выключение; На работы по уходу и техническому; да холодной воды в водонагреватель
- 4 Описание водонагревателя; Модель
- 5 Схема устройства водонагревателя; Размер соединения
- 6 Монтаж водонагревателя
- 7 Устранение неисправностей; Водонагреватель проточный газовый; Неисправность; Утилизация; Срок службы составляет 5 лет.; Гарантия; Сертификация; Товар сертифицирован на территории
- 14 Га ран тий ный та лон













