Водонагреватели Electrolux GWH 14 NanoPlus 2.0 НС-1173664 - инструкция пользователя по применению, эксплуатации и установке на русском языке. Мы надеемся, она поможет вам решить возникшие у вас вопросы при эксплуатации техники.
Если остались вопросы, задайте их в комментариях после инструкции.
"Загружаем инструкцию", означает, что нужно подождать пока файл загрузится и можно будет его читать онлайн. Некоторые инструкции очень большие и время их появления зависит от вашей скорости интернета.

18
водонагрівачі
19
закрийте крани гарячої води і встановіть
зливну заглушку. Для повторного вклю-
чення водонагрівача відкрийте впуск-
ний кран підведення холодної води до
водонагрівача.
Попередження утворення накипу
Якщо водонагрівач підключений до водо-
проводу з дуже жорсткою водою, то з часом
може спостерігатися зниження температури
гарячої води або зниження подачі гарячої
води. Це говорить про утворення накипу в
теплообміннику. Для того щоб зменшити
вплив накипу на роботу водонагрівача,
рекомендується отримувати воду потрібної
температури, не змішуючи гарячу і холодну
воду за допомогою змішувача, а встановив-
ши потрібну температуру за допомогою
регуляторів температури і потужності.
Примітка:
Видалення накипу проводиться при-
значеними для цього хімічними препа-
ратами. Цю роботу повинен виконувати
кваліфікований фахівець.
Рекомендації з технічного обслуговування
Контроль безпеки водонагрівача пови-
нен проводитись щорічно, відповідно
до стандартів, що діють в тій країні, де
експлуатується водонагрівач, незалежно від
частоти його використання. Це особливо
стосується контролю за процесом згоряння
газу в основному пальнику.
Технічне обслуговування водонагрівача
повинно проводитись кваліфікованим
фахівцем.
Крім періодичної очистки основного паль-
ника і теплообмінника, рекомендується
проводити регулярне загальне очищення
водонагрівача з метою видалення забруд-
нення продуктами згоряння.
Цю роботу повинен виконувати
кваліфікований фахівець з технічного обслу-
говування.
Інші рекомендації
• Ні в якому разі не вносьте жодних змін в
конструкцію водонагрівача самостійно.
Для внесення змін до водонагрівач або
його обладнання необхідно звернутись у
відповідну спеціалізовану організацію.
• Дотик до поверхні кожуха водонагрівача
поблизу панелі управління може приве-
сти до опіку.
• У водонагрівачі є датчик, контролюючий
відведення продуктів згоряння газу. У разі
порушення процесу відведення продуктів
згоряння подача газу на пальник автома-
тично перекривається. Для відновлення
подачі газу провітріть приміщення, поче-
кайте 10 хвилин і відкрийте кран гарячої
води. У разі повторного відключення
викличте спеціаліста зі служби технічної
підтримки для перевірки димоходу.
ДІЇ ПРИ ВИНИКНЕННІ АВАРІЙНОЇ
СИТУАЦІЇ
При виникненні аварійної ситуації під час
роботи апарату необхідно:
1) закрити запірний газовий кран на вході в
апарат;
2) закрити запірний кран холодної води на
вході в апарат (при виникненні течі води);
3) викликати спеціалізовану сервісну
організацію для ремонту апарату
При відключенні апарату датчиком тяги
необхідно закрити кран гарячої води
і провітрити приміщення. Повторний
запуск апарату буде можливий після
охолодження термореле. При повторю-
ваних відключеннях апарату необхідно
звернутися в спеціалізовану сервісну
організацію для усунення несправності
системи газовідведення. Відключення
датчика тяги і некомпетентне поводження
з ним не допускаються і можуть привести
до отруєння чадним газом.
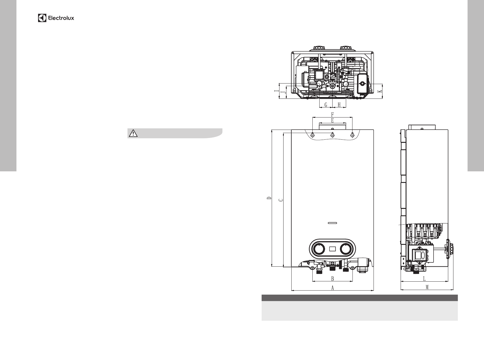
Опис водонагрівача
Розміри водонагрівача
Підключення гарячої води повинно виконуватися за допомогою гнучкого підведення.
Модель
A
B
C
D
E
F
G
H
I
J
K
L
M
GWH 10 NanoPlus 2.0
330 160 540 550 Ø108 160 53 53 62 50 58 189 212
GWH 12 NanoPlus 2.0
350 188 605 610 Ø108 184 53 47 60 48 58 183 205
GWH 14 NanoPlus 2.0
400 220 605 663 Ø125 220 53 53 65 58 54 198 220
Содержание
- 3 Панель управления; Эксплуатация; • Для увеличения температуры поверните; Выключение; На работы по уходу и техническому; да холодной воды в водонагреватель
- 4 Описание водонагревателя; Модель
- 5 Схема устройства водонагревателя; Размер соединения
- 6 Монтаж водонагревателя
- 7 Устранение неисправностей; Водонагреватель проточный газовый; Неисправность; Утилизация; Срок службы составляет 5 лет.; Гарантия; Сертификация; Товар сертифицирован на территории
- 14 Га ран тий ный та лон













