Водонагреватели Bosch WRD15-2 G/G23 - инструкция пользователя по применению, эксплуатации и установке на русском языке. Мы надеемся, она поможет вам решить возникшие у вас вопросы при эксплуатации техники.
Если остались вопросы, задайте их в комментариях после инструкции.
"Загружаем инструкцию", означает, что нужно подождать пока файл загрузится и можно будет его читать онлайн. Некоторые инструкции очень большие и время их появления зависит от вашей скорости интернета.

6
Технічні х
ара
ктеристики та габаритні
розміри
Therm 6000 O – 6 720 608 984 (2020/
09)
2.7
Габаритні
розм
іри
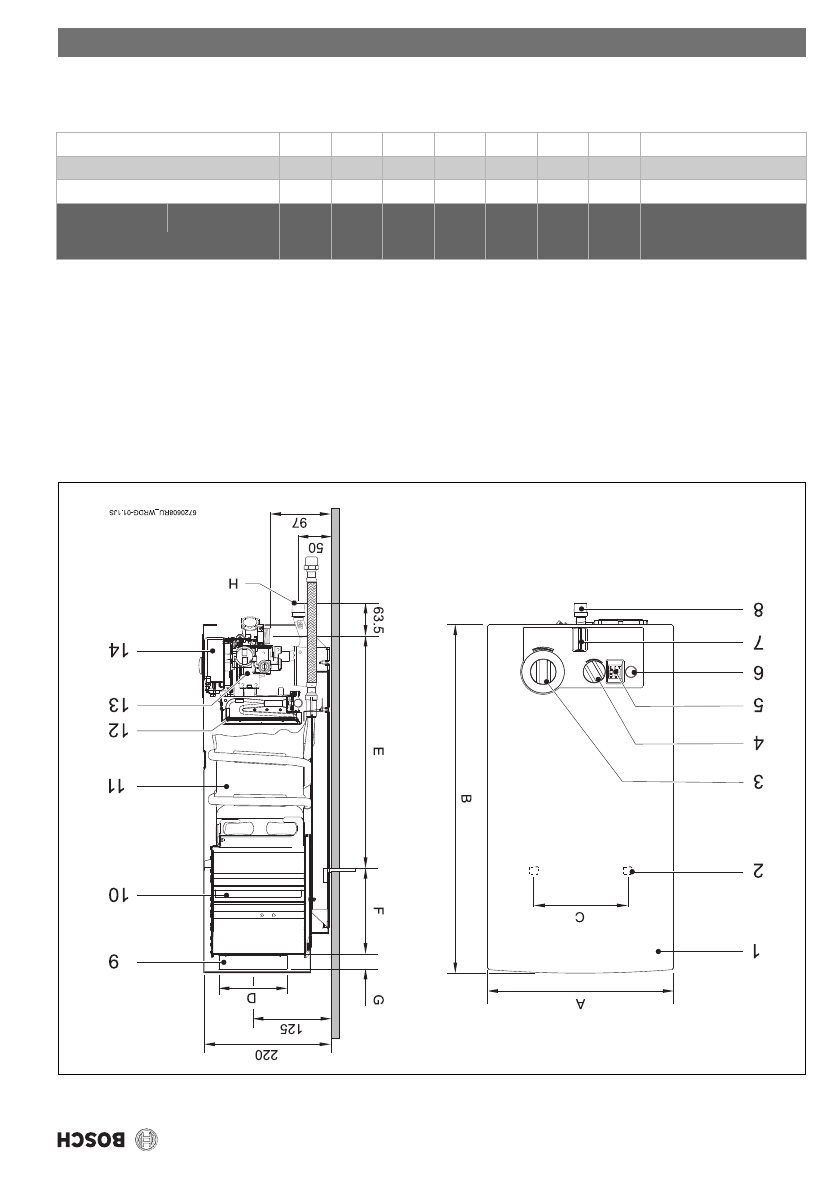
Мал. 1
[1]
Кожух
[2]
Отв
ір для кріпл
ення до ст
іни
[3]
Регулятор те
мп
ерату
ри/об
'єму
[4]
Регулятор п
отужності
[5]
Ци
фр
ови
й дисплей
[6]
Вимикач/індик
аторна лампочка низьког
о тиску води
[7]
Ін
дикаторна ламп
очка стану пал
ьника
[8]
Шту
цер підключе
нн
я газ
у
[9]
Підкл
ючення до газовивідної труби
[10]Ди
мохід з при
стр
оєм контролю
тяги
[11]Те
плообмі
нник
[12]Пальн
ик
[13]Газ
ови
й клап
ан
[14]Запалюва
льний блок
Габаритні розміри
(м
м)
A
B
C
D
E
F
G
H (Ø)
Природни
й газ
Скрапл
ений газ
WR
D10-2
G
31
0
58
0
228
112,5
463
60
25
¾”
WRD1
3-2
G
350
655
228
132,5
510
95
30
¾”
WR
D15-2
G
42
5
65
5
425
132,5
425
65
30
¾”
Таб
. 4
Габ
аритн
і розм
ір
и
Содержание
- 3 Опасно при появлении запаха газа; Знак
- 4 Пояснения символов и указания по технике безопасности; Инструктаж заказчика
- 5 Данные о приборе; Декларация о соответствии; Модель
- 6 воды; Природный газ; Габаритные размеры
- 7 Электросхема; Принцип действия
- 8 Технические характеристики; Символ
- 9 Эксплуатация; Цифровой индикатор; Перед вводом в эксплуатацию; Включение; Объем потока воды
- 10 Регулировка мощности; ▶ Повернуть поворотную ручку против часовой стрелки.; Опорожнение прибора; При наличии риска замерзания:; Предписания
- 11 Требования к помещению для монтажа
- 12 Монтаж прибора; Прибор
- 13 Подключение подачи воды; Принцип действия гидрогенератора
- 14 Сжиженный газ; Регулировка давления перед форсункой; Доступ к регулировочному винту; Точка измерения давления перед форсункой
- 15 Переоборудование на другой вид газа; оригинальные комплекты для; Регулярные работы по техобслуживанию; Проверка правильности функционирования; Давление перед форсункой
- 17 Устранение неисправностей; Неисправность
Характеристики
Остались вопросы?Не нашли свой ответ в руководстве или возникли другие проблемы? Задайте свой вопрос в форме ниже с подробным описанием вашей ситуации, чтобы другие люди и специалисты смогли дать на него ответ. Если вы знаете как решить проблему другого человека, пожалуйста, подскажите ему :)