Водонагреватели Bosch WR13-2 B/B23 - инструкция пользователя по применению, эксплуатации и установке на русском языке. Мы надеемся, она поможет вам решить возникшие у вас вопросы при эксплуатации техники.
Если остались вопросы, задайте их в комментариях после инструкции.
"Загружаем инструкцию", означает, что нужно подождать пока файл загрузится и можно будет его читать онлайн. Некоторые инструкции очень большие и время их появления зависит от вашей скорости интернета.

Відомості про колонку
|
5
UA
6 720 608 980 (2010
/10)
2.6
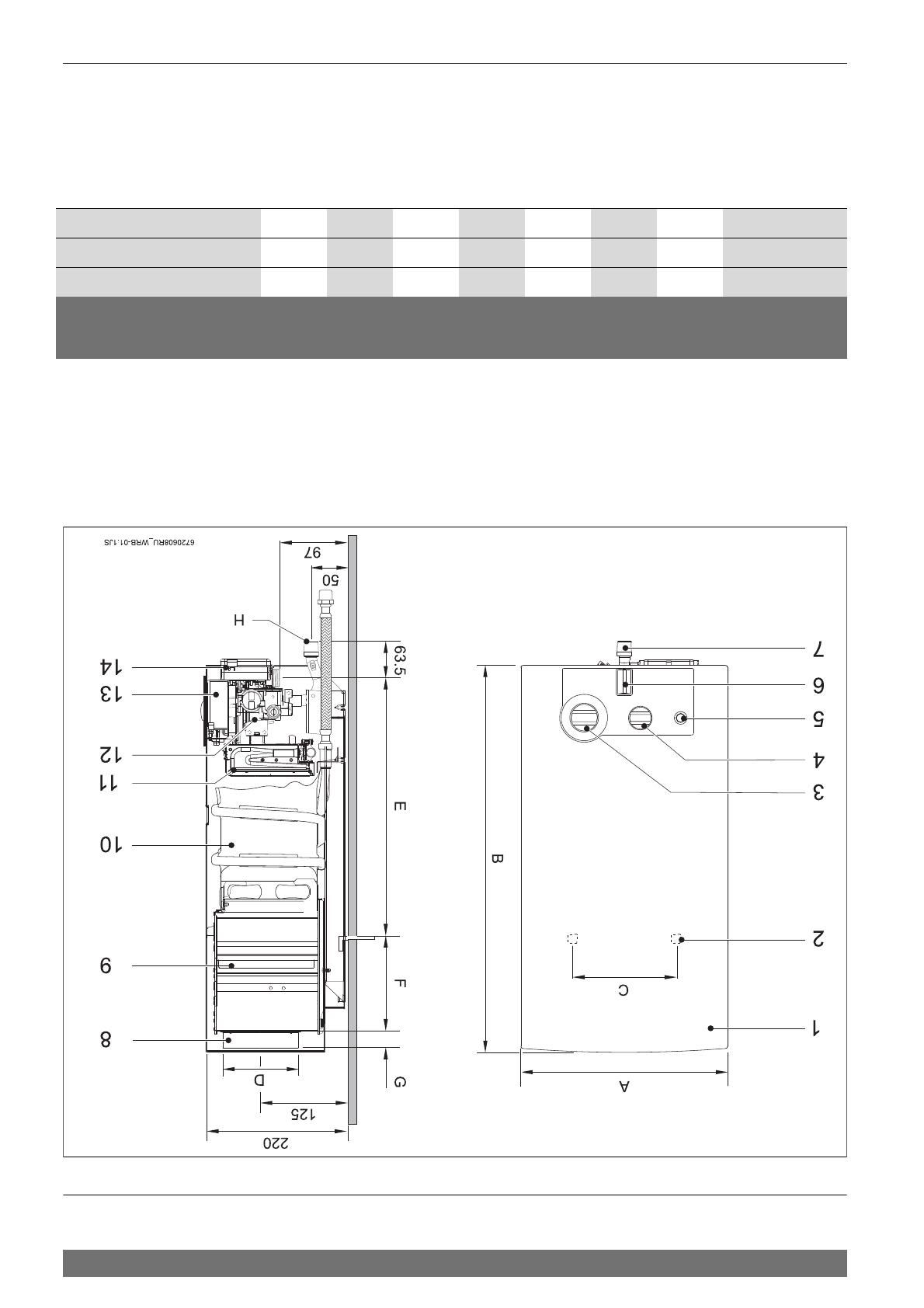
Габарити
Рис. 1
1
Передня сторона
2
Отвір для
кріп
лення до
стіни
3
Ручка регулю
вання
тем
перату
ри (
пот
оку
води)
4
Ре
гу
лят
ор
поту
жнос
ті
5
Перемикач / індикат
ор ст
ану батареї
6
Індик
ато
р стану
пальник
а
7
Підклю
чення до мережі
газопостачан
ня
8
Газо
вивідн
ий патру
бок
9
Труб
а для ві
двод
у по
вітря
з пристроє
м ко
нтрол
ю тяги
10
Теплоо
бмінник
11
Пальник
12
Газовий в
ентиль
13
Блок
запалюва
ння
14
Відсік
дл
я батарейок
Габари
ти
(мм)
A
B
C
D
E
F
G
H (
Ø
)
Прир
одний
Скра
плен
ий
WR10-2 B...
31
0
580
228
112,5
46
3
60
25
3/4”
WR13-2 B...
35
0
655
228
132,5
51
0
95
30
3/4”
WR15-2 B...
42
5
655
334
132,5
54
0
65
30
3/4”
Таб. 4
Габарити
Содержание
- 2 Содержание; Перед вводом прибора в эксплуатацию . . 9
- 3 Пояснения символов и указания по технике безопасности; Пояснения условных обозначений; Знак
- 4 Данные о приборе; Категория, тип и допуск; Модель
- 5 Габаритные размеры; Природный газ; Размеры
- 6 Функциональная схема прибора; Функциональная схема
- 7 Электросхема; Эксплуатация
- 8 Технические характеристики
- 9 Установка батареек; Включить и выключить прибор.
- 10 Регулировка мощности; Рис 11 Опорожнение прибора
- 11 Предписания; Следует соблюдать все местные законодательные
- 12 Монтаж (только для авторизированных фирмой Бош специалистов); Важные указания; Требования к помещению для монтажа
- 13 Температура поверхностей; Монтаж прибора; Рис 13 Подключение водопровода; Прибор; Площадь поперечного сечения для подачи; ВHИMAHИE: Наличие остаточных веществ
- 14 Подключение подачи газа
- 15 Заводская настройка; Рис 14 Точка измерения давления перед форсункой
- 16 производить только уполномоченная; Давление перед форсункой
- 19 Неисправности; Неисправность
- 21 ГАРАНТИЙНЫЙ ТАЛОН
Характеристики
Остались вопросы?Не нашли свой ответ в руководстве или возникли другие проблемы? Задайте свой вопрос в форме ниже с подробным описанием вашей ситуации, чтобы другие люди и специалисты смогли дать на него ответ. Если вы знаете как решить проблему другого человека, пожалуйста, подскажите ему :)