Водонагреватели Ariston PLATINUM INDUSTRIAL 150-200-300 - инструкция пользователя по применению, эксплуатации и установке на русском языке. Мы надеемся, она поможет вам решить возникшие у вас вопросы при эксплуатации техники.
Если остались вопросы, задайте их в комментариях после инструкции.
"Загружаем инструкцию", означает, что нужно подождать пока файл загрузится и можно будет его читать онлайн. Некоторые инструкции очень большие и время их появления зависит от вашей скорости интернета.

-
lo stato del tubo di prelievo dell’acqua calda;
-
i componenti elettrici.
Fuoriuscita d’acqua dal dispositivo contro le sovrapressioni
Un gocciolamento di acqua dal dispositivo è da ritenersi nor male durante la fase di riscaldamento.
Se la fuoriuscita continua durante il periodo di non riscaldamento, fare verificare:
-
la taratura del dispositivo;
-
la pressione di rete dell’acqua.
Attenzione :
-
non ostruire mai il foro di evacuazione del dispositivo!
-
in caso di eccessivo gocciolamento della valvola è consigliabile inserire nell’impianto un vaso
di espansione.
IN OGNI CASO NON TENTARE DI RIPARARE L’APPARECCHIO, MA RIVOLGERSI SEMPRE A PERSONALE
QUALIFICATO.
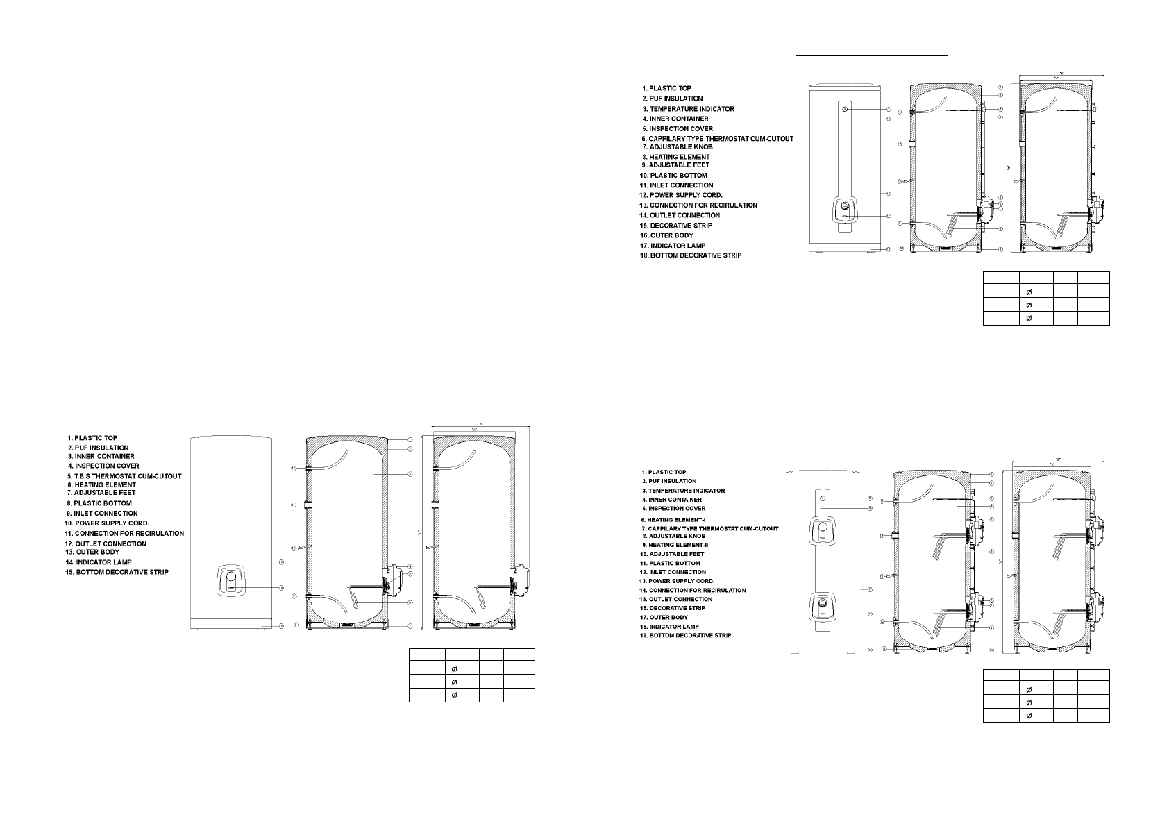
Fig 1
Fig 2
Fig 3
PRODUCT 6kW TRI PHASE
PRODUCT 3kW TRI PHASE
PRODUCT 3kW MONOPHASE
MODEL
A
B
C
300 L
635
758
1503
200 L
635
758
1058
150 L
491
620
1338
MODEL
A
B
C
300 L
635
758
1503
200 L
635
758
1058
150 L
491
620
1338
MODEL
A
B
C
300 L
635
758
1503
200 L
635
758
1058
150 L
491
620
1338
45
46












