Варочная панель Teka TB 630 - инструкция пользователя по применению, эксплуатации и установке на русском языке. Мы надеемся, она поможет вам решить возникшие у вас вопросы при эксплуатации техники.
Если остались вопросы, задайте их в комментариях после инструкции.
"Загружаем инструкцию", означает, что нужно подождать пока файл загрузится и можно будет его читать онлайн. Некоторые инструкции очень большие и время их появления зависит от вашей скорости интернета.

ɉɚɧɟɥɶ ɞɨɥɠɧɚ ɛɵɬɶ ɭɫɬɚɧɨɜɥɟɧɚ ɧɚ
20
ɦɦ
ɧɢɠɟ
,
ɱɟɦ ɧɢɠɧɹɹ ɩɨɜɟɪɯɧɨɫɬɶ ɜɚɪɨɱɧɨɣ
ȼ ɡɚɜɢɫɢɦɨɫɬɢ ɨɬ ɦɨɧɬɢɪɭɟɦɨɣ ɦɨɞɟɥɢ ɫɥɟɞɭɟɬ
ɜɵɪɟɡɚɬɶ ɜ ɫɬɨɥɟɲɧɢɰɟ ɩɪɢɛɨɪɚ ɨɬɜɟɪɫɬɢɟ ɜ
ɫɨɨɬɜɟɬɫɬɜɢɢ ɫ ɪɚɡɦɟɪɚɦɢ
,
ɭɤɚɡɚɧɧɵɦɢ ɧɚ
ɪɢɫɭɧɤɟ
2.
ɋɢɫɬɟɦɚ ɞɥɹ ɤɪɟɩɥɟɧɢɹ ɜɚɪɨɱɧɨɣ ɩɚɧɟɥɢ
ɩɪɟɞɧɚɡɧɚɱɟɧɵ ɞɥɹ ɢɫɩɨɥɶɡɨɜɚɧɢɹ ɫ ɤɭɯɨɧɧɨɣ
ɦɟɛɟɥɶɸ ɬɨɥɳɢɧɨɣ
20, 30
ɢ
40
ɦɦ
.
ȼ ɤɨɦɩɥɟɤɬ
ɦɨɞɟɥɟɣ
VTN DC
ɢ Ɍɋ
620
ɜɯɨɞɢɬ ɬɪɚɮɚɪɟɬ
,
ɤɨɬɨɪɵɣ
ɢɫɩɨɥɶɡɭɟɬɫɹ
ɞɥɹ
ɢɡɦɟɪɟɧɢɹ
ɩɪɨɫɬɪɚɧɫɬɜɚ
ɞɥɹ
ɞɚɧɧɵɯ
ɦɨɞɟɥɟɣ
ɫɬɟɤɥɨɤɟɪɚɦɢɱɟɫɤɨɣ ɜɚɪɨɱɧɨɣ ɩɚɧɟɥɢ
.
ɋɦ
.
ɪɚɡɦɟɪɵ
ɤɚɥɢɛɪɨɜɵɯ ɨɬɜɟɪɫɬɢɣ
ɞɥɹ
ɤɚɠɞɨɣ
ɦɨɞɟɥɢ
ɜ
ɬɚɛɥɢɰɟ
"
Ɋɚɡɦɟɪɵ
ɢ
ɯɚɪɚɤɬɟɪɢɫɬɢɤɢ
"
ɞɚɧɧɨɝɨ
ɪɭɤɨɜɨɞɫɬɜɚ
.
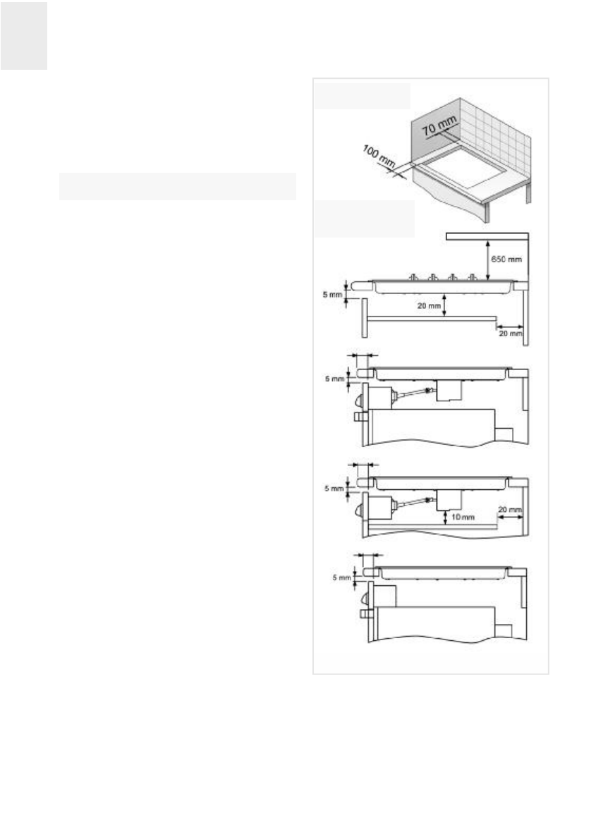
Ɇɢɧɢɦɚɥɶɧɨɟ ɪɚɫɫɬɨɹɧɢɟ ɦɟɠɞɭ ɩɨɜɟɪɯɧɨɫɬɶɸ
ɞɥɹ ɝɨɬɨɜɤɢ ɢ ɧɢɠɧɟɣ ɱɚɫɬɶɸ ɤɭɯɨɧɧɨɣ ɦɟɛɟɥɢ
,
ɥɢɛɨ ɜɵɬɹɠɤɢ
,
ɪɚɫɩɨɥɨɠɟɧɧɨɣ ɧɚɞ ɜɚɪɨɱɧɨɣ
ɩɚɧɟɥɶɸ
,
ɞɨɥɠɧɨ
ɛɵɬɶ
650
ɦɦ
.
ȿɫɥɢ
ɢɧɫɬɪɭɤɰɢɢ ɩɨ ɦɨɧɬɚɠɭ ɜɵɬɹɠɤɢ ɪɟɤɨɦɟɧɞɭɸɬ
ɛɨɥɶɲɟɟ ɪɚɫɫɬɨɹɧɢɟ
,
ɱɟɦ ɷɬɨ
,
ɧɟɨɛɯɨɞɢɦɨ
ɫɥɟɞɨɜɚɬɶ ɷɬɢɦ ɢɧɫɬɪɭɤɰɢɹɦ
.
ȼɚɪɨɱɧɚɹ
ɩɚɧɟɥɶ
,
ɨɩɢɫɚɧɧɚɹ
ɜ
ɞɚɧɧɨɦ
ɪɭɤɨɜɨɞɫɬɜɟ
,
ɦɨɠɟɬ ɛɵɬɶ ɭɫɬɚɧɨɜɥɟɧɚ ɬɨɥɶɤɨ ɫ
ɞɭɯɨɜɵɦɢ ɩɟɱɚɦɢ
Teka.
Ɇɨɞɟɥɢ ɛɟɡ ɤɚɤɢɯ
-
ɥɢɛɨ
ɤɧɨɩɨɤ ɭɩɪɚɜɥɟɧɢɹ ɦɨɝɭɬ ɛɵɬɶ ɭɫɬɚɧɨɜɥɟɧɵ
ɬɨɥɶɤɨ
ɫ
ɞɭɯɨɜɵɦɢ
ɩɟɱɚɦɢ
Teka
ɢ
/
ɢɥɢ
ɩɚɧɟɥɹɦɢ ɭɩɪɚɜɥɟɧɢɹ
Teka.
ɑɚɫɬɶ ɤɭɯɨɧɧɨɣ ɦɟɛɟɥɢ
,
ɝɞɟ ɜɚɪɨɱɧɚɹ ɩɚɧɟɥɶ ɢ
ɞɭɯɨɜɤɚ ɛɭɞɭɬ ɪɚɫɩɨɥɚɝɚɬɶɫɹ
,
ɞɨɥɠɧɚ ɛɵɬɶ
ɫɨɨɬɜɟɬɫɬɜɭɸɳɢɦ ɨɛɪɚɡɨɦ ɡɚɤɪɟɩɥɟɧɚ
.
ɆɈɇɌȺɀ ɋ əɓɂɄɈɆ ȾɅə ɋɌɈɅɈȼɕɏ
ɉɊɂȻɈɊɈȼ ɂɅɂ ɇɂɁɄɂɆ ɒɄȺɎɈɆ ȾɅə
ɉɈɋɍȾɕ
(
ɆɈȾȿɅɂ
ɋ
ɋȿɇɋɈɊɇɕɆ
ɍɉɊȺȼɅȿɇɂȿɆ
)
ȿɫɥɢ ɜɵ ɯɨɬɢɬɟ ɩɨɫɬɚɜɢɬɶ ɲɤɚɮ ɞɥɹ ɩɨɫɭɞɵ
ɢɥɢ ɹɳɢɤ ɞɥɹ ɫɬɨɥɨɜɵɯ ɩɪɢɛɨɪɨɜ ɩɨɞ ɜɚɪɨɱɧɨɣ
ɩɚɧɟɥɶɸ
,
ɧɟɨɛɯɨɞɢɦɨ
ɭɫɬɚɧɨɜɢɬɶ
ɩɚɧɟɥɶ
,
ɱɬɨɛɵ ɪɚɡɞɟɥɢɬɶ ɢɯ
.
ɗɬɨ ɩɨɡɜɨɥɢɬ ɢɡɛɟɠɚɬɶ
ɫɥɭɱɚɣɧɨɝɨ ɤɨɧɬɚɤɬɚ ɫ ɝɨɪɹɱɟɣ ɩɨɜɟɪɯɧɨɫɬɶɸ
ɤɨɪɩɭɫɚ ɩɪɢɛɨɪɚ
.
ȼɚɠɧɨ
ɆɈɇɌȺɀ ɂ ɉɈȾɄɅɘɑȿɇɂȿ ȾɈɅɀɇɕ
ȼɕɉɈɅɇəɌɖɋə
ɍɉɈɅɇɈɆɈɑȿɇɇɕɆ
ɌȿɏɇɂɑȿɋɄɂɆɂ ɋɉȿɐɂȺɅɂɋɌȺɆɂ ȼ
ɋɈɈɌȼȿɌɋɌȼɂɂ ɋ ȾȿɃɋɌȼɍɘɓɂɆɂ
ɆɈɇɌȺɀɇɕɆɂ ɇɈɊɆȺɆɂ
.
Ɋɍɋ
14
Ɋɚɫɩɨɥɨɠɟɧɢɟɜɚɪɨɱɧɵɯɩɚɧɟɥɟɣ
Ɇɨɧɬɚɠ
ɪɢɫ
Ɇɢɧɢɦɚɥɶɧɵɟ
ɪɚɫɫɬɨɹɧɢɹɞɨɫɬɟɧ
Ɇɢɧɢɦɚɥɶɧɵɟ
ɪɚɫɫɬɨɹɧɢɹɞɥɹ
ɜɟɧɬɢɥɹɰɢɢ
ȾɍɏɈȼɄȺ
ɦɢɧɢɦɭɦɦɦ
ɦɢɧɢɦɭɦɦɦ
ɦɢɧɢɦɭɦɦɦ
ȾɍɏɈȼɄȺ
Характеристики
Остались вопросы?Не нашли свой ответ в руководстве или возникли другие проблемы? Задайте свой вопрос в форме ниже с подробным описанием вашей ситуации, чтобы другие люди и специалисты смогли дать на него ответ. Если вы знаете как решить проблему другого человека, пожалуйста, подскажите ему :)