Варочная панель Hansa BHGY 61059 - инструкция пользователя по применению, эксплуатации и установке на русском языке. Мы надеемся, она поможет вам решить возникшие у вас вопросы при эксплуатации техники.
Если остались вопросы, задайте их в комментариях после инструкции.
"Загружаем инструкцию", означает, что нужно подождать пока файл загрузится и можно будет его читать онлайн. Некоторые инструкции очень большие и время их появления зависит от вашей скорости интернета.

54
INSTALARE
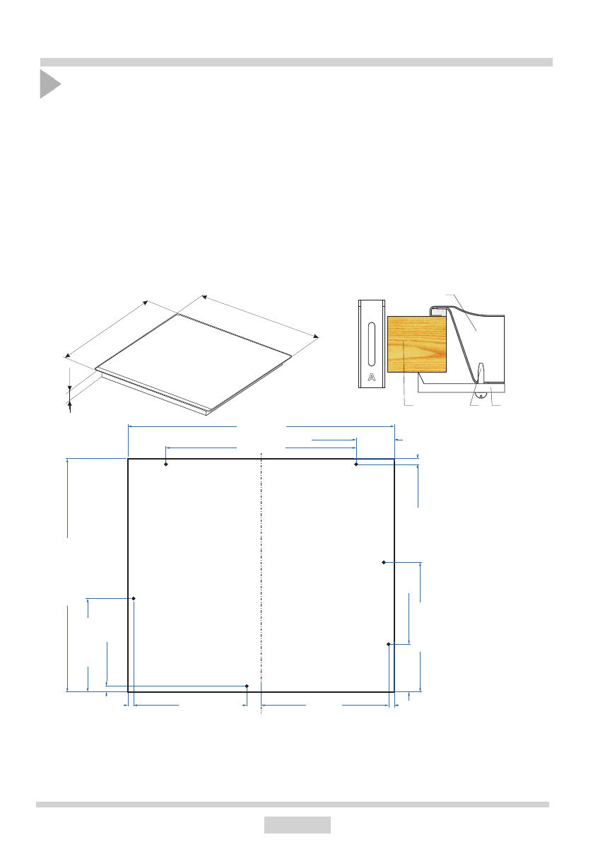
Instalarea plăcilor pe gaz
● pregătiţi locul (orificiul) pe blatul dulapului în conformitate cu schema de montare
● spaţiul minimal care trebuie lăsat liber sub plita pe gaz şi cea pe gaz şi electrică este de
130 mm,
● realizaţi racordul plăcii la reţeaua de alimentare cu gaz şi cea electrică în conformitate
cu instrucţiunea de deservire a aragazului,
●
strângeţi uşor mânerele de sub plită,
● curăţaţi blatul de praf, introduceţi plita în orificiu şi apăsaţi-o cu putere în jos spre blat,
● amplasaţi mânerele de fixare (fig.) perpendicular pe muchia plăcii şi strângeţi-le până la
maximum,
● după montajul plăcii pe blat trebuie să verificaţi modul de funcţionare a acesteia, şi în
principal sistemul de siguranţă împotriva scurgerilor de gaz ţi sistemul de aprindere
electrică a arzătoarelor.
1 - Blat
2 - Holţ-şurub
3 - Mâner de fixare
4 - Plita
4
3
2
1
590 (890)
520
52
Atenţie!
- dimensiunile din paranteze se referă la incorporarea plăcilor PAG5*.
- muchia din spate a orificiului din blat trebuie să aibă minimum 60 mm faţă de peretele din
spate.
272,00 mm
400,00 mm
560,00 mm
80,00 mm
12,00 mm
30,00 mm
100,00 mm
12,00 mm
12,00 mm
12,00 mm
490,00 mm
196,00 mm
Содержание
- 2 УВАЖАЕМЫЕ ПОЛЬЗОВАТЕЛИ; зрения безопасности и функциональности на позициях контроля.; Подключение плиты к газовому баллону ПРОПАН - БУТАН или к; Производитель свидетельствует
- 3 СОДЕРЖАНИЕ; Общая информация
- 4 УКАЗАНИЯ ПО ТЕХНИКЕ БЕЗОПАСНОСТИ; Внимание
- 5 ПРИ ПОДОЗРЕНИИ УТЕЧКИ ГАЗА ЗАПРЕЩАЕТСЯ:
- 6 УКАЗАНИЯ ПО БЕЗОПАСНОСТИ; неисправностью в сервис.
- 7 КАК ЭКОНОМИТЬ ЭНЕРГИЮ
- 9 ОПИСАНИЕ ИЗДЕЛИЯ; ТЕХНИЧЕСКИЕ ПАРАМЕТРЫ
- 11 УСТАНОВКА; Установка плиты
- 12 Установка газовых плит; и газово-электрическую плиту составляет 130 мм,
- 13 Указания для монтажника
- 15 Регулировка вентилей на замедленную подачу газа.
- 16 Регулировка вентилей
- 17 ЭКСПЛУАТАЦИЯ; Подбор посуды; Эксплуатация варочных поверх-; Ручка регулировки работы конфорок
- 19 Подбор пламени; сильное пламя; Запрещается регулировать пламя между положениями «конфорка
- 20 Действия на случай угрозы утечки несгоревшего газа; КОНФОРКА не зажигается, чувствуется утекающий газ
- 21 ОЧИСТКА И КОНСЕРВАЦИЯ; Конфорки
- 22 ПРАВИЛА ПОВЕДЕНИЯ ПРИ ПОЛОМКАХ; ПРОБЛЕМА