Варочная панель Hansa BHGY 61059 - инструкция пользователя по применению, эксплуатации и установке на русском языке. Мы надеемся, она поможет вам решить возникшие у вас вопросы при эксплуатации техники.
Если остались вопросы, задайте их в комментариях после инструкции.
"Загружаем инструкцию", означает, что нужно подождать пока файл загрузится и можно будет его читать онлайн. Некоторые инструкции очень большие и время их появления зависит от вашей скорости интернета.

12
УСТАНОВКА
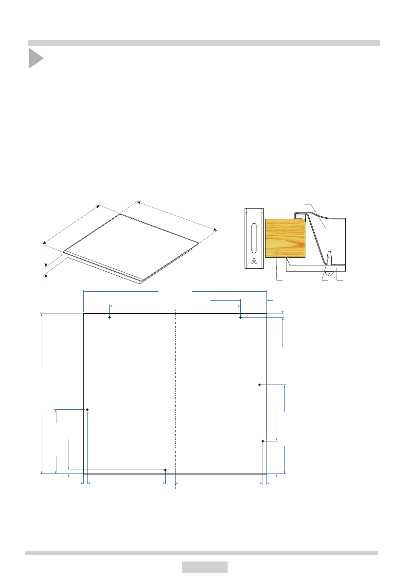
Установка газовых плит
● Подготовить место (нишу) в сегменте мебели согласно с монтажной схемой,
● Минимальное пространство, которое необходимо оставить свободным под газовую
и газово-электрическую плиту составляет 130 мм,
● Произвести подключение плиты к газовой и электрической системе согласно
с инструкцией по эксплуатации плиты
●
слегка затянуть зажимы с нижней части плиты,
● Протереть мебельный сегмент от пыли, вставить плиту в нишу и до упора прижать
к мебели,
● Установить крепежные зажимы (рис.) перпендикулярно краю плиты и закрутить до
упора,
● После монтажа плиты в мебельный сегмент необходимо проверить ее
функциональность, а особенно противоутечную систему и зажигание.
1 - Столешница
2 - Шуруп
3 - Крепежный зажим
4 - Плита
4
3
2
1
590 (890)
520
52
272,00 mm
400,00 mm
560,00 mm
80,00 mm
12,00 mm
30,00 mm
100,00 mm
12,00 mm
12,00 mm
12,00 mm
490,00 mm
196,00 mm
ВНИМАНИЕ:
- размеры, указанные в скобках, относятся к встраиванию плит PAG5*.
- задний край выреза в столешнице должен составлять минимум 60 мм от задней
стены кухни.
Содержание
- 2 УВАЖАЕМЫЕ ПОЛЬЗОВАТЕЛИ; зрения безопасности и функциональности на позициях контроля.; Подключение плиты к газовому баллону ПРОПАН - БУТАН или к; Производитель свидетельствует
- 3 СОДЕРЖАНИЕ; Общая информация
- 4 УКАЗАНИЯ ПО ТЕХНИКЕ БЕЗОПАСНОСТИ; Внимание
- 5 ПРИ ПОДОЗРЕНИИ УТЕЧКИ ГАЗА ЗАПРЕЩАЕТСЯ:
- 6 УКАЗАНИЯ ПО БЕЗОПАСНОСТИ; неисправностью в сервис.
- 7 КАК ЭКОНОМИТЬ ЭНЕРГИЮ
- 9 ОПИСАНИЕ ИЗДЕЛИЯ; ТЕХНИЧЕСКИЕ ПАРАМЕТРЫ
- 11 УСТАНОВКА; Установка плиты
- 12 Установка газовых плит; и газово-электрическую плиту составляет 130 мм,
- 13 Указания для монтажника
- 15 Регулировка вентилей на замедленную подачу газа.
- 16 Регулировка вентилей
- 17 ЭКСПЛУАТАЦИЯ; Подбор посуды; Эксплуатация варочных поверх-; Ручка регулировки работы конфорок
- 19 Подбор пламени; сильное пламя; Запрещается регулировать пламя между положениями «конфорка
- 20 Действия на случай угрозы утечки несгоревшего газа; КОНФОРКА не зажигается, чувствуется утекающий газ
- 21 ОЧИСТКА И КОНСЕРВАЦИЯ; Конфорки
- 22 ПРАВИЛА ПОВЕДЕНИЯ ПРИ ПОЛОМКАХ; ПРОБЛЕМА