Варочная панель Hansa BHGS 63050 - инструкция пользователя по применению, эксплуатации и установке на русском языке. Мы надеемся, она поможет вам решить возникшие у вас вопросы при эксплуатации техники.
Если остались вопросы, задайте их в комментариях после инструкции.
"Загружаем инструкцию", означает, что нужно подождать пока файл загрузится и можно будет его читать онлайн. Некоторые инструкции очень большие и время их появления зависит от вашей скорости интернета.

62
INSTALARE
BHG* / PAG 4.0*, PAG4.1*
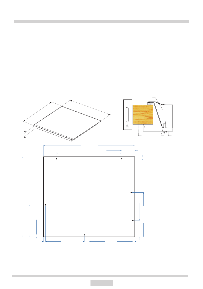
● pregătiţi locul (orificiul) pe blatul dulapului în conformitate cu schema de montare
● realizaţi racordul plăcii la reţeaua de alimentare cu gaz şi cea electrică în conformitate
cu instrucţiunea de deservire a aragazului,
●
strângeţi uşor mânerele de sub plită,
● curăţaţi blatul de praf, introduceţi plita în orificiu şi apăsaţi-o cu putere în jos spre blat,
● amplasaţi mânerele de fixare (fig.) perpendicular pe muchia plăcii şi strângeţi-le până la
maximum,
● după montajul plăcii pe blat trebuie să verificaţi modul de funcţionare a acesteia, şi în
principal sistemul de siguranţă împotriva scurgerilor de gaz ţi sistemul de aprindere
electrică a arzătoarelor.
1 - Blat
2 - Holţ-şurub
3 - Mâner de fixare
4 - Plita
4
3
2
1
Atenţie!
- dimensiunile din paranteze se referă la incorporarea plăcilor PAG5*.
- muchia din spate a orificiului din blat trebuie să aibă minimum 60 mm faţă de peretele din
spate.
590 (890)
520
52
272,00 mm
400,00 mm
560,00 mm
80,00 mm
12,00 mm
30,00 mm
100,00 mm
12,00 mm
12,00 mm
12,00 mm
490,00 mm
196,00 mm
Содержание
- 2 УВАЖАЕМЫЕ ПОЛЬЗОВАТЕЛИ; зрения безопасности и функциональности на позициях контроля.; Подключение плиты к газовому баллону ПРОПАН - БУТАН или к; Производитель свидетельствует
- 3 СОДЕРЖАНИЕ; Общая информация
- 4 УКАЗАНИЯ ПО ТЕХНИКЕ БЕЗОПАСНОСТИ; Внимание
- 5 П р и м е ч а н и е .
- 6 УКАЗАНИЯ ПО БЕЗОПАСНОСТИ; ПРИ ПОДОЗРЕНИИ УТЕЧКИ ГАЗА ЗАПРЕЩАЕТСЯ:; уполномоченное устранить причину.
- 7 КАК ЭКОНОМИТЬ ЭНЕРГИЮ
- 9 ОПИСАНИЕ ИЗДЕЛИЯ; ТЕХНИЧЕСКИЕ ПАРАМЕТРЫ
- 11 - высота 52 мм
- 12 УСТАНОВКА; Установка плиты
- 14 с инструкцией по эксплуатации плиты
- 16 Указания для монтажника
- 18 Регулировка вентилей на замедленную подачу газа.; wok
- 19 Регулировка вентилей
- 20 ЭКСПЛУАТАЦИЯ; Подбор посуды; Эксплуатация варочных поверх-; Ручка регулировки работы конфорок
- 22 ПЛОХО ХОРОШО
- 23 Действия на случай угрозы утечки несгоревшего газа; КОНФОРКА не зажигается, чувствуется утекающий газ
- 24 ОЧИСТКА И КОНСЕРВАЦИЯ; Конфорки
- 25 ПРАВИЛА ПОВЕДЕНИЯ ПРИ ПОЛОМКАХ; ПРОБЛЕМА