Варочная панель Hansa BHGS 63050 - инструкция пользователя по применению, эксплуатации и установке на русском языке. Мы надеемся, она поможет вам решить возникшие у вас вопросы при эксплуатации техники.
Если остались вопросы, задайте их в комментариях после инструкции.
"Загружаем инструкцию", означает, что нужно подождать пока файл загрузится и можно будет его читать онлайн. Некоторые инструкции очень большие и время их появления зависит от вашей скорости интернета.

38
INSTALLATION
BHG* / PAG 4.0*, PAG4.1*
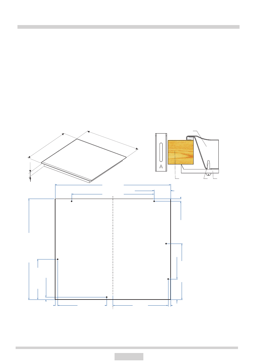
● Den Einbauort (Öffnung) in der Arbeitsplatte der Küchenmöbel entsprechend den
Abmessungen auf der Montagezeichnung vorbereiten.
● Der Anschluss des Kochfeldes ans Gas- und Stromnetz hat unter Beachtung der in der
Gebrauchsanweisung enthaltenen Hinweise zu erfolgen.
● Die Halterungen am Kochfeld von unten leicht anschrauben,
● Die Arbeitsplatte entstauben, das Kochfeld in die Öffnung einsetzen und stark
andrücken.
● Die Halterungen (Abb.) senkrecht zur Kante des Kochfeldes platzieren und anschließend
fest anschrauben.
● Nach der Montage des Kochfeldes in der Arbeitsplatte prüfen, ob das Gerät und vor allem
die Gasaustrittsicherung und der Zünder funktionieren.
1 - Arbeitsplatte
2 - Schraube
3 - Halterung
4 - Kochfeld
4
3
2
1
ACHTUNG:
- die in Klammern angegebenen Abmessungen gelten für den Einbau der Kochfelder
PAG5*.
- Der Abstand zwischen der hinteren Kante der Öffnung in der Arbeitsplatte und der
Küchenwand sollte mindestens 60mm betragen.
590 (890)
520
52
272,00 mm
400,00 mm
560,00 mm
80,00 mm
12,00 mm
30,00 mm
100,00 mm
12,00 mm
12,00 mm
12,00 mm
490,00 mm
196,00 mm
Содержание
- 2 УВАЖАЕМЫЕ ПОЛЬЗОВАТЕЛИ; зрения безопасности и функциональности на позициях контроля.; Подключение плиты к газовому баллону ПРОПАН - БУТАН или к; Производитель свидетельствует
- 3 СОДЕРЖАНИЕ; Общая информация
- 4 УКАЗАНИЯ ПО ТЕХНИКЕ БЕЗОПАСНОСТИ; Внимание
- 5 П р и м е ч а н и е .
- 6 УКАЗАНИЯ ПО БЕЗОПАСНОСТИ; ПРИ ПОДОЗРЕНИИ УТЕЧКИ ГАЗА ЗАПРЕЩАЕТСЯ:; уполномоченное устранить причину.
- 7 КАК ЭКОНОМИТЬ ЭНЕРГИЮ
- 9 ОПИСАНИЕ ИЗДЕЛИЯ; ТЕХНИЧЕСКИЕ ПАРАМЕТРЫ
- 11 - высота 52 мм
- 12 УСТАНОВКА; Установка плиты
- 14 с инструкцией по эксплуатации плиты
- 16 Указания для монтажника
- 18 Регулировка вентилей на замедленную подачу газа.; wok
- 19 Регулировка вентилей
- 20 ЭКСПЛУАТАЦИЯ; Подбор посуды; Эксплуатация варочных поверх-; Ручка регулировки работы конфорок
- 22 ПЛОХО ХОРОШО
- 23 Действия на случай угрозы утечки несгоревшего газа; КОНФОРКА не зажигается, чувствуется утекающий газ
- 24 ОЧИСТКА И КОНСЕРВАЦИЯ; Конфорки
- 25 ПРАВИЛА ПОВЕДЕНИЯ ПРИ ПОЛОМКАХ; ПРОБЛЕМА