Варочная панель Electrolux EHG 7762 X - инструкция пользователя по применению, эксплуатации и установке на русском языке. Мы надеемся, она поможет вам решить возникшие у вас вопросы при эксплуатации техники.
Если остались вопросы, задайте их в комментариях после инструкции.
"Загружаем инструкцию", означает, что нужно подождать пока файл загрузится и можно будет его читать онлайн. Некоторые инструкции очень большие и время их появления зависит от вашей скорости интернета.

23
480
30
591
380
140
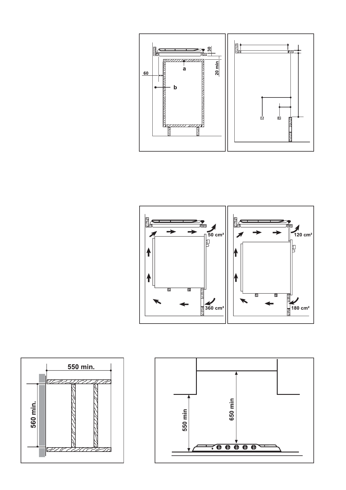
a) Removable panel
b) Space possibly useful for
connections
Рис. 13
Рис. 14
Рис. 15
Рис. 16
Рис. 17
Рис. 18
Кухонный шкаф с дверью
Кухонный шкаф должен быть тщательно
подготовлен к установке варочной
поверхности. Между шкафом и дном
варочной поверхности не должно быть
контакта, так как во время работы дно
в а р о ч н о й п о в е р х н о с т и с и л ь н о
нагревается. Мы рекомендует решение,
показанное на рис. 13.
Панель, установленная под варочную
поверхность, должна легко выниматься
и о т к р ы в а т ь д о с т у п к в а р о ч н о й
поверхности в случае необходимости
технического вмешательства.
Кухонный шкаф с духовым
шкафом
Размеры ниши для установки варочной
поверхности указаны на рис. 14 и 18.
Н и ш а д о л ж н а б ы т ь о б о р у д о в а н а
д е р ж а т е л я м и д л я о б е с п е ч е н и я
постоянного поступления воздуха.
Ч т о б ы п р и б о р н е п е р е г р е в а л с я ,
встраивание должно осуществляться,
как показано на рис. 15 и 16.
Подключение варочной поверхности и
духового шкафа к электросети должно
осуществляться независимо друг от
д р у г а , к а к и з с о о б р а ж е н и й
безопасности, так и для того, чтобы
духовой шкаф можно было легко вынуть
из кухонного шкафа.
Навесные кухонные шкафы или вытяжной
вентилятор должны быть размещены на
расстоянии, как минимум 650 мм над
варочной поверхностью (рис. 18).
Если над варочной поверхностью
установлен вытяжной вентилятор длиной
600 мм, навесные кухонные шкафы
рядом с ним должны располагаться на
расстоянии, как минимум, 550 мм над
варочной поверхностью. Такая высота
н е о б х о д и м а д л я у с т а н о в к и и
использования крышки.
Возможности
встраивания












