Варочная панель Electrolux EGT 6345 YOK - инструкция пользователя по применению, эксплуатации и установке на русском языке. Мы надеемся, она поможет вам решить возникшие у вас вопросы при эксплуатации техники.
Если остались вопросы, задайте их в комментариях после инструкции.
"Загружаем инструкцию", означает, что нужно подождать пока файл загрузится и можно будет его читать онлайн. Некоторые инструкции очень большие и время их появления зависит от вашей скорости интернета.

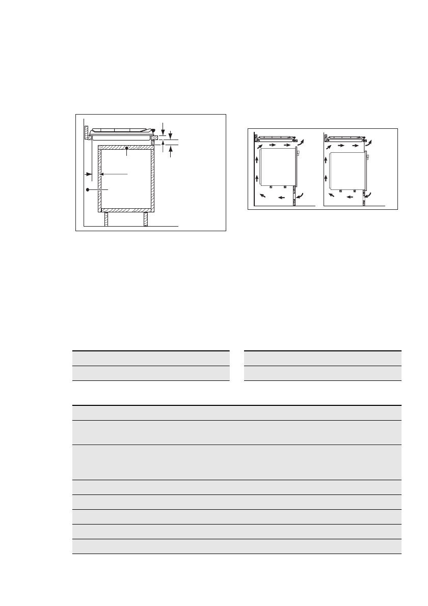
8.7 Варіанти вбудовування
Кухонна секція з дверцятами
Панель, яка встановлюється під варильною
поверхнею, повинна легко зніматися для за‐
безпечення доступу у разі проведення техніч‐
ного обслуговування.
min 20 mm
(max 150 mm)
30 mm
60 mm
B
A
A)
Знімна панель
B)
Місце, що може використовуватися для
підключення
Кухонна секція з духовою шафою
Розміри ніші під варильну поверхню мають
відповідати зазначеним, а кухня повинна бути
оснащена вентиляційними отворами для без‐
перервного надходження повітря. З міркувань
безпеки, а також для полегшення від’єднання
духової шафи від кухонної секції варильну по‐
верхню і духову шафу слід підключати до
джерела електроживлення окремо.
50 cm
2
360 cm
2
180 cm
2
120 cm
2
9. ТЕХНІЧНА ІНФОРМАЦІЯ
Розміри варильної поверхні
Ширина:
590 мм
Довжина:
520 мм
Габарити ніші варильної поверхні
Ширина:
560 мм
Довжина:
480 мм
Теплова потужність
Швидка конфорка:
2.2 кВт
Конфорка середньої швидко‐
сті:
1.65 кВт
ЗАГАЛЬНА ПОТУЖНІСТЬ:
G20 (2H) 20 мбар = 7.15 кВт
G30/G31 (3B/P) 30/30 мбар = 502 г/год
G20 (2H) 13 мбар = 6.9 кВт
Електроживлення:
230 В ~ 50 Гц
Категорія
II2H3B/P
Підведення газу:
G 1/2"
Подача газу:
G20 (2H) 20 мбар
Клас приладу:
3
Українська
57
Содержание
- 30 ПОДДЕРЖКА ПОТРЕБИТЕЛЕЙ И СЕРВИСНОЕ ОБСЛУЖИВАНИЕ
- 32 УКАЗАНИЯ ПО БЕЗОПАСНОСТИ
- 35 Функциональные элементы варочной панели; ЕЖЕДНЕВНОЕ ИСПОЛЬЗОВАНИЕ
- 36 Выключение горелки
- 38 Очистка свечи зажигания
- 39 техобслуживание; ПОИСК И УСТРАНЕНИЕ НЕИСПРАВНОСТЕЙ; принадлежностями
- 40 Подключение к газовой; Сжиженный газ
- 43 Кухонный шкаф с духовым шкафом; ТЕХНИЧЕСКИЕ ДАННЫЕ
- 44 ОХРАНА ОКРУЖАЮЩЕЙ СРЕДЫ