Варочная панель Electrolux EGT 6345 YOK - инструкция пользователя по применению, эксплуатации и установке на русском языке. Мы надеемся, она поможет вам решить возникшие у вас вопросы при эксплуатации техники.
Если остались вопросы, задайте их в комментариях после инструкции.
"Загружаем инструкцию", означает, что нужно подождать пока файл загрузится и можно будет его читать онлайн. Некоторые инструкции очень большие и время их появления зависит от вашей скорости интернета.

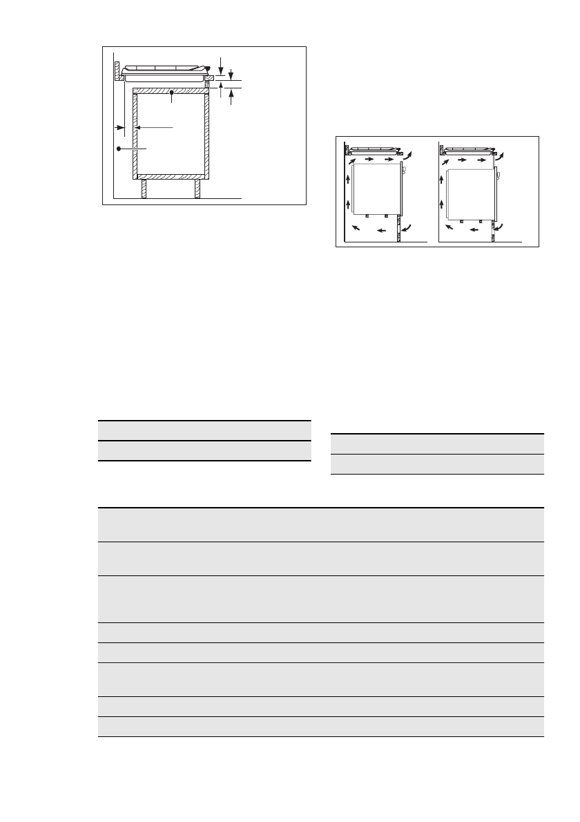
min 20 mm
(max 150 mm)
30 mm
60 mm
B
A
A)
Съемная панель
B)
Пространство для подключения проводов
Кухонный шкаф с духовым шкафом
Размеры ниши под варочную панель должны
соответствовать указанным, в кухонном шка‐
фу должны быть предусмотрены вентиля‐
ционные отверстия для постоянного притока
воздуха. Из соображений безопасности, а так‐
же для упрощения процедуры извлечения ду‐
хового шкафа из шкафа, электрические сое‐
динения для варочной панели и духового
шкафа должны быть выполнены раздельно.
50 cm
2
360 cm
2
180 cm
2
120 cm
2
9. ТЕХНИЧЕСКИЕ ДАННЫЕ
Размеры варочной панели
Ширина:
590 мм
Длина:
520 мм
Размеры выреза для варочной
поверхности
Ширина:
560 мм
Длина:
480 мм
Тепловая мощность
Горелка повышенной мощно‐
сти:
2.2 кВт
Горелка для ускоренного
приготовления:
1.65 кВт
ОБЩАЯ МОЩНОСТЬ:
G20 (2H) 20 мбар = 7.15 кВт
G30/G31 (3B/P) 30/30 мбар = 502 г/час
G20 (2H) 13 мбар = 6.9 кВт
Электропитание:
230 В ~ 50 Гц
Категория:
II2H3B/P
Подключение к газовой маги‐
страли:
G 1/2"
Подвод газа:
G20 (2H) 20 мбар
Класс прибора:
3
РУССКИЙ
43
Содержание
- 30 ПОДДЕРЖКА ПОТРЕБИТЕЛЕЙ И СЕРВИСНОЕ ОБСЛУЖИВАНИЕ
- 32 УКАЗАНИЯ ПО БЕЗОПАСНОСТИ
- 35 Функциональные элементы варочной панели; ЕЖЕДНЕВНОЕ ИСПОЛЬЗОВАНИЕ
- 36 Выключение горелки
- 38 Очистка свечи зажигания
- 39 техобслуживание; ПОИСК И УСТРАНЕНИЕ НЕИСПРАВНОСТЕЙ; принадлежностями
- 40 Подключение к газовой; Сжиженный газ
- 43 Кухонный шкаф с духовым шкафом; ТЕХНИЧЕСКИЕ ДАННЫЕ
- 44 ОХРАНА ОКРУЖАЮЩЕЙ СРЕДЫ