Варочная панель Electrolux EGS 6343 NOX - инструкция пользователя по применению, эксплуатации и установке на русском языке. Мы надеемся, она поможет вам решить возникшие у вас вопросы при эксплуатации техники.
Если остались вопросы, задайте их в комментариях после инструкции.
"Загружаем инструкцию", означает, что нужно подождать пока файл загрузится и можно будет его читать онлайн. Некоторые инструкции очень большие и время их появления зависит от вашей скорости интернета.

ПРЕДУПРЕЖДЕНИЕ!
Варочную панель следует встраивать
только в столешницу с ровной по‐
верхностью.
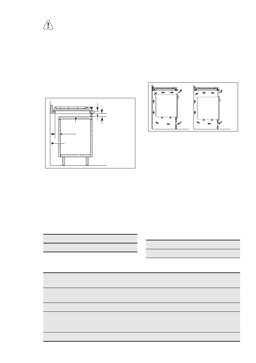
8.7 Возможности встраивания
Кухонный шкаф с дверцей
Панель, установленная под варочной пане‐
лью, должна легко сниматься для обеспече‐
ния доступа к узлам, нуждающимся в техниче‐
ском обслуживании.
min 20 mm
(max 150 mm)
30 mm
60 mm
B
A
A)
Съемная панель
B)
Пространство для подключения проводов
Кухонный шкаф с духовым шкафом
Размеры ниши под варочную панель должны
соответствовать указанным, в кухонном шка‐
фу должны быть предусмотрены вентиля‐
ционные отверстия для постоянного притока
воздуха. Из соображений безопасности, а так‐
же для упрощения процедуры извлечения ду‐
хового шкафа из шкафа, электрические сое‐
динения для варочной панели и духового
шкафа должны быть выполнены раздельно.
50 cm
2
360 cm
2
180 cm
2
120 cm
2
9. ТЕХНИЧЕСКИЕ ДАННЫЕ
Размеры варочной панели
Ширина:
595 мм
Длина:
525 мм
Размеры выреза для варочной
поверхности
Ширина:
560 мм
Длина:
480 мм
Тепловая мощность
Горелка с тройным рассека‐
телем
3.8 кВт
Горелка для ускоренного
приготовления:
1.9 кВт
Вспомогательная горелка:
1.0 кВт
ОБЩАЯ МОЩНОСТЬ:
G20 (2H) 20 мбар = 8.6 кВт
G30/G31 (3B/P) 30/30 мбар = 625 г/час
G20 (2H) 13 мбар = 8.8 кВт только для России
Электропитание:
230 В ~ 50 Гц
РУССКИЙ
67
Содержание
- 55 ПОДДЕРЖКА ПОТРЕБИТЕЛЕЙ И СЕРВИСНОЕ ОБСЛУЖИВАНИЕ
- 57 УКАЗАНИЯ ПО БЕЗОПАСНОСТИ; Подключение к электросети
- 58 Подключение к газовой магистрали
- 59 Функциональные элементы варочной панели
- 60 ЕЖЕДНЕВНОЕ ИСПОЛЬЗОВАНИЕ
- 61 Выключение горелки
- 63 ПОИСК И УСТРАНЕНИЕ НЕИСПРАВНОСТЕЙ
- 64 принадлежностями; Подключение к газовой
- 65 Сжиженный газ
- 67 ТЕХНИЧЕСКИЕ ДАННЫЕ
- 69 ОХРАНА ОКРУЖАЮЩЕЙ СРЕДЫ