Шуруповерты Bosch AdvancedImpact 900 0.603.174.020 - инструкция пользователя по применению, эксплуатации и установке на русском языке. Мы надеемся, она поможет вам решить возникшие у вас вопросы при эксплуатации техники.
Если остались вопросы, задайте их в комментариях после инструкции.
"Загружаем инструкцию", означает, что нужно подождать пока файл загрузится и можно будет его читать онлайн. Некоторые инструкции очень большие и время их появления зависит от вашей скорости интернета.

70
| Български
1 609 92A 3LD | (4.10.16)
Bosch Power Tools
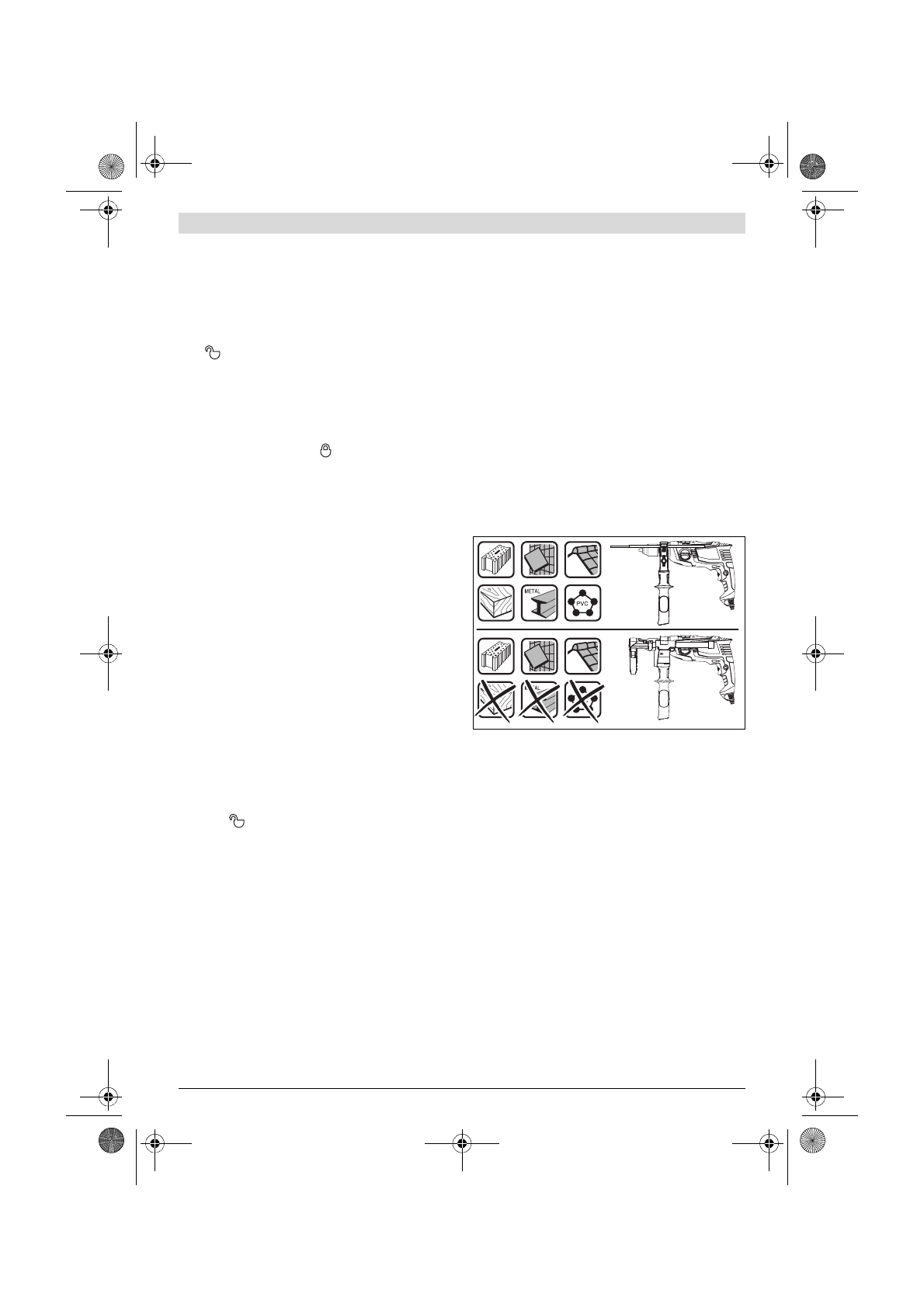
Настройване на дълбочината на пробиване
(вижте фигури E – F)
Монтирайте свредлото (вижте раздел „Смяна на работния
инструмент“).
С регулиращия пръстен
17
може да бъде определена же-
ланата дълбочина на пробиване
X
.
За освобождаване завъртете регулиращия пръстен
17
на-
ляво
. Допрете плътно прахоуловителната кутия
11
или гнездото
26
до стената или детайла. Допрете върха на
свредлото до стената, респ. детайла.
Преместете назад регулиращия пръстен
17
, докато раз-
стоянието стане равно на дълбочината на пробиване
X
или
поставете дюбел на шината и дръпнете регулиращия пръс-
тен
17
назад до дюбела. За застопоряване завъртете регу-
лиращия пръстен
17
надясно
. Махнете дюбела от ши-
ната. Сега дълбочината на пробиване
X
съответства на
настроената на шината.
Упътване:
При използване на дюбели точната дълбочина
на пробиване е важна. Ако пробитият отвор е твърде дъл-
бок, дюбелът потъва твърде надолу в стената, респ. детай-
ла. Ако отворът е твърде малък, дюбелът се подава.
Изпразване на прахоуловителната кутия
(вижте фигура G)
Прахоуловителната кутия
11
побира отпадъци от прибл.
25 отвора в зидария с дълбочина 30 mm и диаметър 6 mm.
– За изваждане на прахоуловителната кутия
11
натиснете
освобождаващите бутони
12
отстрани и издърпайте
прахоуловителната кутия надолу.
– Изпразнете прахоуловителната кутия
11
и отново я по-
ставете (чува се отчетливо прещракване).
Демонтиране на Drill Assistant
– Натиснете и задръжте клемата
16
на приставката за
прахоулавяне
13
и издърпайте напред приставката за
прахоулавяне
13
.
– Завъртете обратно на часовниковата стрелка винта с
крилчата глава
18
, докато спомагателната ръкохватка
9
бъде освободена и извадете спомагателната ръкохват-
ка
9
от електроинструмента.
– Завъртете регулиращия пръстен
17
за освобождаване
наляво .
– Задръжте неподвижна спомагателната ръкохватка
9
и
преместете шината по посока на спомагателната ръкох-
ватка, докато усетите отчетливо прещракване.
Прахоулавяне/прахоуловителна кутия
Прахове, отделящи се при обработването на материали
като съдържащи олово бои, някои видове дървесина,
минерали и метали могат да бъдат опасни за здравето.
Контактът до кожата или вдишването на такива прахове
могат да предизвикат алергични реакции и/или заболя-
вания на дихателните пътища на работещия с
електроинструмента или намиращи се наблизо лица.
Определени прахове, напр. отделящите се при обра-
ботване на бук и дъб, се считат за канцерогенни, особе-
но в комбинация с химикали за третиране на дървесина
(хромат, консерванти и др.). Допуска се обработването
на съдържащи азбест материали само от съответно обу-
чени квалифицирани лица.
– Използвайте подходяща за обработвания материал
система за прахоулавяне.
– Осигурявайте добро проветряване на работното
място.
– Препоръчва се използването на дихателна маска с
филтър от клас P2.
Спазвайте валидните във Вашата страна законови раз-
поредби, валидни при обработване на съответните ма-
териали.
Избягвайте натрупване на прах на работното място.
Прахът може лесно да се самовъзпламени.
Използвайте прахоуловителната кутия само при об-
работване на бетон и каменни материали.
Дървени и
пластмасови стърготини могат лесно да предизвикат
запушване.
Внимание, опасност от пожар! Не обработвайте ме-
тални материали с монтирана прахоуловителна ку-
тия.
Нагорещените метални стружки могат да предиз-
викат възпламеняване на части от прахоуловителната
кутия.
За да ползвате оптимално прахоуловителната кутия, моля,
спазвайте следните указания:
– Внимавайте прахоуловителната кутия да е прилепнала
плътно до пробивания детайл, респ. до стената. Така
същевременно постигате перпендикулярност на
пробивания отвор.
– След достигане на желаната дълбочина на отвора първо
извадете свредлото от него и едва след това изключете
ударната бормашина.
– Специално при работа със свредла с голям диаметър
предпазният прахоуловителен пръстен
15
може да се
износи. Ако се повреди, го заменяйте своевременно.
Смяна на работния инструмент
Патронник за бързо захващане (вижте фигура H)
Когато пусковият прекъсвач
6
не е натиснат, валът на елек-
троинструмента е блокиран. Това позволява бързата,
удобна и лесна замяна на работния инструмент в патрон-
ника.
Разтворете патронника за бързо захващане
1
чрез завър-
тане в посока
, докато работният инструмент може да бъ-
де поставен. Вкарайте инструмента.
OBJ_BUCH-2904-003.book Page 70 Tuesday, October 4, 2016 5:02 PM
Содержание
- 36 Указания по технике безопасности для дрелей
- 37 Описание продукта и услуг; Применение по назначению
- 38 Технические данные
- 39 Сборка
- 40 Отсос пыли/контейнер для пыли; Замена рабочего инструмента
- 41 Смена сверлильного патрона; Работа с инструментом; Включение электроинструмента
- 42 Указания по применению; Техобслуживание и сервис; Техобслуживание и очистка
- 43 Утилизация; Українська; Вказівки з техніки безпеки; Загальні застереження для електроприладів













