Protherm Tiger 24 12 KOZ - Инструкция по эксплуатации

Protherm Tiger 24 12 KOZ

Котел Protherm Tiger 24 12 KOZ - инструкция пользователя по применению, эксплуатации и установке на русском языке. Мы надеемся, она поможет вам решить возникшие у вас вопросы при эксплуатации техники.

Если остались дополнительные вопросы — свяжитесь с нами через контактную форму.

1 Страница 1
2 Страница 2
3 Страница 3
4 Страница 4
5 Страница 5
6 Страница 6
7 Страница 7
8 Страница 8
9 Страница 9
10 Страница 10
11 Страница 11
12 Страница 12
13 Страница 13
14 Страница 14
15 Страница 15
16 Страница 16
17 Страница 17
18 Страница 18
19 Страница 19
20 Страница 20
21 Страница 21
22 Страница 22
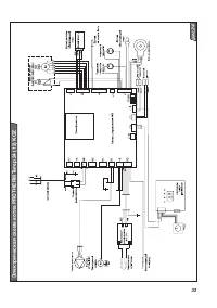
23 Страница 23
24 Страница 24
25 Страница 25
26 Страница 26
27 Страница 27
28 Страница 28
29 Страница 29
30 Страница 30
31 Страница 31
32 Страница 32
33 Страница 33
34 Страница 34
35 Страница 35
36 Страница 36
Страница: / 36
Загрузка инструкции

www.protherm.sk

Руководство по

обслуживанию

и установке котла

24 (12) KTZ / v.17

24 (12) KOZ / v.17

Навесной комбинированный котёл

Мощность 9,5 - 23 (3,5 – 11,5) кВт

Подогрев напорной воды в запасном баке

Tiger

xxxxxxxxxxx_01 - v.1 1/2006

RU

в е р с и я

Protherm spol. s r.o.

Пплк. Пльющя

45

909 01

Скалица

Словацкая республика

"Загрузка инструкции" означает, что нужно подождать пока файл загрузится и можно будет его читать онлайн. Некоторые инструкции очень большие и время их появления зависит от вашей скорости интернета.

Характеристики

Другие модели - Котлы Protherm

Все котлы Protherm