Protherm Бизон 40NL - Инструкция по эксплуатации

Protherm Бизон 40NL

Котел Protherm Бизон 40NL - инструкция пользователя по применению, эксплуатации и установке на русском языке. Мы надеемся, она поможет вам решить возникшие у вас вопросы при эксплуатации техники.

Если остались дополнительные вопросы — свяжитесь с нами через контактную форму.

1 Страница 1
2 Страница 2
3 Страница 3
4 Страница 4
5 Страница 5
6 Страница 6
7 Страница 7
8 Страница 8
9 Страница 9
10 Страница 10
11 Страница 11
12 Страница 12
13 Страница 13
14 Страница 14
15 Страница 15
16 Страница 16
17 Страница 17
18 Страница 18
19 Страница 19
20 Страница 20
Страница: / 20

Содержание:

  • Страница 3 – Protherm Бизон NL; Содержание; Руководство по обслуживанию; Руководство по установке
  • Страница 4 – Введение
  • Страница 6 – Управление и сигнализация; Панель управления; Эксплуатация и техническое обслуживание
  • Страница 7 – Гарантия и гарантийные условия
  • Страница 8 – Описание конструкции оборудования; Общее описание; Модели котла БИЗОН NL; мм
  • Страница 9 – Модели котла БИЗОН NL
  • Страница 10 – Элементы панели управления
  • Страница 11 – Технические параметры котла БИЗОН NL
  • Страница 13 – Комплектность поставки; Комплект поставки
  • Страница 14 – Монтаж панельной обшивки; Элементы обшивки
  • Страница 15 – Порядок монтажа; Нижние консоли
  • Страница 16 – Подключение камеры сгорания; Выбор горелки; Горелка
  • Страница 17 – Распределительный трубопровод; Чистота отопительной системы
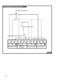
  • Страница 18 – Подключение к дымоходу; Электрическое подключение котла
  • Страница 19 – Электрическая схема котла; Предохранительный; Главный
Загрузка инструкции

Инструкция
по эксплуатации

Комбинированный напольный котел Protherm Бизон

40NL 10003942

Цены на товар на сайте:

http://kotly.vseinstrumenti.ru/kombinirovannye/protherm/bizon_40nl_10003942/

Отзывы и обсуждения товара на сайте:

http://kotly.vseinstrumenti.ru/kombinirovannye/protherm/bizon_40nl_10003942/#tab-Responses

"Загрузка инструкции" означает, что нужно подождать пока файл загрузится и можно будет его читать онлайн. Некоторые инструкции очень большие и время их появления зависит от вашей скорости интернета.

Краткое содержание

Страница 3 - Protherm Бизон NL; Содержание; Руководство по обслуживанию; Руководство по установке

1 Protherm Бизон NL Заводской номер котла обозначен на щитке, находящемся на передней крышке чугунного корпуса котла. Информацию на щитке можно прочитать, сняв верхнюю крышку котла. Содержание Введение . . . . . . . . . . . . . . . . . . . . . . . . . . . 2Меры по обеспечению безопасности работы уст...

Страница 4 - Введение

2 1. Бизон NL – это универсальный котел, ра- ботающий на природном или сжиженном газe в зависимости от установленной на котле горелки. 2. Котел и все сопутствующее оснащение устанавливается и эксплуатируется в со-ответствии с проектом, действующими на данный момент постановлениями, техни-ческими нор...

Страница 6 - Управление и сигнализация; Панель управления; Эксплуатация и техническое обслуживание

4 Руководство по обслуживанию Руководство по обслуживанию Управление и сигнализация Рис. 1 Панель управления 0 1 2 l 0 20 40 1 2 3 °C °C 1. Главный выключатель ВКЛЮЧЕНО (1) - ВЫКЛЮЧЕНО ( 0 ) 2. Регулятор температуры котла 3. Термометр Панель управления С помощью панели управления можно уста-навливат...

Характеристики

Другие модели - Котлы Protherm

Все котлы Protherm