Плита Gorenje K57320IW - инструкция пользователя по применению, эксплуатации и установке на русском языке. Мы надеемся, она поможет вам решить возникшие у вас вопросы при эксплуатации техники.
Если остались вопросы, задайте их в комментариях после инструкции.
"Загружаем инструкцию", означает, что нужно подождать пока файл загрузится и можно будет его читать онлайн. Некоторые инструкции очень большие и время их появления зависит от вашей скорости интернета.

18
РЕГУЛИРОВКА ГАЗОВЫХ ВАРОЧНЫХ ГОРЕЛОК
BURNER SETTINGS
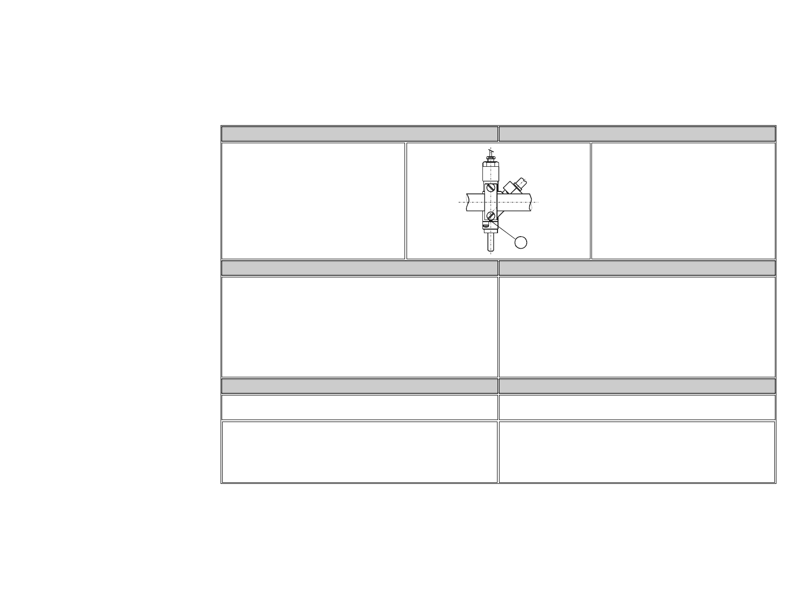
РЕГУЛИРОВКА МИНИМАЛЬНОЙ
МОЩНОСТИ
При выполнении регулировки отсоедините плиту от
электросети.
Минимальная мощность газовой варочной горелки
считается правильно отрегулированной,
если
внутренний конус пламени достигает высоты от 3 до
4 мм.
Сняв ручку крана, но предварительно установив её в
положение „МАЛОЕ ПЛАМЯ", можно отрегулировать
мощность пламени горелки, завинчивая
или
отвинчивая винт С (рис. 15).
При переналадке плиты на пропан-бутан винт С
должен быть завинчен до упора.
C
MINIMUM OUTPUT ADJUSTMENT
Before starting any adjustments disconnect the
appliance from the mains power supply. Adjustments
must be carried out with the tap at the "SAVING"
position.
The minimum gas output is correctly adjusted when the
inner cone of the flame arrives at the height of 3 to
4mm.
If this is not the case, first remove the tap knob and then
tighten or loosen the screw C, depending on whether
the flame is to be reduced or increased.
For butane/propane the screw C must be fully screwed
in.
ПЕРЕНАЛАДКА ПЛИТЫ НА ДРУГОЙ ВИД ГАЗА
CONVERSION TO ANOTHER TYPE OF GAS
Переналадку плиты на другой вид газа может выполнить только специалист
уполномоченной сервисной организации.
При переналадке необходимо выполнить:
•
замену сопел всех горелок (см. таблицу),
•
регулировку минимальной потребляемой мощности горелки духовки и гриля в
позиции „МАЛОЕ ПЛАМЯ“,
•
наладку или, возможно, замену регулятора давления газа (если он вообще
установлен на подводящем газопроводе),
•
первоначальный заводской типовой щиток заменить новым, поставляемым
совместно с комплектом сопел,
•
о проведении данной операции сделать соответствующие записи в
“Гарантийном талоне”.
Conversion of cooker to another type of gas can be performed only by qualified
technician.
Adhere to the following procedure:
•
Change nozzles of all hob burners;
•
Adjust or change gas pressure regulator if installed;
•
Adjust oven and grill burner primary air;
•
Adjust SAVING power position of hob burners;
•
Stick new gas setting label with relevant nozzle information;
РЕГУЛИРОВКА ВЫСОТЫ ПЛИТЫ
LEVELING THE APPLIANCE
Установка плиты в горизонтальное положение или регулировка её по высоте
выполняется с помощью 4-х регулировочных винтов, которые входят в состав
принадлежностей плиты.
Cooker hob must be leveled in horizontal position by means of 4 leveling screws
supplied with the appliance.
ПРОЦЕСC:
•
Вытащите ящик для хранения принадлежностей плиты,
•
плиту наклоните на одну сторону,
•
завинтите регулировочные винты в передние и задние отверстия перегородки
на этой стороне,
•
плиту наклоните в противоположную сторону и подобным образом завинтите
винты на другой стороне плиты,
PROCEDURE:
•
Remove the range receptacle;
•
Tilt the cooker on one side;
•
Screw plastic screws into the bottom crossbar front and rear openings on one side;
•
Tilt the cooker on the opposite side and fix the screws into the openings on the
other side;
•
Level the cooker using a screwdriver from the receptacle area, or by turning the
Характеристики
Остались вопросы?Не нашли свой ответ в руководстве или возникли другие проблемы? Задайте свой вопрос в форме ниже с подробным описанием вашей ситуации, чтобы другие люди и специалисты смогли дать на него ответ. Если вы знаете как решить проблему другого человека, пожалуйста, подскажите ему :)












