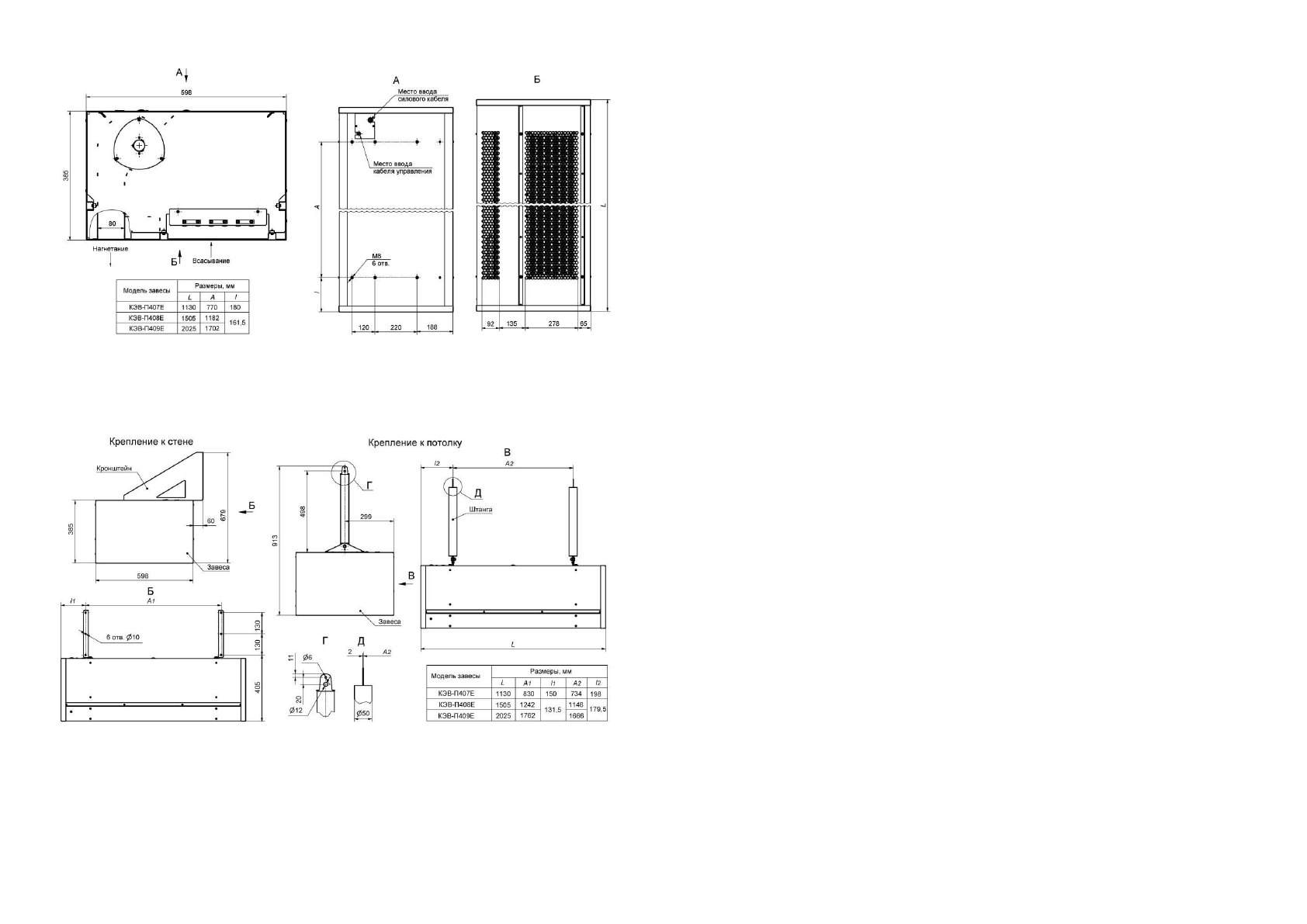
Обогреватели Тепломаш КЭВ-18П409Е - инструкция пользователя по применению, эксплуатации и установке на русском языке. Мы надеемся, она поможет вам решить возникшие у вас вопросы при эксплуатации техники.
Если остались вопросы, задайте их в комментариях после инструкции.
"Загружаем инструкцию", означает, что нужно подождать пока файл загрузится и можно будет его читать онлайн. Некоторые инструкции очень большие и время их появления зависит от вашей скорости интернета.

. 6.
-16-
1.
1.1
-
-9 407
,
-12 407
,
-18 407
,
-12 408
,
-18 408
,
-24 408
,
-
18 409 , 24 409 , 36 409
(
–
)
(
,
)
.
1.2
-
,
.
1.3
4
00
-
3
,0
5,0
.
1.4
( . .
2.4).
2.
2.1
,
- 20...+40
2.2
20
, %
80
2.3
, /
3
10
2.4
,
(
,
),
,
(
,
-
).
2.5
, , ( №123 22.07.2008,
26).
-
1, 2, 3, 4
(
3
-
5
)
(
105
-
03,
.)
3.
3.1
1.
3.2
1.
3.3
,
,
IP21.
3.4
380 /50 .
3.5
.
= 5
.
3.6
.
-
.