Обогреватели Kalashnikov KVC-D10E9-31 105001 - инструкция пользователя по применению, эксплуатации и установке на русском языке. Мы надеемся, она поможет вам решить возникшие у вас вопросы при эксплуатации техники.
Если остались вопросы, задайте их в комментариях после инструкции.
"Загружаем инструкцию", означает, что нужно подождать пока файл загрузится и можно будет его читать онлайн. Некоторые инструкции очень большие и время их появления зависит от вашей скорости интернета.

14
а6
а2
Ш
b1
b2
а7
В
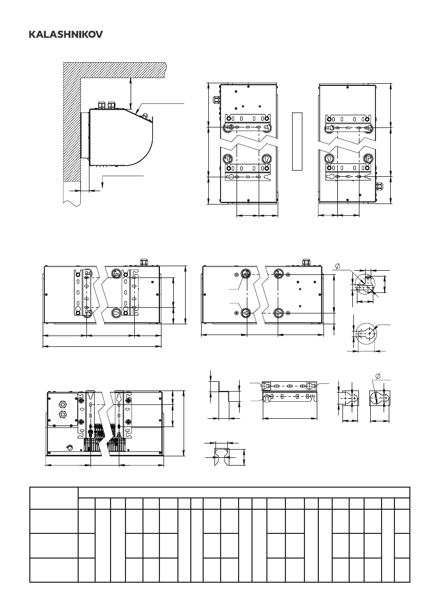
ГОРИЗОНТАЛЬНАЯ УСТАНОВКА
к стене с помощью кронтштейнов
c3
c4
c1
c2
c5
A
B
ГОРИЗОНТАЛЬНАЯ И ВЕРТИКАЛЬНАЯ
УСТАНОВКА
к стене с помощью отверстий на корпусе
РАЗМЕРЫ КРОНШТЕЙНА
Г
a4
d3
d1
d2
d4
ГОРИЗОНТАЛЬНАЯ УСТАНОВКА
к потолку на шпильки
a5
a4
a7
a
a6
Дверной проем
а2
а3
a5
a4
а1
ВЕРТИКАЛЬНАЯ УСТАНОВКА
к стене с помощью кронштейнов
300 min
30
Всасывание
Нагнетание
205
C
D
E
30
30
30
12
6,5
6,5
19,3
19,3
A
6,5
19,3
R6
B
17
9
22
C
17
9
27,5
D
14
7
18,5
E
Рисунок 9.
Габаритные и крепежные
размеры
Таблица 5. Габаритные и крепежные размеры
Модель завесы
Размеры, мм
Ш
В
Г
а1
а2
а3
а4 а5
а6
а7
b1 b2
c1
c2
c3
c4
с5
d1
d2
d3 d4
KVC-D10E9-31
KVC-D10E12-31
KVC-D10E18-31
1120
300 340
165,5 829 125.5
122 93
183.5 105.5
84 150
195.5 749
64 180
175.5 169 762
49
189
KVC-D15E12-31
KVC-D15E18-31
KVC-D15E24-31
1520
165,5 1231 123.5
185.5 105.5
193.5 1151
175.5 169 1164
187
KVC-D20E18-31
KVC-D20E24-31
KVC-D20E36-31
2095
291 1672 132
192
231
202 1691
202 288 1618
189













