Обогреватели Kalashnikov KVC-C20E18-31 104997 - инструкция пользователя по применению, эксплуатации и установке на русском языке. Мы надеемся, она поможет вам решить возникшие у вас вопросы при эксплуатации техники.
Если остались вопросы, задайте их в комментариях после инструкции.
"Загружаем инструкцию", означает, что нужно подождать пока файл загрузится и можно будет его читать онлайн. Некоторые инструкции очень большие и время их появления зависит от вашей скорости интернета.

14
а1
а2
Ш
b1
b2
а3
В
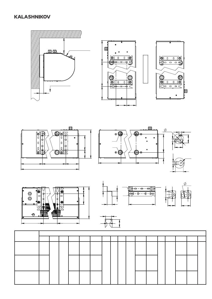
ГОРИЗОНТАЛЬНАЯ УСТАНОВКА
к стене с помощью кронтштейнов
c3
c4
c1
c2
c1
A
B
ГОРИЗОНТАЛЬНАЯ И ВЕРТИКАЛЬНАЯ
УСТАНОВКА
к стене с помощью отверстий на корпусе
РАЗМЕРЫ КРОНШТЕЙНА
Г
a4
d3
d1
d2
d1
ГОРИЗОНТАЛЬНАЯ УСТАНОВКА
к потолку на шпильки
Дверной проем
а2
а3
a5
a4
а1
ВЕРТИКАЛЬНАЯ УСТАНОВКА
к стене с помощью кронштейнов
300 min
30
Всасывание
Нагнетание
205
C
D
E
30
30
30
12
6,5
6,5
19,3
19,3
A
6,5
19,3
R6
B
17
9
22
C
17
9
27,5
D
14
7
18,5
E
Модель завесы
Размеры, мм
Ш
В
Г
а1
а2
а3
а4
а5
b1
b2
c1
c2
c3
c4
d1
d2
d3
KVС-C10E6-01
KVС-C10E9-31
KVС-C10E12-31
1065
255
285
158
809
98
122
68
50
150
167
731
39
180
161.5
742
50
KVC-C15E6-01
KVС-C15E9-31
KVС-C15E12-31
KVС-C15E15-31
1500
191.5
1177
131.5
197
1106
195
1110
KVС-C20E12-31
KVС-C20E18-31
KVС-C20E24-31
2000
215.5
1629
155.5
222
1556
219
1562
Рисунок 9.
Габаритные и крепежные размеры
Таблица 5. Габаритные и крепежные размеры