Котел ZOTA Pellet 32S - инструкция пользователя по применению, эксплуатации и установке на русском языке. Мы надеемся, она поможет вам решить возникшие у вас вопросы при эксплуатации техники.
Если остались вопросы, задайте их в комментариях после инструкции.
"Загружаем инструкцию", означает, что нужно подождать пока файл загрузится и можно будет его читать онлайн. Некоторые инструкции очень большие и время их появления зависит от вашей скорости интернета.

15
ZOTA Pellet S
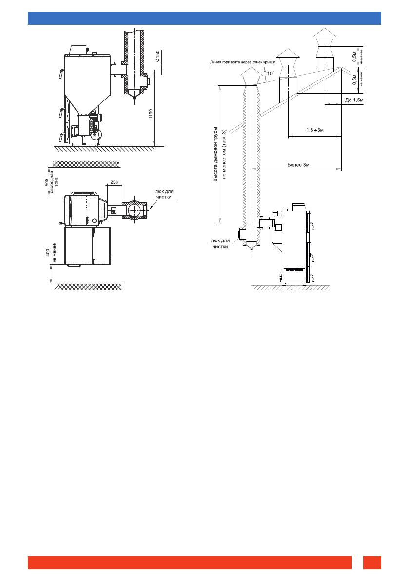
Рис.8. Варианты установки
дымовой трубы.
Рис.7. Схема установки
котла.
• Подключить трубопроводы системы отопления;
• Подключить систему рециркуляции (доп. комплект);
• Установить трубки вторичного воздуха;
• Подсоединить патрубок дымохода к дымовой трубе;
• Установить чугунный отражатель в топку котла.
7.3. Монтаж котла должен производиться в полном соответствии с
требованиями паспорта и руководства по эксплуатации на котел и
разработанным проектом специализированной организацией.
7.3.1. Соедините пеллетную горелку с котлом, выставите ее по уровню
с помощью регулируемой ножки (поз.6, Рис.1) и зафиксируйте четырьмя
гайками М10 с шайбами (см.комплект поставки № п/п 6, 7, 8, 9). Установите
заглушку окна пеллетной горелки на противоположной стенке корпуса котла
и зафиксируйте четырьмя гайками М10 с шайбами (см.п/п 6, 7, 8, 9, табл.2).
Установите кожух на заглушку окна пеллетной горелки.
7.3.2. Установка механизма подачи происходит в следующей
последовательности: снимите подшипник с котла, затем вставьте механизм
подачи и запрессуйте подшипник.
7.3.2.1. Установите сапун из комплекта поставки на мотор-редуктор взамен
пробки заливной (поз.12, Рис.4).
7.3.3. Проложите гофротрубу с проводами, затем установите бункер на
привод пеллетной горелки через резиновую прокладку и закрепите его
четырьмя болтами М8х20 с гайками (см. комплект поставки № п/п 5, 6).
7.3.4. Если Вы приобретаете дополнительную секцию к бункеру, Вам
необходимо:





