Котел Zerten SE-9 - инструкция пользователя по применению, эксплуатации и установке на русском языке. Мы надеемся, она поможет вам решить возникшие у вас вопросы при эксплуатации техники.
Если остались вопросы, задайте их в комментариях после инструкции.
"Загружаем инструкцию", означает, что нужно подождать пока файл загрузится и можно будет его читать онлайн. Некоторые инструкции очень большие и время их появления зависит от вашей скорости интернета.

15
14
Р
УК
ОВО
ДС
ТВО ПО ЭК
СПЛУ
АТ
АЦИИ
Р
УК
ОВО
ДС
ТВО ПО ЭК
СПЛУ
АТ
АЦИИ
ПРИЛОЖЕНИЕ Г
Электрическая схема котла SE-9
ХТ1 – клеммная колодка
АВ 20А – автоматический
выключатель 20 А
ТР – термостат
R1, R2, R3 – нагревательные элементы
БЗ – болт заземления
МП1 – магнитный пускатель
L1, L2, L3, N – подключение
электрической сети
ТЗ – термозащита
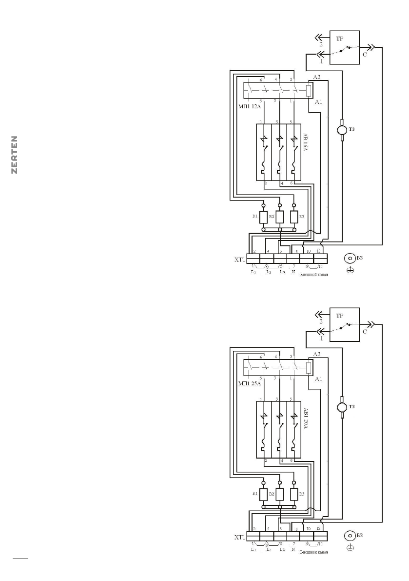
ПРИЛОЖЕНИЕ В
Электрическая схема котла SE-6, SE-7,5
ХТ1 – клеммная колодка
АВ 16А – автоматический
выключатель 16 А
ТР – термостат
R1, R2, R3 – нагревательные элементы
БЗ – болт заземления
МП1 – магнитный пускатель
L1, L2, L3, N – подключение
электрической сети
ТЗ – термозащита
ПРИЛОЖЕНИЕ Д
Электрическая схема котла SE-12
ХТ1 – клеммная колодка
АВ 20А – автоматический
выключатель 20 А
ТР – термостат
R1, R2, R3 – нагревательные элементы
БЗ – болт заземления
МП1 – магнитный пускатель (реле)
L1, L2, L3, N – подключение
электрической сети
ТЗ – термозащита