Котел Termomax C-10E - инструкция пользователя по применению, эксплуатации и установке на русском языке. Мы надеемся, она поможет вам решить возникшие у вас вопросы при эксплуатации техники.
Если остались вопросы, задайте их в комментариях после инструкции.
"Загружаем инструкцию", означает, что нужно подождать пока файл загрузится и можно будет его читать онлайн. Некоторые инструкции очень большие и время их появления зависит от вашей скорости интернета.

7.3.2.
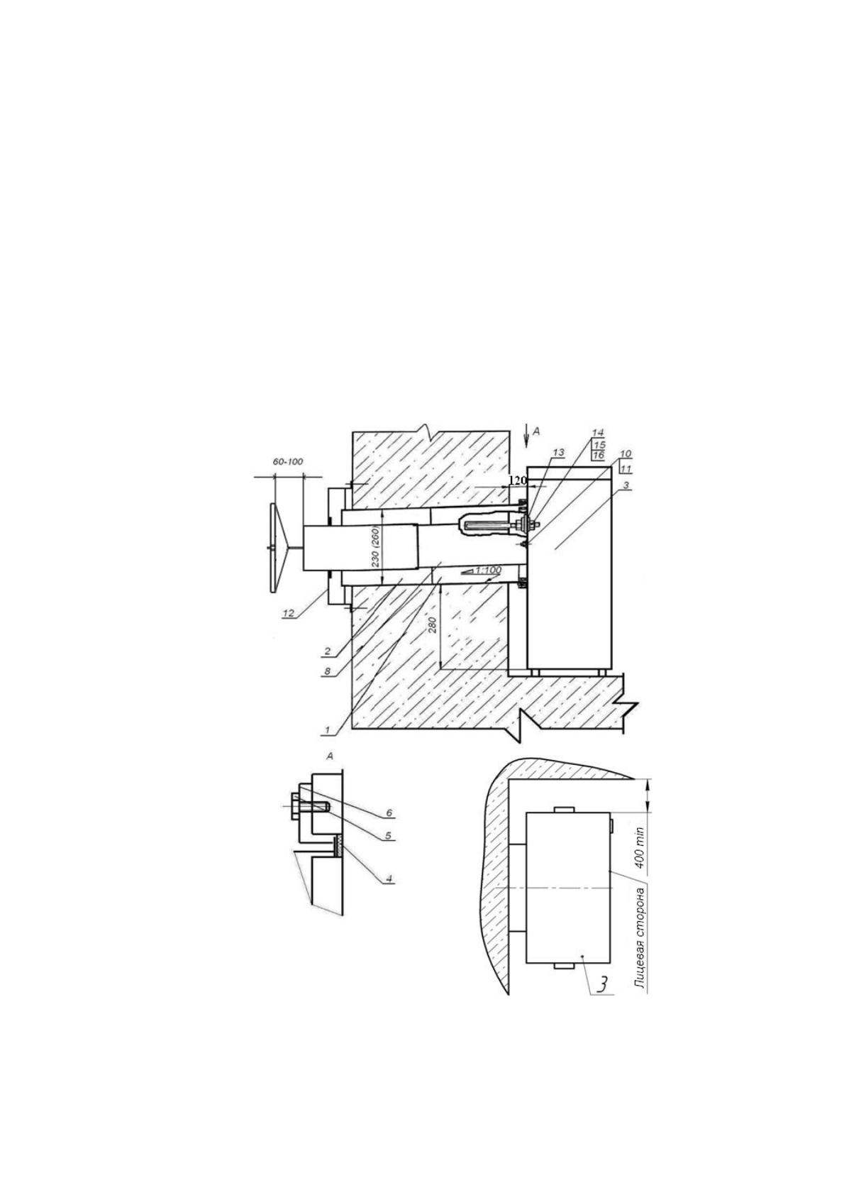
Установить секцию воздуховода 2 с наклоном наружу так, чтобы ее торец
выступил на 10 мм над внешней плоскостью стены, и закрепить в стене.
7.3.3.
Установить патрубки воздуховода 1 и дымохода 8 в секцию газохода 2.
7.3.4.
Установить котел
на место, выдержав расстояние до
стены
60 мм
.
7.3.5.
Присоединить к котлу поочередно патрубок дымохода 8 гайкой 10 и шайбой
11 и патрубок воздуховода 1 на уплотнитель 4 болтом 5 и прижимом 6, выдерживая
наклон наружу.
7.3.6.
На выступающий торец секции воздуховода 2 установить и закрепить при
помощи дюбелей на стене дома защиту дымохода 12.
7.3.7.
Прикрепить котел к стене через проушины
9
см
.
рис
. 1 (
крепежные элементы
заводом не поставляются).
7.4.
Между передней стенкой котла и противоположной стеной помещения должен
быть проход не менее 1 м.
7.5.
Схема установки котла в системе отопления с
естественной циркуляцией
теплоносителя приведена на рисунке 4. Подбор отапливаемых приборов и диаметр
трубопроводов в системе отопления в каждом частном случае выполняется по расчетам,
выполненным специализированной организацией.
7.6.
Для увеличения скорости движения теплоносителя в системе отопления,
работающей с естественной циркуляцией, рекомендуется центр нагревания воды в котле
размещать ниже центра охлаждения отапливаемых приборов (радиаторов).
1-
патрубок; 2
-
обечайка воздуховода
; 3-
котел
; 4-
уплотнитель
; 5-
болт;
6 -
прижим
; 8-
обечайка дымохода
; 10-
гайка М8; 11
-
шайба 8; 12
-
защита
дымохода
; 13-
проушина; 14
-
шпилька М10; 15
-
гайка М10; 16
-
шайба 10.
Рисунок
2.
Схема монтажа
котла
11