Котел Termomax C-10E - инструкция пользователя по применению, эксплуатации и установке на русском языке. Мы надеемся, она поможет вам решить возникшие у вас вопросы при эксплуатации техники.
Если остались вопросы, задайте их в комментариях после инструкции.
"Загружаем инструкцию", означает, что нужно подождать пока файл загрузится и можно будет его читать онлайн. Некоторые инструкции очень большие и время их появления зависит от вашей скорости интернета.

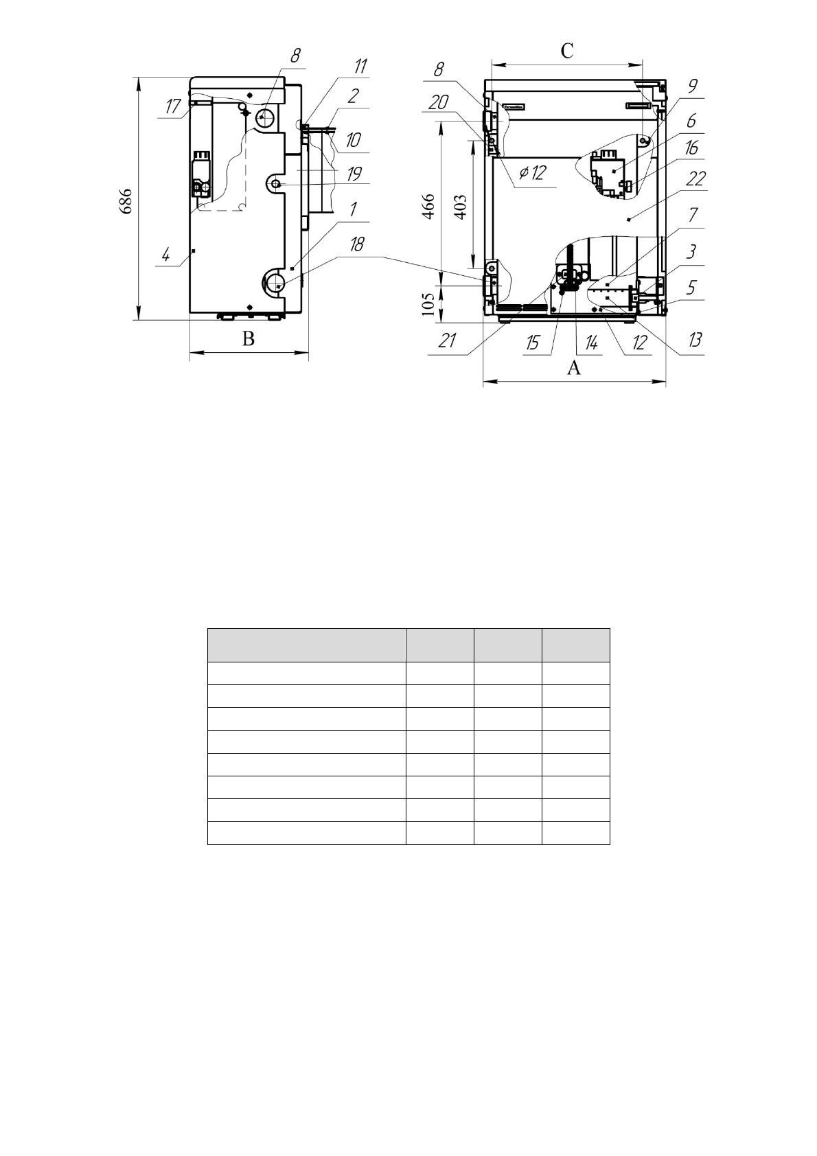
1-
теплообменник; 2
–
воздуховод
; 3 –
форсунка; 4
–
кожух; 5
–
прокладка; 6
-
газовый
клапан
автоматики фирмы
SIT Group; 7 –
камера сгорания; 8
-
обратные
патрубки
теплоносителя
; 9 –
проушина; 10
–
дымоход; 11
–
уплотнитель; 12
–
фронтальный лист;
13 –
основная горелка; 14
–
пилотная горелка; 15
–
термопара;
16 –
газоподводящий
патрубок;
17 –
показатель температуры;
18 -
подающие
патрубки
теплоносителя
; 19 –
входящий
патрубок холодной воды; 20
–
выходящий
патрубок гарячей воды; 21
–
смотровое окно; 22
–
дверка.
Рисунок
1. Схема котла
TermoMax-
С
6.7.
Габаритные и установочные размеры котлов указаны в таблице 4.
Таблица
4
7.
ПОРЯДОК УСТАНОВКИ
7.1.
Котел поставляется в собранном виде. Газоход котла находится в отдельной
упаковке.
7.2.
Помещение, в котором будет устанавливаться котел, должно отвечать
требованиям действующих норм и правил: СНиП 42
-01-
2002, СНиП 41
-01-2003,
ПБ 03
-
445-
02, ПБ 12
-529-
03, ГОСТ 21.609
-83.
7.3.
Установка котла должна выполняться в соответствии с рисунком 2 в такой
последовательности:
7.3.1.
Во внешней стене дома пробить круглое отверстие диаметром 240 мм (для
модификаций номинальной тепловой мощностью 16 кВт
-
270 мм).
Модель
А, мм
В, мм
С, мм
TermoMax-
А
-7
Е
515
335
426
TermoMax-
А
-7
ЕВ
515
335
426
TermoMax-
А
-
10Е
515
335
426
TermoMax-
А
-
10ЕВ
515
335
426
TermoMax-
А
-
12Е
625
310
536
TermoMax-
А
-
12ЕВ
625
310
536
TermoMax-
А
-16
Е
735
340
646
TermoMax-
А
-16
ЕВ
735
340
646
10