Котел Теплодар УЮТ-10 - инструкция пользователя по применению, эксплуатации и установке на русском языке. Мы надеемся, она поможет вам решить возникшие у вас вопросы при эксплуатации техники.
Если остались вопросы, задайте их в комментариях после инструкции.
"Загружаем инструкцию", означает, что нужно подождать пока файл загрузится и можно будет его читать онлайн. Некоторые инструкции очень большие и время их появления зависит от вашей скорости интернета.

Любители тепла
одобряют!
9
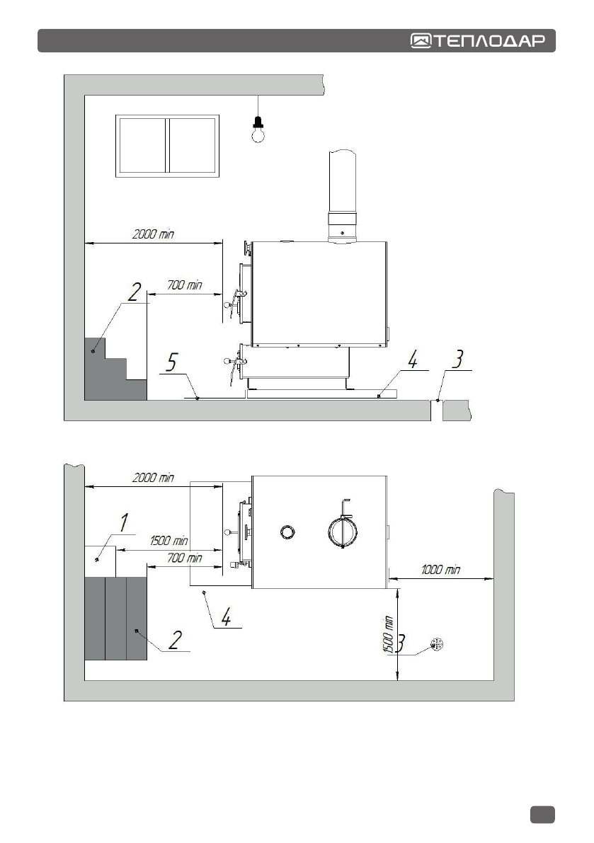
Рисунок 2 — Схема расположения котла в помещении
(размеры в мм)
[1] Запасы топлива. [2] Лестница или другие выступающие конструкции помещения. [3] Слив в
канализацию. [4] Защитный экран. [5] Предтопочный лист.
Содержание
- 3 ОГЛАВЛЕНИЕ
- 4 Введение; Производитель оставляет за собой право вносить изменения в кон
- 5 Общая информация
- 6 Рисунок 1 - Конструкция котлов модельного ряда «УЮТ»; цах, позволяют контролировать интенсивность горения топлива.
- 7 Технические характеристики; характеристики, контактные данные производителя.; Таблица 1
- 8 Дополнительное оборудование
- 9 Требования к теплоносителю
- 10 Монтаж котла и дымохода; Требования пожарной безопасности
- 11 Рисунок 2 — Схема расположения котла в помещении
- 12 Подключение к системе дымоотведения; не
- 13 расположении трубы от него на расстоянии более 3,0 метров.; к системе дымоотведения
- 14 Рисунок 3, в) — Рекомендуемые схемы подключения котла; Температура дымовых газов не должна превышать 200 o
- 16 Подключение к системе отопления
- 17 номинального давления для конкретной системы отопления.; ванной тепловой мощности котла.
- 18 Систему отопления также заполнять под давлением не более 0,25МПа.; При необходимости проверки системы отопления на; Рисунок 4 — Схема подключения котла к открытой системе с
- 19 Рисунок 5 — Схема подключения котла к закрытой системе с
- 20 Эксплуатация котла; Проверка котла перед вводом в эксплуатацию
- 21 Режимы эксплуатации
- 22 Подпитка системы в ходе эксплуатации котла; Рисунок 7 — Регулировка подачи воздуха
- 23 Обслуживание котла; высокой зольности топлива ― по мере накопления потухшего шлака.; Возможные неисправности и способы их устранения; Таблица 3. Возможные неисправности и методы их устранения
- 24 Гарантийные обязательства; При отсутствии в настоящем руководстве даты продажи и
- 25 Претензии к работе изделия не принимаются, бесплат; Транспортирование и хранение; вертикальном положении в один ярус.; Утилизация; выходной краны системы отопления, отсоединить от дымохода.
- 26 Паспорт изделия; Комплект поставки; Свидетельство о приемке; Термометр биметаллический
- 27 Отметка о гарантийном ремонте
- 28 Авторизованные сервисные центры компании «Теплодар»
- 31 Список авторизованных сервисных центров











