Котел STOUT 21 кВт - инструкция пользователя по применению, эксплуатации и установке на русском языке. Мы надеемся, она поможет вам решить возникшие у вас вопросы при эксплуатации техники.
Если остались вопросы, задайте их в комментариях после инструкции.
"Загружаем инструкцию", означает, что нужно подождать пока файл загрузится и можно будет его читать онлайн. Некоторые инструкции очень большие и время их появления зависит от вашей скорости интернета.

МЕНЮ УСТАНОВКИ
1. Режим работы
2. Уста-вка температур
УСТА-ВКИ ТЕМПЕР-УР
1. Устав-ка Т воды
2. Уста-вка Т воздуха
OK
УСТАВКА Т воды:
УСТАВКА Т воздуха:
УСТАВКА Т воды ГВС:
УСТАВКА Т ОС погоды:
Т = 67
º
С
Т = 22
º
С
Т = 70
º
С
Т = 40
º
С
OK-
задать
ESC-
отм
OK-
задать
ESC-
отм
OK-
задать
ESC-
отм
OK-
задать
ESC-
отм
6.1.4
Перед монтажом прибора проверьте правильность и качество монтажа
системы отопления. Трубы системы отопления должны быть расположены так, чтобы
способствовать естественной циркуляции теплоносителя.
6.1.5
При этом максимальный уровень теплоносителя не должен превышать
24
метров от уровня прибора (рабочее давление в котле с учетом работы встроенного
циркуляционного насоса не выше 0,29 МПа). После монтажа тщательно промойте
систему только водой при 80°С. Затем произведите полный дренаж системы, чтобы
удалить все загрязнения, которые могли в ней остаться.
6.1.6
В
приборе
использован
пневмогидроаккумулятор
мембранного
типа
(экспанзомат), подключенный перед циркуляционным насосом. При проектировании
системы следует учитывать, что встроенный экспанзомат рассчитан на применение в
системе емкостью до
240
л с начальным рабочим давлением 0,15 МПа. При большем
объеме системы должен быть установлен дополнительный внешний экспанзомат
.
6.1.7
На выходе из прибора установлен предохранительный клапан, рассчитан-
ный на давление
0,4 МПа. Так как при срабатывании предохранительного клапана
возможен выброс теплоносителя или пара через его дренажное отверстие, выполнить
слив в канализационную систему от дренажного патрубка (12) рис.
3.
6.1.8
Встроенный
автоматический
воздухоотводчик
(19
)
рис
.3
установлен
в
верхней точке котла и служит для удаления образующихся при работе ТЭН газов из
котла. Второй воздухоотводчик, предназначенный для удаления воздуха из системы
отопления, должен устанавливаться в верхней точке системы.
6.1.9 На входе прибора обязательно должен быть установлен фильтр для защиты
циркуляционного насоса от воздействия грязи и механических примесей.
6.1.10
Давление опрессовки системы отопления с котлом после монтажа - не более
0,4 МПа.
6.1.11
Прибор должен навешиваться на стены, достаточно прочные перегородки и
т
.
п. Прибор крепится через отверстия в задней панели с использованием четырех
шурупов 8х50, дюбелей 10х60 и плоских шайб. Разметка отверстий под крепление
прибора приведена на рис.
10
вид сзади.
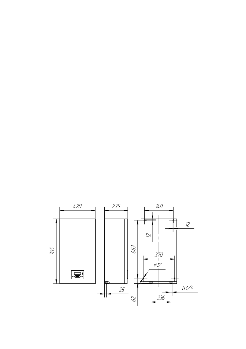
Рисунок 10
Габаритные и присоединительные размеры прибора.
7.4.2
Установка температурных параметров.
В зависимости от выбранного режима работы система управления устройства
использует различные температурные уставки, задаваемые пользователем (рис.18):
Рисунок 18
Установка температурных параметров
7.4.2.1
«Т воды» - температура теплоносителя. Параметр используется в режиме
«Отопление» и в режиме «Комнатный» при отсутствии датчиков температуры воздуха.
для ввода температуры уставки воды. Установленное предприятием-изготовителем
0
значение -
70
С.
7.4.2.2 «Т воздуха» - температура воздуха в отапливаемом помещении, Параметр
используется в режиме «Комнатный». Установленное предприятием-изготовителем
0
значение -
24
С.
7.4.2.3 «Т воды ГВС» - температура уставки теплоносителя воды в косвенном
водонагревателе, источником тепла в котором используется теплоноситель прибора.
Применяется во всех основных режимах при включении функции ГВС. Установленное
0
предприятием-изготовителем
значение
— 70
С
. (
Индикация
температуры
воды
происходит только в случае подключения датчика температуры, см. п. 7.4.3.3).
7.4.2.4 «Т0С погоды» - температурный параметр определяющий кривую нагрева
теплоносителя в зависимости от уличной температуры при отключенном/неисправном
комнатном датчике температуры воздуха. Установленное предприятием-изготовителем
0
значение
– 40
С.
В памяти прибора содержится семейство зависимостей температуры уставки
теплоносителя, необходимой для поддержания постоянной комнатной температуры, от
температуры уличного воздуха (см. рис. 19). Необходимо в соответствии с рис. 19
выбрать ту кривую, при которой в помещении станет комфортно. Наименование кривой
номинально совпадает с температурой уставки, при которой в помещении комфортно
при уличной температуре 0ºС. Если в помещении холодно
—
следует выбрать кривую с
большим номиналом, если жарко
—
с меньшим.
Данные параметры настраиваются во 2-м пункте меню установок
«2.
Уста-вка
температур» (см. рис. 18).
- 21 -
- 12 -
Содержание
- 4 IEK; Сведения о сертификации
- 5 TERMOSET
- 6 Рисунок 2
- 7 Рисунок 3
- 8 Расположение на плате управления разъёмов для подключения; светодиоды индикации:; Гарантии изготовителя
- 9 XT; Правила хранения и транспортирования
- 10 Окончание работы; Техническое обслуживание; Рисунок 5; «ESC
- 11 NTC —; Тгвс; Версия ПО; НИЗКОЕ ДАВЛЕНИЕ; ДАТЧ; ведомый; комнатный
- 12 Графики динамики уличной и комнатной температур воздуха.; Требования безопасности; Т воды; ТЭНов; Туличн; МЕНЮ УСТАНОВКИ; СЕРВИСНОЕ МЕНЮ; OK
- 13 ВКЛ; Подготовка к работе; Монтаж и подключение
- 14 Габаритные и присоединительные размеры прибора.
- 15 согласно ПУЭ и ППБ; Заполнение отопительной системы.; Название прибора; Структура и содержание меню установок.; Отображение на экране режимов работы прибора.
- 16 Схема подключения; Порядок работы; Характеристика режимов работы: